Проект одноэтажного дома Классик
Дом подходит для:
Площадь
128 м 2
Размер дома:
12,2х12,5
Этажей:
1
Спален:
2
Санузел:
2
Гараж:
Нет
Баня:
Нет
Терраса:
Нет
Панорамные окна:
Нет
Мастер-спальня:
Нет
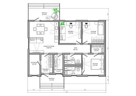
Планировка
Фасады
О проекте
Просторные 128 м² этого дома с жилой площадью 94 м² дарят ощущение свободы и простора. Каркасная конструкция обеспечивает надежность и энергоэффективность, а лаконичный дизайн подчеркивает современный стиль. Интерьеры наполнены светом и теплом, создавая атмосферу уюта и спокойствия. Это дом для тех, кто ценит качество и комфорт в каждой детали.Характеристики
- Общая площадь: 128 м2
- Жилая площадь: 94 м2
- Количество этажей: 1
- Гараж: нет
- Площадь кровли: 137 м2
- Отделка: Без отделки
- Фундамент: Дома со свайно-винтовым фундаментом
Материалы и перечень работ
- Фундамент - Свайно-винтовой (110мм диаметр) или железо-бетонные сваи (150/200мм).
- Защитная оцинкованная сетка от грызунов ячея 5 мм.
- Лаги пола - Сухая строганная доска 45х195 мм (антисептирование Neomid 430/433, проставки в примыкании холофайбером).
- Каркас - Сухая строганная доска 45х145 мм (антисептирование Neomid 430/433, проставки в примыкании холофайбером).
- Обрешетка пола - 40*90 с узким шагом в 30см.
- Черновой пол - фанера 21 см.
- Теплоизоляция - базальтовый плитный утеплитель с прокладкой пароизоляции Технониколь, пол-200 мм, потолок-200 мм, стены - 150 мм.
- Стропильная группа - Сухая строганная доска 45х195 мм (антисептирование Neomid 430/433, проставки в примыкании холофайбером).
- Кровля — профлист 0.45мм, цвет на выбор заказчика. Вентилируемый зазор с прокладкой супердиффузионной мембраны Ondutiss/Delta.
- Панорамные окна (60 или 70ый профиль), поворотно-откидные окна.
- Двери из алюминиевого профиля согласно архитектурному решению.
- В стоимость не входит
- Отделка наружных стен - планкен/имитация бруса/профлист/клик-фальц на выбор заказчика.
- Вентилируемый фасад с прокладкой паропроницаемой ветро-влагозащитной мембраны Ondutiss/Delta.
- Фундамент - Свайно-винтовой (110мм диаметр) или железо-бетонные сваи (150/200мм).
- Защитная оцинкованная сетка от грызунов ячея 5 мм.
- Лаги пола - Сухая строганная доска 45х195 мм (антисептирование Neomid 430/433, проставки в примыкании холофайбером).
- Каркас - Сухая строганная доска 45х145 мм (антисептирование Neomid 430/433, проставки в примыкании холофайбером).
- Обрешетка пола - 40*90 с узким шагом в 30см.
- Черновой пол - фанера 21 см.
- Теплоизоляция - базальтовый плитный утеплитель с прокладкой пароизоляции Технониколь, пол-200 мм, потолок-200 мм, стены - 150 мм.
- Стропильная группа - Сухая строганная доска 45х195 мм (антисептирование Neomid 430/433, проставки в примыкании холофайбером).
- Кровля — профлист 0.45мм, цвет на выбор заказчика. Вентилируемый зазор с прокладкой супердиффузионной мембраны Ondutiss/Delta.
- Панорамные окна (60 или 70ый профиль), поворотно-откидные окна.
- Двери из алюминиевого профиля согласно архитектурному решению.
- В стоимость не входит
- Отделка наружных стен - планкен/имитация бруса/профлист/клик-фальц на выбор заказчика.
- Вентилируемый фасад с прокладкой паропроницаемой ветро-влагозащитной мембраны Ondutiss/Delta.
Что еще входит в стоимость:
Отправьте свои контакты и мы расчитаем вам смету
Скорее всего вам подойдут следующие проекты домов:
Дом подходит для:
Дом подходит для:
Дом подходит для:













