Проект одноэтажного дома Классика
Площадь
31 м 2
Размер дома:
6x6
Этажей:
1
Спален:
1
Санузел:
1
Гараж:
Нет
Баня:
Нет
Терраса:
Нет
Панорамные окна:
Нет
Мастер-спальня:
Нет
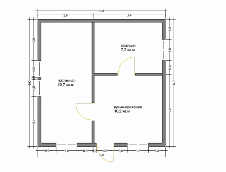
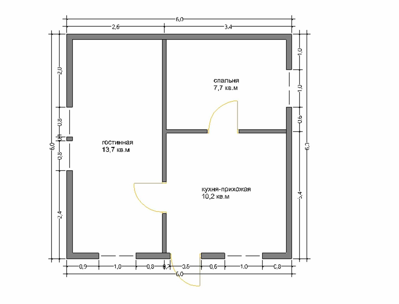
Планировка
Фасады
О проекте
Уютные 31 м² с жилыми 17 м² создают компактное и комфортное пространство. Каркасно-щитовая конструкция обеспечивает тепло и надежность, а продуманная планировка делает жизнь удобной. Несмотря на небольшие размеры, здесь есть все необходимое для комфорта. Это идеальное решение для тех, кто ценит функциональность.Характеристики
- Общая площадь: 31 м2
- Жилая площадь: 17 м2
- Количество этажей: 1
- Гараж: нет
- Площадь кровли: 36 м2
- Отделка: Без отделки
- Размер: 6x6
- Фундамент: Дома со свайным фундаментом
Материалы и перечень работ
- Свайно-винтовой 89х2500мм с установкой и смесью (12шт.)
- Лаги обрезная доска 40х100мм
- Черновой пол доска 20х100 мм разряженный, 2/го сорта
- Каркас брус 40х50мм
- Оцинкованное кровельное железо С8
- Входная дверь филенчатая
- Дверь межкомнатная филенчатая
- Стеклопакеты ПВХ 80х180см-глухие(2 шт.). 100х100см- с у распашной створкой(3 шт.)
- В стоимость не входит
- Отделка евровагонка камерной сушки класса "А-Б"
- Свайно-винтовой 89х2500мм с установкой и смесью (12шт.)
- Лаги обрезная доска 40х100мм
- Черновой пол доска 20х100 мм разряженный, 2/го сорта
- Каркас брус 40х50мм
- Оцинкованное кровельное железо С8
- Входная дверь филенчатая
- Дверь межкомнатная филенчатая
- Стеклопакеты ПВХ 80х180см-глухие(2 шт.). 100х100см- с у распашной створкой(3 шт.)
- В стоимость не входит
- Отделка евровагонка камерной сушки класса "А-Б"










