Проект двухэтажного дома Компактный коттедж из газобетона по проекту М415
Площадь
128 м 2
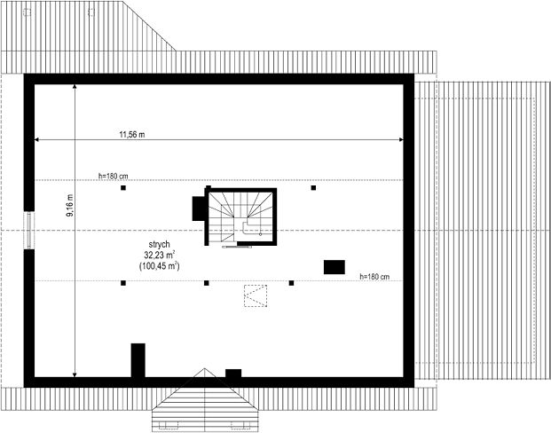
Размер дома:
9x13
Этажей:
2
Спален:
3
Санузел:
0
Гараж:
Нет
Баня:
Нет
Терраса:
Нет
Панорамные окна:
Нет
Мастер-спальня:
Нет
О проекте
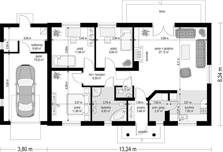
Жилье, продуманное до мелочей для вашего комфорта. 77 м² — площадь, где возможно всё: от отдыха до работы. Дом спроектирован в духе дома в стиле фахверк. Количество спален — 2, делая планировку гибкой. Двухэтажная рациональная планировка организует пространство максимально эффективно.Характеристики
- Общая площадь: 128 м2
- Количество этажей: 2
- Стиль, разновидность: Дома в стиле Шале
- Форма: Прямоугольные дома
- Тип кровли: Дома с мансардной крышей
- Отделка: Без отделки
- Размер: 9x13
Отправьте свои контакты и мы расчитаем вам смету
Скорее всего вам подойдут следующие проекты домов:
Проект двухэтажного дома Дом id-68694
Семья с двумя детьми
Дом подходит для:
Дом подходит для:
Проект двухэтажного дома Дом id-88554
Семья с двумя детьми
Дом подходит для:
Дом подходит для:
Проект двухэтажного дома Дом id-79328
Семья с двумя детьми
Дом подходит для:
Дом подходит для:


















