Проект двухэтажного дома Континент
Дом подходит для:
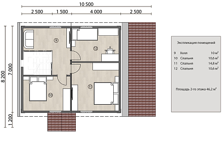
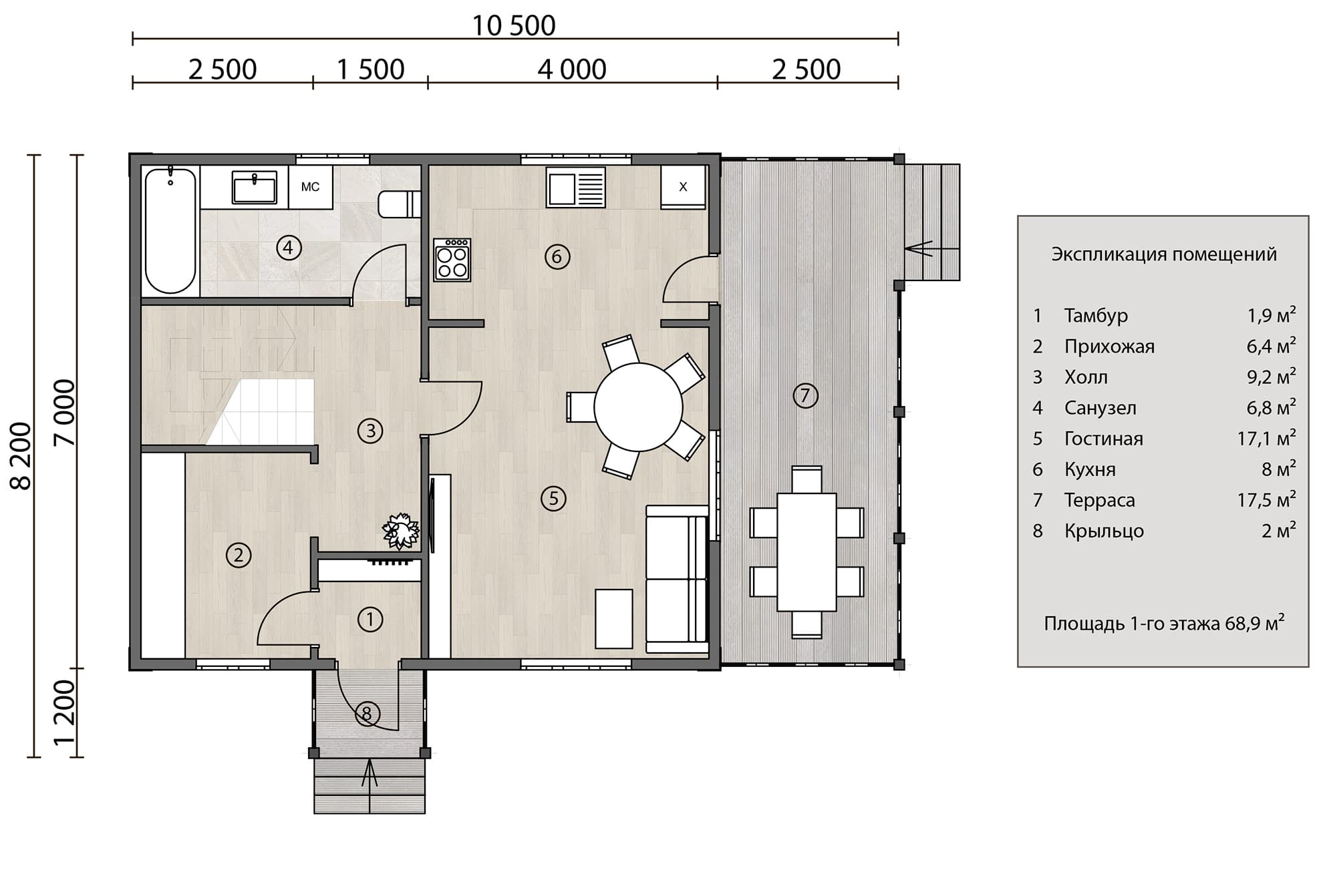
Площадь
115 м 2
Размер дома:
10.5x8.2
Этажей:
2
Спален:
3
Санузел:
1
Гараж:
Нет
Баня:
Нет
Терраса:
Нет
Панорамные окна:
Нет
Мастер-спальня:
Нет
Планировка
Фасады
О проекте
Этот проект площадью 115 м² с жилыми 88 м² сочетает в себе стиль и практичность. Каркасные стены дарят надежность и тепло, а продуманная планировка делает пространство удобным. Светлые комнаты наполнены воздухом, создавая атмосферу домашнего тепла. Здесь каждый метр продуман для гармоничной жизни.Материалы и перечень работ
- Забивные железобетонные сваи 150х150х3000
- Металлический оголовок, 250*250мм на каждую сваю
- Гидроизоляция между сваей и обвязкой - рубероид
- Лаги пола - доска 50х200мм (камерной сушки)
- Каркас внешних стен - 35х140мм камерной сушки, с шагом 580мм
- Каркасные перегородки 35х90мм / 35х140мм камерной сушки (по проекту)
- Стропило 45х190мм камерной сушки
- Обрешетка - 20х90мм
- Контр-обрешетка - 25х50мм по ветрогидроизоляции
- Металлочерепица 0.5мм (цвет на выбор)
- Оконные конструкции ПВХ (Rehau/Veka) 2-х камерный стеклопакет (3 стекла)
- Установка водоотливов под окнами
- Дверь входная одностворчатая ПВХ с двухкамерным стеклопакетом
- В стоимость не входит
- Внешняя отделка - имитация бруса
- Забивные железобетонные сваи 150х150х3000
- Металлический оголовок, 250*250мм на каждую сваю
- Гидроизоляция между сваей и обвязкой - рубероид
- Лаги пола - доска 50х200мм (камерной сушки)
- Каркас внешних стен - 35х140мм камерной сушки, с шагом 580мм
- Каркасные перегородки 35х90мм / 35х140мм камерной сушки (по проекту)
- Стропило 45х190мм камерной сушки
- Обрешетка - 20х90мм
- Контр-обрешетка - 25х50мм по ветрогидроизоляции
- Металлочерепица 0.5мм (цвет на выбор)
- Оконные конструкции ПВХ (Rehau/Veka) 2-х камерный стеклопакет (3 стекла)
- Установка водоотливов под окнами
- Дверь входная одностворчатая ПВХ с двухкамерным стеклопакетом
- В стоимость не входит
- Внешняя отделка - имитация бруса
Что еще входит в стоимость:
Отправьте свои контакты и мы расчитаем вам смету
Скорее всего вам подойдут следующие проекты домов:
Дом подходит для:
Дом подходит для:
Дом подходит для:














