Ваш город:

Проект двухэтажного дома Коттедж из клееного бруса МОРСКОЙ ЖЕМЧУГ-183 от компании МОГУТА

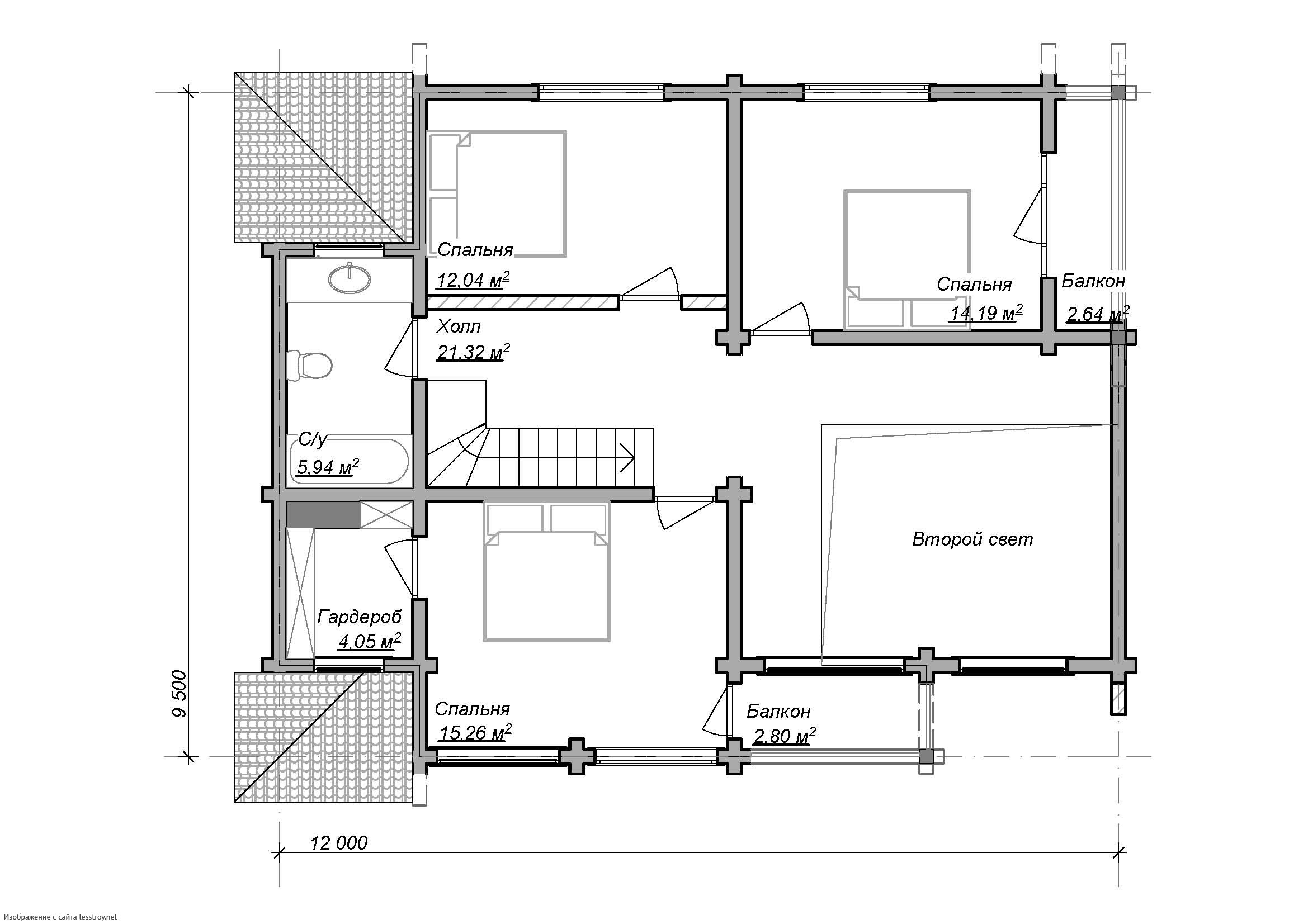
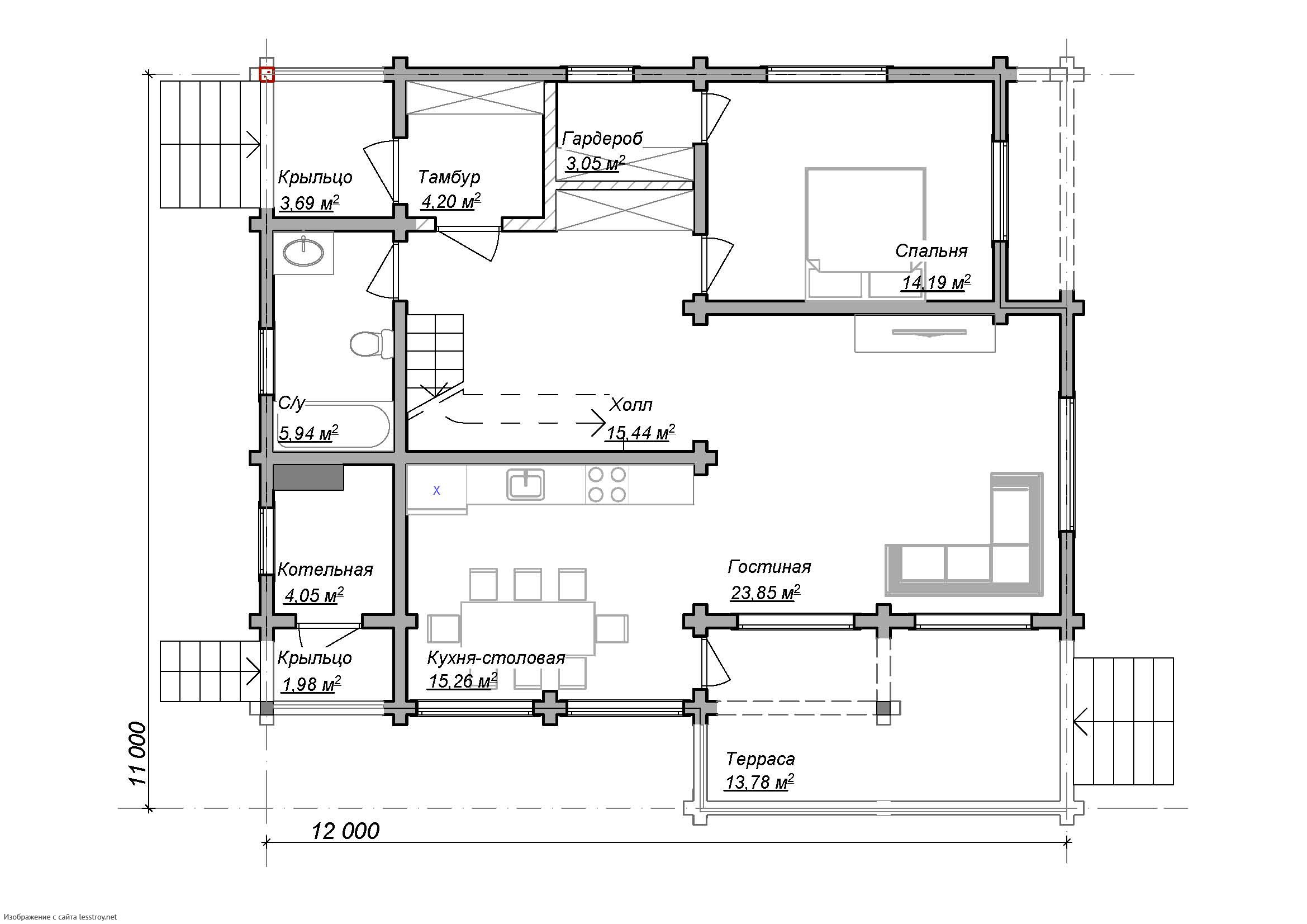
Площадь: 183 м2
Размер: 11x12
Дом подходит для:
Для большой семьи
Этажей:
2
Стены:
Кровля:
Металлочерепица
Цена:
Оставить заявку
Площадь
183 м 2
Размер дома:
11x12
Этажей:
2
Спален:
4
Санузел:
0
Гараж:
Нет
Баня:
Нет
Терраса:
Нет
Панорамные окна:
Нет
Мастер-спальня:
Нет
О проекте
Проект превращает здание в символ нового времени и семейных уз. 60 м² идеально подойдут для семейных посиделок и личного пространства. Проект включает 2 спальни — удобно для семьи. В качестве кровли использована композитная черепица — материал, проверенный временем. Выбор каркаса обусловлен его теплоизоляционными свойствами.

Характеристики
  • Общая площадь: 183 м2
  • Количество этажей: 2
  • Стиль, разновидность: Дома в стиле Модерн
  • Форма: Прямоугольные дома
  • Тип кровли: Дома с многощипцовой крышей
  • Отделка: Без отделки
  • Размер: 11x12
Отправьте свои контакты и мы расчитаем вам смету
Прикрепить документ
Скорее всего вам подойдут следующие проекты домов:
Добавить к сравнению
Добавить в избранное
Изображение
Изображение
Изображение
Изображение
Дом подходит для:
Семья с двумя детьми
Добавить к сравнению
Добавить в избранное
Изображение
Дом подходит для:
Семья с одним ребенком
Добавить к сравнению
Добавить в избранное
Изображение
Изображение
Изображение
Изображение
Изображение
Дом подходит для:
Семья с двумя детьми