Проект двухэтажного дома Коттедж по проекту Изумрудный-151
Площадь
151 м 2
Размер дома:
Этажей:
2
Спален:
3
Санузел:
0
Гараж:
Нет
Баня:
Нет
Терраса:
Нет
Панорамные окна:
Нет
Мастер-спальня:
Нет
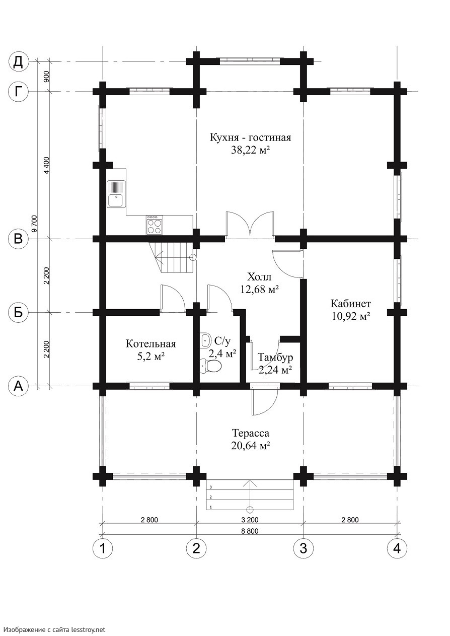
О проекте
Роскошный двухэтажный дом площадью 151 м² из натурального бруса переливается изумрудными оттенками отделки. Три просторные спальни с панорамным остеклением создают эффект единения с природой. Особое внимание привлекает искусная работа с фактурами древесины.Характеристики
- Общая площадь: 151 м2
- Количество этажей: 2
- Стиль, разновидность: Дома в стиле Модерн
- Форма: Прямоугольные дома
- Тип кровли: Дома с двускатной крышей
- Отделка: Без отделки
Отправьте свои контакты и мы расчитаем вам смету
Скорее всего вам подойдут следующие проекты домов:
Дом подходит для:
Дом подходит для:
Дом подходит для:










