Ваш город:

Проект двухэтажного дома Крепость

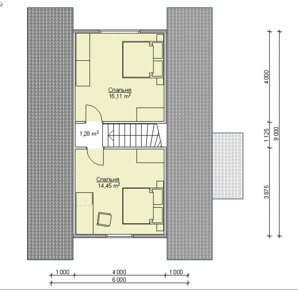
Площадь: 94 м2
Размер: 6x9
Дом подходит для:
Семья с двумя детьми
Этажей:
2
Стены:
Кровля:
Металлочерепица
Цена:
Оставить заявку
Площадь
94 м 2
Размер дома:
6x9
Этажей:
2
Спален:
3
Санузел:
0
Гараж:
Нет
Баня:
Нет
Терраса:
Нет
Панорамные окна:
Нет
Мастер-спальня:
Нет
О проекте
Дом площадью 94 м² из бруса с металлочерепичной кровлей рассчитан на комфортное проживание семьи. Три спальни обеспечивают достаточно места для всех членов семьи. Двухэтажная конструкция позволяет рационально использовать пространство. Натуральные материалы и лаконичный дизайн подчёркивают эстетику загородной жизни.

Характеристики
  • Общая площадь: 94 м2
  • Количество этажей: 2
  • Стиль, разновидность: Дома в ином стиле
  • Форма: Прямоугольные дома
  • Тип кровли: Дома с двускатной крышей
  • Отделка: Без отделки
  • Размер: 6x9
Отправьте свои контакты и мы расчитаем вам смету
Прикрепить документ
Скорее всего вам подойдут следующие проекты домов:
Добавить к сравнению
Добавить в избранное
Изображение
Изображение
Изображение
Изображение
Изображение
Дом подходит для:
Семья с одним ребенком
Добавить к сравнению
Добавить в избранное
Изображение
Изображение
Изображение
Изображение
Изображение
Дом подходит для:
Для большой семьи
Добавить к сравнению
Добавить в избранное
Изображение
Изображение
Изображение
Изображение
Изображение
Дом подходит для:
Семья с двумя детьми