Проект одноэтажного дома Квинти
Дом подходит для:
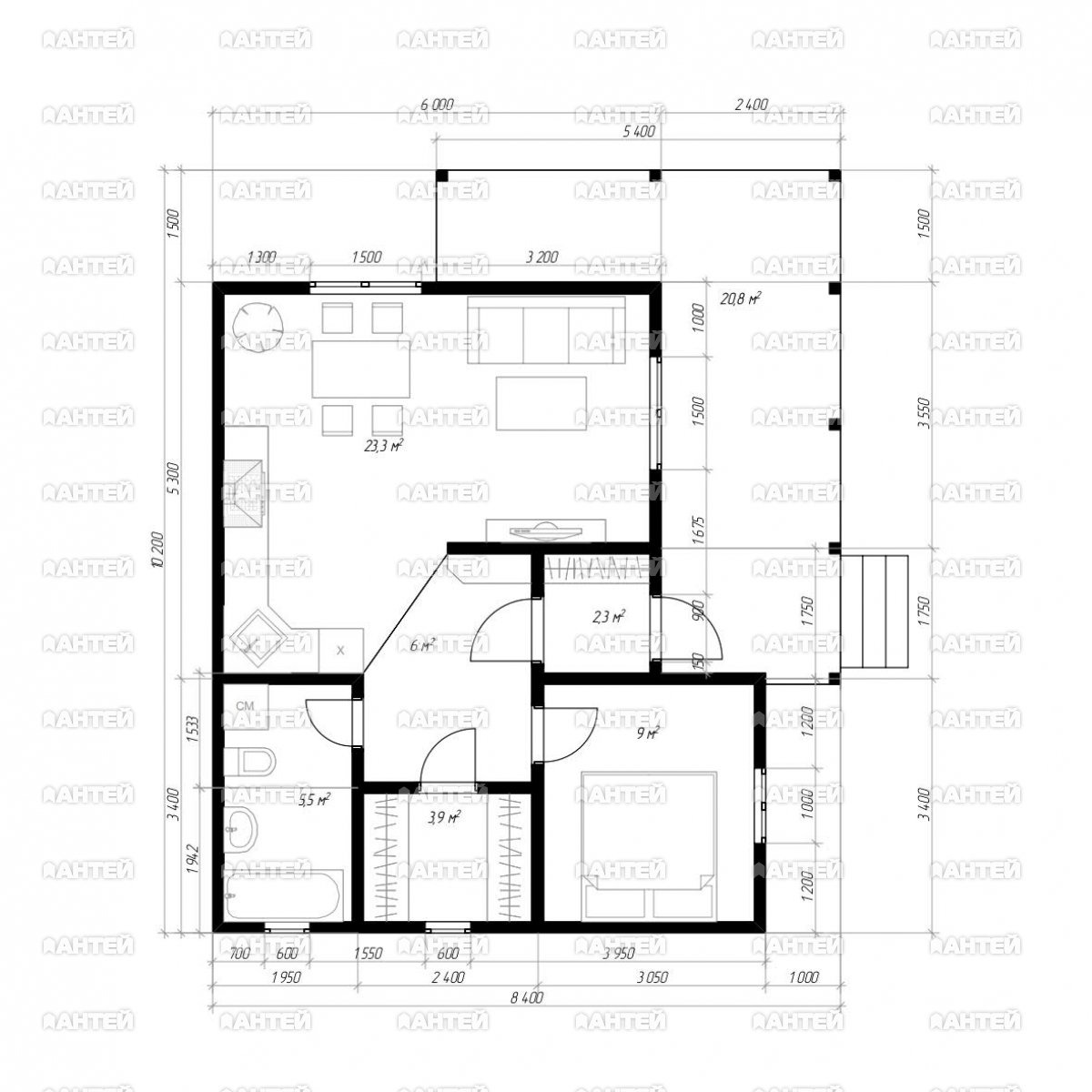
Площадь
71 м 2
Размер дома:
7,4х8,7
Этажей:
1
Спален:
2
Санузел:
1
Гараж:
Нет
Баня:
Нет
Терраса:
Нет
Панорамные окна:
Нет
Мастер-спальня:
Нет
Планировка
Характеристики
- Общая площадь: 71 м2
- Жилая площадь: 50 м2
- Количество этажей: 1
- Гараж: нет
- Площадь кровли: 75 м2
- Отделка: Без отделки
Материалы и перечень работ
- В стоимость не входит
- Основание (обработано антисептиком) обрезной брус 150х150
- Балки пола обрезной брус 40х150мм (обработан антисептиком)
- Верхняя и нижняя обвязка обрезной брус 40х100мм
- Стойки обрезной брус 40х100мм
- Каркас перегородок брус 40х100мм
- Стропила обрезной брус 40х100мм
- Обрешетка обрезная доска 22-25мм, монтируется вентиляционным зазором 25мм
- Обшивка фронтонов имитация бруса 16х90мм (камерной сушки, сорт АВ)
- Подшивка свесов имитация бруса 16х90мм (камерной сушки, сорт АВ)
- Кровельный материал металлочерепица
- Окна ПВХ "EXPROF" с москитной сеткой
- Межкомнатные двери филенчатые МДФ с ламинацией (без ручек)
- Входная дверь металлическая "Торекс Дельта-Pro"
- В стоимость не входит
- Наружняя обшивка имитация бруса 16х90мм (камерной сушки, сорт АВ)
- В стоимость не входит
- Основание (обработано антисептиком) обрезной брус 150х150
- Балки пола обрезной брус 40х150мм (обработан антисептиком)
- Верхняя и нижняя обвязка обрезной брус 40х100мм
- Стойки обрезной брус 40х100мм
- Каркас перегородок брус 40х100мм
- Стропила обрезной брус 40х100мм
- Обрешетка обрезная доска 22-25мм, монтируется вентиляционным зазором 25мм
- Обшивка фронтонов имитация бруса 16х90мм (камерной сушки, сорт АВ)
- Подшивка свесов имитация бруса 16х90мм (камерной сушки, сорт АВ)
- Кровельный материал металлочерепица
- Окна ПВХ "EXPROF" с москитной сеткой
- Межкомнатные двери филенчатые МДФ с ламинацией (без ручек)
- Входная дверь металлическая "Торекс Дельта-Pro"
- В стоимость не входит
- Наружняя обшивка имитация бруса 16х90мм (камерной сушки, сорт АВ)
Что еще входит в стоимость:
Отправьте свои контакты и мы расчитаем вам смету
Скорее всего вам подойдут следующие проекты домов:
Дом подходит для:
Дом подходит для:
Проект одноэтажного дома Сруб дома из профилированного бруса размером 9х9 брус 150х200 перегородки 150х150 работа 2016 года
Семья с одним ребенком
Дом подходит для:
Дом подходит для:













