Проект двухэтажного дома Кёльн
Дом подходит для:
Площадь
163 м 2
Размер дома:
10,7х9
Этажей:
2
Спален:
2
Санузел:
2
Гараж:
Нет
Баня:
Нет
Терраса:
Да
Панорамные окна:
Нет
Мастер-спальня:
Нет
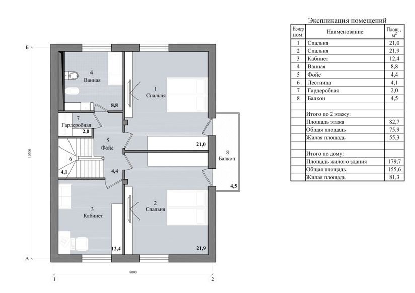
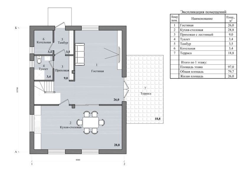
Планировка
Фасады
О проекте
Просторный дом площадью 163 м² с жилыми 139 м² идеален для семьи с одним ребенком. Газобетонные стены создают теплую и дышащую среду, а металлочерепица добавляет практичности. Внутри — светлые и просторные помещения, наполненные комфортом. Это дом, где современность сочетается с традициями.Характеристики
- Общая площадь: 163 м2
- Жилая площадь: 139 м2
- Количество этажей: 2
- Гараж: нет
- Площадь кровли: 170 м2
- Форма: Квадратные дома
- Тип кровли: Дома с двускатной крышей
- Пристрой: Дома с верандой
- Отделка: С инженерными коммуникациями
- Фундамент: Дома с плитным фундаментом
Материалы и перечень работ
- Монолитная железобетонная плита 300мм (бетон М350, армирование. ø12мм, шаг 200 мм; песчаное основание 200мм; щебень 150мм; гидроизоляционная мембрана Planter
- Газобетонные блоки Bonolit D400 400мм (внешние несущие стены); 250мм (внутренние несущие стены); армирование двухрядное арматурой А500с ø8мм; тонкослойная кладка на клей
- Оконные и дверные перемычки из U-блоков с армированием и бетонированием; утепление 50мм
- Монолитное железобетонное перекрытие 180мм (бетон М350, армирование. ø12мм, шаг 200 мм, усилением по проекту); утепление по торцу; доборная кладка по торцу
- Монолитный железобетонный армопояс по несущим стенам (бетон М350, армирование. Ø8-10мм); утепление по торцу; доборная кладка по торцу
- Перекрытие по деревянным балкам сечением 200х50мм с обработкой огне-биозащитой
- Стропильная система (стропила сечением 200х50мм); контробрешетка 50х50мм, обрешетка 100х25мм, затяжка 150х50мм, стойка 100х100мм. Гидроизоляционная мембрана. Обработка пиломатериала огне-биозащитой.
- Металлочерепица Grand Line 0.5мм
- В стоимость не входит
- Ввод всех коммуникаций: канализационные стояки (канализационная труба 110мм с утеплением); водоснабжение (ПНД труба 32мм с утеплением); закладная под электроснабжением (ПНД труба 50мм)
- В стоимость не входит
- Монолитная железобетонная плита 300мм (бетон М350, армирование. ø12мм, шаг 200 мм; песчаное основание 200мм; щебень 150мм; гидроизоляционная мембрана Planter
- Газобетонные блоки Bonolit D400 400мм (внешние несущие стены); 250мм (внутренние несущие стены); армирование двухрядное арматурой А500с ø8мм; тонкослойная кладка на клей
- Оконные и дверные перемычки из U-блоков с армированием и бетонированием; утепление 50мм
- Монолитное железобетонное перекрытие 180мм (бетон М350, армирование. ø12мм, шаг 200 мм, усилением по проекту); утепление по торцу; доборная кладка по торцу
- Монолитный железобетонный армопояс по несущим стенам (бетон М350, армирование. Ø8-10мм); утепление по торцу; доборная кладка по торцу
- Перекрытие по деревянным балкам сечением 200х50мм с обработкой огне-биозащитой
- Стропильная система (стропила сечением 200х50мм); контробрешетка 50х50мм, обрешетка 100х25мм, затяжка 150х50мм, стойка 100х100мм. Гидроизоляционная мембрана. Обработка пиломатериала огне-биозащитой.
- Металлочерепица Grand Line 0.5мм
- В стоимость не входит
- Ввод всех коммуникаций: канализационные стояки (канализационная труба 110мм с утеплением); водоснабжение (ПНД труба 32мм с утеплением); закладная под электроснабжением (ПНД труба 50мм)
- В стоимость не входит
Что еще входит в стоимость:
Отправьте свои контакты и мы расчитаем вам смету
Скорее всего вам подойдут следующие проекты домов:
Проект двухэтажного дома Дом id-114826
Для большой семьи
Дом подходит для:
Дом подходит для:
Проект двухэтажного дома Дом id-113241
Семья с двумя детьми
Дом подходит для:
Дом подходит для:
Проект двухэтажного дома Дом id-118652
Для большой семьи
Дом подходит для:
Дом подходит для:





















