Проект двухэтажного дома Леон 194
Дом подходит для:
Площадь
194 м 2
Размер дома:
11x11
Этажей:
2
Спален:
5
Санузел:
2
Гараж:
Нет
Баня:
Нет
Терраса:
Нет
Панорамные окна:
Нет
Мастер-спальня:
Нет
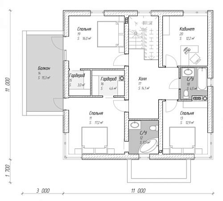
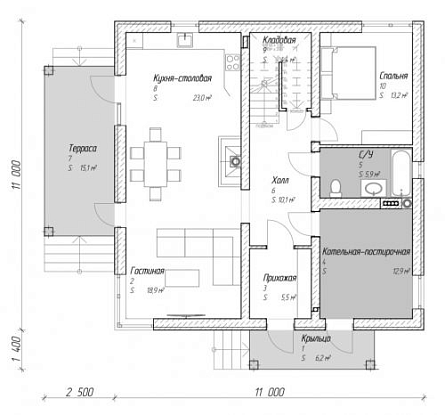
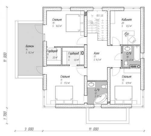
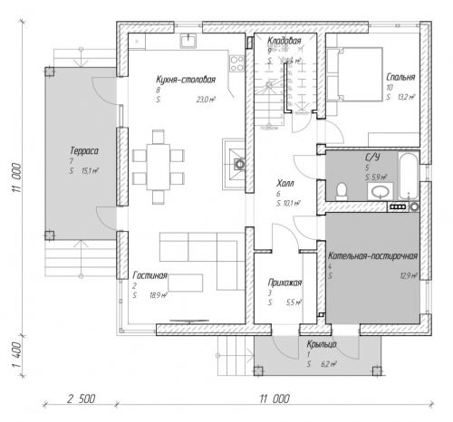
Планировка
Фасады
О проекте
Двухэтажный дом площадью 194 м² с жилыми 144 м² — это простор и уют для большой семьи. Газобетонные стены обеспечивают тепло, а пять спален и два санузла создают комфорт. Светлые интерьеры и продуманная планировка наполняют дом гармонией. Это место, где каждый метр продуман для жильцов.Характеристики
- Общая площадь: 194 м2
- Жилая площадь: 144 м2
- Количество этажей: 2
- Гараж: нет
- Площадь кровли: 201 м2
- Отделка: Без отделки
- Размер: 11x11
- Фундамент: Дома с плитным фундаментом
Материалы и перечень работ
- Утепленная железобетонная плита с закладными под коммуникации (свет, вода, канализация)
- Стены несущие фасадные газобетонные блоки 400мм
- Внутренние несущие стены газобетонные блоки 250мм
- Перегородки газобетонные блоки 100мм
- Междуэтажное перекрытие сборно-монолитное
- Стропильная система антисептированый пиломатериал первого сорта
- Кровельное покрытие металлочерепица 0,5 PE
- В стоимость не входит
- В стоимость не входит
- В стоимость не входит
- Утепленная железобетонная плита с закладными под коммуникации (свет, вода, канализация)
- Стены несущие фасадные газобетонные блоки 400мм
- Внутренние несущие стены газобетонные блоки 250мм
- Перегородки газобетонные блоки 100мм
- Междуэтажное перекрытие сборно-монолитное
- Стропильная система антисептированый пиломатериал первого сорта
- Кровельное покрытие металлочерепица 0,5 PE
- В стоимость не входит
- В стоимость не входит
- В стоимость не входит
Что еще входит в стоимость:
Отправьте свои контакты и мы расчитаем вам смету
Скорее всего вам подойдут следующие проекты домов:
Проект двухэтажного дома Дом id-114292
Для большой семьи
Дом подходит для:
Дом подходит для:
Проект двухэтажного дома Дом id-114330
Для большой семьи
Дом подходит для:
Дом подходит для:
Проект двухэтажного дома Дом id-126075
Для большой семьи
Дом подходит для:
Дом подходит для:






















