Проект одноэтажного дома Леон М3
Дом подходит для:
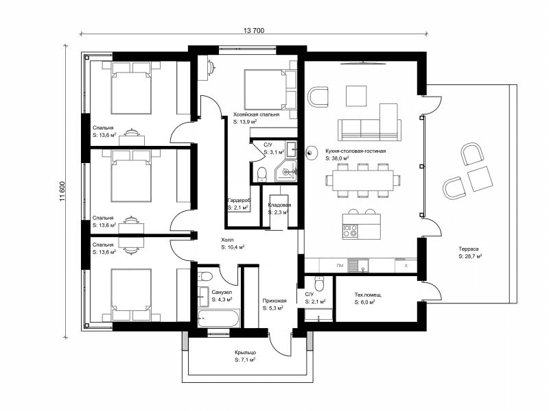
Площадь
128 м 2
Размер дома:
11,6 Х 13,7
Этажей:
1
Спален:
3
Санузел:
3
Гараж:
Нет
Баня:
Нет
Терраса:
Нет
Панорамные окна:
Нет
Мастер-спальня:
Нет
Планировка
Фасады
О проекте
Проект площадью 128 м² с жилыми 93 м² — это комфорт и надежность для семьи с двумя детьми. Газобетонные стены обеспечивают тепло, а три спальни и три санузла создают удобство. Светлые интерьеры и продуманная планировка делают пространство функциональным. Это гармоничное сочетание практичности и заботы.Характеристики
- Общая площадь: 128 м2
- Жилая площадь: 93 м2
- Количество этажей: 1
- Гараж: нет
- Площадь кровли: 136 м2
- Отделка: Без отделки
- Фундамент: Дома с плитным фундаментом
Материалы и перечень работ
- Утепленная, монолитная ж/б плита. Включая крыльцо и без террасы
- Стены несущие фасадные газобетонные блоки толщиной 300мм, плотностью 300кг/м3
- Внутренние несущие стены газобетонные блоки толщиной 250мм, плотностью 500кг/м3
- Перегородки газобетонные блоки толщиной 100мм, плотностью 500кг/м3
- Стропильная система антисептированный обрезной пиломатериал первого сорта.
- Утепление кровли ПСБ С 15 200мм и ЭПС 50мм
- Кровельное покрытие полимерная мембрана LOGICROOF 1,5мм
- Окна из профилей REHAU DELIGHT-Design с двухкамерным стеклопакетом
- Дверь входная металлическая временная
- В стоимость не входит
- В стоимость не входит
- Утепленная, монолитная ж/б плита. Включая крыльцо и без террасы
- Стены несущие фасадные газобетонные блоки толщиной 300мм, плотностью 300кг/м3
- Внутренние несущие стены газобетонные блоки толщиной 250мм, плотностью 500кг/м3
- Перегородки газобетонные блоки толщиной 100мм, плотностью 500кг/м3
- Стропильная система антисептированный обрезной пиломатериал первого сорта.
- Утепление кровли ПСБ С 15 200мм и ЭПС 50мм
- Кровельное покрытие полимерная мембрана LOGICROOF 1,5мм
- Окна из профилей REHAU DELIGHT-Design с двухкамерным стеклопакетом
- Дверь входная металлическая временная
- В стоимость не входит
- В стоимость не входит
Что еще входит в стоимость:
Отправьте свои контакты и мы расчитаем вам смету
Скорее всего вам подойдут следующие проекты домов:
Проект одноэтажного дома Прайм
Семья с одним ребенком
Дом подходит для:
Дом подходит для:
Проект одноэтажного дома Дом id-113502
Семья с двумя детьми
Дом подходит для:
Дом подходит для:
Проект одноэтажного дома Дом id-120183
Семья с двумя детьми
Дом подходит для:
Дом подходит для:


















