Ваш город:

Проект двухэтажного дома Lisbon

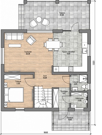
Площадь: 190 м2
Размер: 9.7х13.3
Дом подходит для:
Для большой семьи
Этажей:
2
Стены:
Кровля:
Металлочерепица
Цена:
Оставить заявку
Площадь
190 м 2
Размер дома:
9.7х13.3
Этажей:
2
Спален:
4
Санузел:
2
Гараж:
Нет
Баня:
Нет
Терраса:
Нет
Панорамные окна:
Нет
Мастер-спальня:
Нет
Фасады
О проекте
Этот дом из газобетона площадью 190 м² — воплощение простора и уюта. Теплые стены и продуманные детали делают его удобным. Надежные материалы обеспечивают долговечность и защищенность. Идеальный вариант для семейного очага.

Характеристики
  • Общая площадь: 190 м2
  • Жилая площадь: 151 м2
  • Количество этажей: 2
  • Гараж: нет
  • Площадь кровли: 197 м2
  • Стиль, разновидность: Дома в стиле Лофт
  • Форма: Квадратные дома
  • Тип кровли: Дома с двускатной крышей
  • Пристрой: Дома с балконом
  • Отделка: С черновой отделкой
  • Отделка фасада: Дома с комбинированной отделкой
  • Утеплитель: Дома с утеплением минватой
  • Фундамент: Дома с плитным фундаментом
  • Класс дома: Дома класса Стандарт
Материалы и перечень работ
  • Железобетонная монолитная плита 250 мм с арматурой ᴓ12 мм
  • Гидроизоляция основания: Под кладку стен и перегородок
  • Наружные стены и несущие перегородки: Газобетонный блок 250 мм плотностью D500
  • Внутренние перегородки: Газобетонный блок 150 мм плотностью D500
  • Перемычки над оконными и дверными проемами: Железобетонные с арматурой ᴓ12 мм
  • Межэтажное перекрытие: Железобетонная монолитная плита 180 мм
  • Стропильная система: Сухая доска 50х200 мм
  • Контробрешётка: Вентилируемый зазор подкровельного пространства строганый брусок 25х50 мм
  • Обрешётка крыши: Сухая доска 25х100 мм
  • Гидроизоляция: Гидро-ветрозащитная мембрана
  • Кровельное покрытие: Металлочерепица толщиной 0,45 мм
  • Окна: Металлопластиковые, мультифункциональные, Rehau Original Delight (Фурнитура Roto Designo II), москитные сетки
  • Входная дверь: Металлопластиковая, Rehau Original Doors 70 (Фурнитура дверная Roto)
  • В стоимость не входит
  • Отделка стен и откосов: Декоративная штукатурка с армированием, покрытие краской "Weber" белого цвета
  • Декоративные элементы: Имитация дерева, декоративная штукатурка «Ceresit Visage»
  • Железобетонная монолитная плита 250 мм с арматурой ᴓ12 мм
  • Гидроизоляция основания: Под кладку стен и перегородок
  • Наружные стены и несущие перегородки: Газобетонный блок 250 мм плотностью D500
  • Внутренние перегородки: Газобетонный блок 150 мм плотностью D500
  • Перемычки над оконными и дверными проемами: Железобетонные с арматурой ᴓ12 мм
  • Межэтажное перекрытие: Железобетонная монолитная плита 180 мм
  • Стропильная система: Сухая доска 50х200 мм
  • Контробрешётка: Вентилируемый зазор подкровельного пространства строганый брусок 25х50 мм
  • Обрешётка крыши: Сухая доска 25х100 мм
  • Гидроизоляция: Гидро-ветрозащитная мембрана
  • Кровельное покрытие: Металлочерепица толщиной 0,45 мм
  • Окна: Металлопластиковые, мультифункциональные, Rehau Original Delight (Фурнитура Roto Designo II), москитные сетки
  • Входная дверь: Металлопластиковая, Rehau Original Doors 70 (Фурнитура дверная Roto)
  • В стоимость не входит
  • Отделка стен и откосов: Декоративная штукатурка с армированием, покрытие краской "Weber" белого цвета
  • Декоративные элементы: Имитация дерева, декоративная штукатурка «Ceresit Visage»
Что еще входит в стоимость:
Фото и видеоотчет
Отправьте свои контакты и мы расчитаем вам смету
Прикрепить документ
Скорее всего вам подойдут следующие проекты домов: