Ваш город:

Проект двухэтажного дома Луиджи

Площадь: 116 м2
Размер: 8x8
Дом подходит для:
Семья с двумя детьми
Этажей:
2
Стены:
Кровля:
Рубероид
Цена:
Оставить заявку
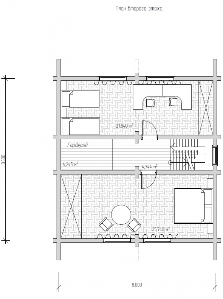
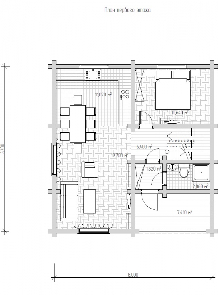
Площадь
116 м 2
Размер дома:
8x8
Этажей:
2
Спален:
3
Санузел:
0
Гараж:
Нет
Баня:
Нет
Терраса:
Нет
Панорамные окна:
Нет
Мастер-спальня:
Нет
О проекте
Архитектурный эксперимент, где контрольной группой выступила счастливая семья.С площадью 189 м² легко реализовать уникальный интерьер. Крыша из битумная черепица подчёркивает современный облик дома. Одноэтажная уютная планировка разделяет приватные и общественные зоны. Стены из бруса хорошо держат тепло и защищают от шума.

Характеристики
  • Общая площадь: 116 м2
  • Количество этажей: 2
  • Стиль, разновидность: Дома в ином стиле
  • Форма: Прямоугольные дома
  • Тип кровли: Дома с двускатной крышей
  • Отделка: Без отделки
  • Размер: 8x8
Отправьте свои контакты и мы расчитаем вам смету
Прикрепить документ
Скорее всего вам подойдут следующие проекты домов: