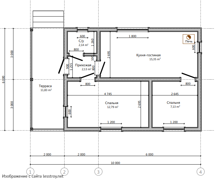
Проект одноэтажного дома Люксембург
Площадь
48 м 2
Размер дома:
6x10
Этажей:
1
Спален:
2
Санузел:
0
Гараж:
Нет
Баня:
Нет
Терраса:
Нет
Панорамные окна:
Нет
Мастер-спальня:
Нет
О проекте
Небольшой одноэтажный каркасный дом площадью 48 м² с металлочерепичной кровлей выполнен в финском стиле. Две спальни и компактные размеры делают его удобным для отдыха. Идеальный вариант для дачного участка.Характеристики
- Общая площадь: 48 м2
- Количество этажей: 1
- Стиль, разновидность: Финские дома
- Форма: Прямоугольные дома
- Тип кровли: Дома с односкатной крышей
- Отделка: Без отделки
- Размер: 6x10
Отправьте свои контакты и мы расчитаем вам смету
Скорее всего вам подойдут следующие проекты домов:
Дом подходит для:
Дом подходит для:
Дом подходит для:











