Проект двухэтажного дома М113-18
Дом подходит для:
Площадь
120 м 2
Размер дома:
6,8х8,8
Этажей:
2
Спален:
3
Санузел:
2
Гараж:
Нет
Баня:
Нет
Терраса:
Нет
Панорамные окна:
Нет
Мастер-спальня:
Нет
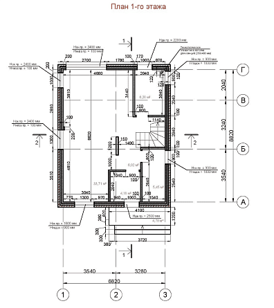
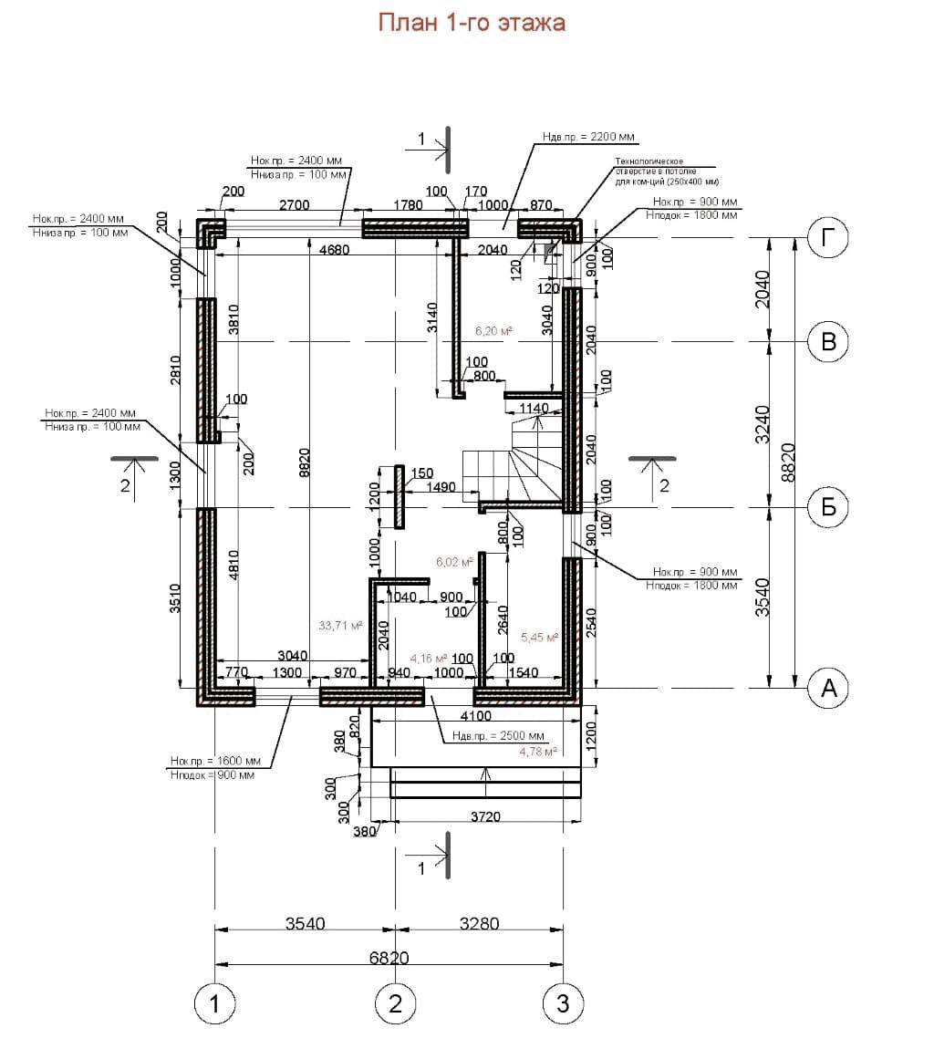
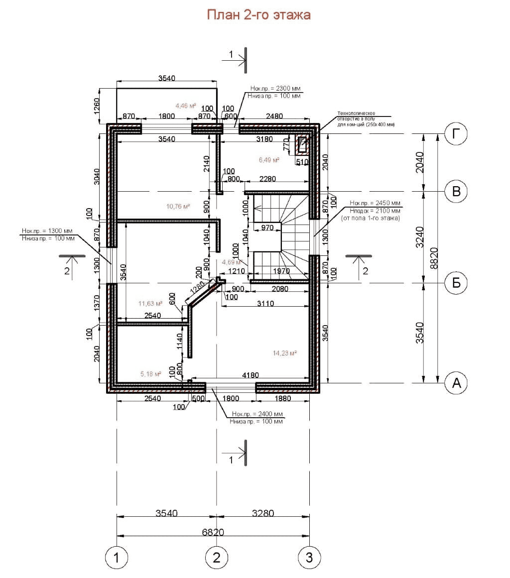
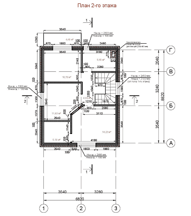
Планировка
Фасады
О проекте
Двухэтажный дом площадью 120 м² с жилыми 104 м² — это комфорт и надежность для семьи с двумя детьми. Монолитные стены создают теплую атмосферу, а три спальни и два санузла обеспечивают удобство. Светлые интерьеры и продуманная планировка наполняют дом гармонией. Это место, где каждый метр продуман для жильцов.Характеристики
- Общая площадь: 120 м2
- Жилая площадь: 104 м2
- Количество этажей: 2
- Гараж: нет
- Площадь кровли: 126 м2
- Отделка: Без отделки
- Фундамент: Дома с ленточным фундаментом
Материалы и перечень работ
- Ленточный по Ж/Б сваям с утеплением и гидроизоляцией. Высота ленты над землей 0,5 (высота цоколя). Бетон М350 (В25). Арматура А500С А3 D14мм.
- Устройство гильз под ввод в дом коммуникации.
- Стены монолитные железо-бетонные. Высота 3 метра. Бетон М350 (В25).Высота стен второго этажа1,5-3м (режутся кровельными скатами)
- Перекрытие монолитная железо-бетонная плита. Толщина 160мм, Бетон М350 (В25). Арматура А500С А3 D10мм.
- Стропильная система, утепление базальтовыми плитами плотностью 40кг/м3, толщиной 200мм, пароизоляционная и ветрозащитная пленки, металлочерепица. Угол наклона кровельных скатов не менее 40гр. Подшивка карнизных свесов, монтаж системы водостока и снегозадержания.
- 5-ти камерный профиль «REHAU» EURO-70 или Schuco CT-70 Euro с 2-х камерным энергосберегающим стеклопакетом, отливы.
- Ввод и прокладка труб канализации под полом первого этажа.
- Кирпичная кладка облицовочным кирпичем.
- Базальтовые плиты плотностью 80кг/м3,толщина 15см. Экструдированный пенополистерол толщиной 10см
- Ленточный по Ж/Б сваям с утеплением и гидроизоляцией. Высота ленты над землей 0,5 (высота цоколя). Бетон М350 (В25). Арматура А500С А3 D14мм.
- Устройство гильз под ввод в дом коммуникации.
- Стены монолитные железо-бетонные. Высота 3 метра. Бетон М350 (В25).Высота стен второго этажа1,5-3м (режутся кровельными скатами)
- Перекрытие монолитная железо-бетонная плита. Толщина 160мм, Бетон М350 (В25). Арматура А500С А3 D10мм.
- Стропильная система, утепление базальтовыми плитами плотностью 40кг/м3, толщиной 200мм, пароизоляционная и ветрозащитная пленки, металлочерепица. Угол наклона кровельных скатов не менее 40гр. Подшивка карнизных свесов, монтаж системы водостока и снегозадержания.
- 5-ти камерный профиль «REHAU» EURO-70 или Schuco CT-70 Euro с 2-х камерным энергосберегающим стеклопакетом, отливы.
- Ввод и прокладка труб канализации под полом первого этажа.
- Кирпичная кладка облицовочным кирпичем.
- Базальтовые плиты плотностью 80кг/м3,толщина 15см. Экструдированный пенополистерол толщиной 10см
Что еще входит в стоимость:
Отправьте свои контакты и мы расчитаем вам смету
Скорее всего вам подойдут следующие проекты домов:
Проект двухэтажного дома М148-20
Семья с двумя детьми
Дом подходит для:
Дом подходит для:
Проект двухэтажного дома М38-16
Для большой семьи
Дом подходит для:
Дом подходит для:











