Проект двухэтажного дома Маркус
Дом подходит для:
Площадь
127 м 2
Размер дома:
8x9
Этажей:
2
Спален:
3
Санузел:
2
Гараж:
Нет
Баня:
Нет
Терраса:
Нет
Панорамные окна:
Да
Мастер-спальня:
Нет
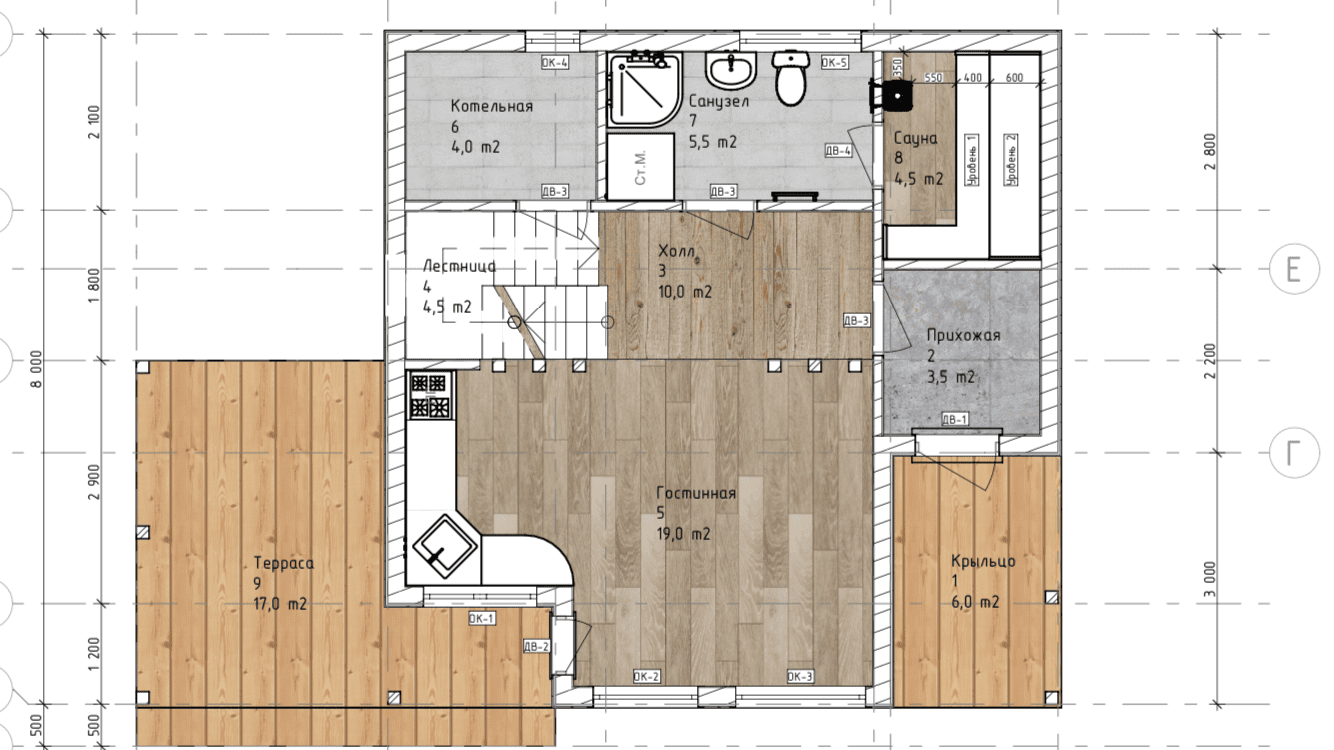
Планировка
Фасады
О проекте
Проект, где каждый уголок пропитан заботой. 127 м² вмещают всё необходимое без излишеств. Площадь дома — 92 м²: компактно, но просторно. С 2 санузла утро проходит спокойно. Фундамент обеспечивает надежность и долговечность конструкции. В качестве кровли использована металлочерепица — материал, проверенный временем. Стены из Каркас хорошо держат тепло и защищают от шума.Характеристики
- Общая площадь: 127 м2
- Жилая площадь: 92 м2
- Количество этажей: 2
- Гараж: нет
- Площадь кровли: 134 м2
- Отделка: Без отделки
- Размер: 8x9
- Фундамент: Дома со свайным фундаментом
Материалы и перечень работ
- Фундамент - железобетонные сваи 150x150x3000 мм
- Обвязка фундамента - брус 150x150 мм
- Огнебиозащита обвязки фундамента брусом и половых лаг 1 этажа
- Сетка от грызунов снизу чернового пола
- Половые лаги 1 - 2 этажа - доска 200x50 мм
- Каркас дома - доска 200x50 мм
- Утепление внешних стен и кровли 200 мм ( каменная вата Технониколь )
- Внутренняя отделка : стены - имитация бруса 140x16 мм , потолок вагонка 90 мм
- Цоколь - плитка керамогранит фирмы Уральский гранит
- Кровля металлочерепица фирмы Grand Line ( толщина 0,45 мм )
- Системы вентиляции в санузлах и на кухне - вывод коробов на крышу с установкой вентиляционных грибков
- Окна фирмы Мелке ( Рехау ) профиль 70 мм
- Отопление : установка электрокотла 12 Квт, монтаж радиаторов, запуск системы
- Электромонтажные работы : протяжка электропроводов в гофре внутри дома, установка розеток, подразетников, выключателей
- Водоснабжение : монтаж водонагревателя 100 л, прокладка труб из сшитого полителена, теплоизоляция труб, прокладка канализационных труб
- Внешняя отделка : имитация бруса 190x20 мм с покраской в 2 слоя
- Фундамент - железобетонные сваи 150x150x3000 мм
- Обвязка фундамента - брус 150x150 мм
- Огнебиозащита обвязки фундамента брусом и половых лаг 1 этажа
- Сетка от грызунов снизу чернового пола
- Половые лаги 1 - 2 этажа - доска 200x50 мм
- Каркас дома - доска 200x50 мм
- Утепление внешних стен и кровли 200 мм ( каменная вата Технониколь )
- Внутренняя отделка : стены - имитация бруса 140x16 мм , потолок вагонка 90 мм
- Цоколь - плитка керамогранит фирмы Уральский гранит
- Кровля металлочерепица фирмы Grand Line ( толщина 0,45 мм )
- Системы вентиляции в санузлах и на кухне - вывод коробов на крышу с установкой вентиляционных грибков
- Окна фирмы Мелке ( Рехау ) профиль 70 мм
- Отопление : установка электрокотла 12 Квт, монтаж радиаторов, запуск системы
- Электромонтажные работы : протяжка электропроводов в гофре внутри дома, установка розеток, подразетников, выключателей
- Водоснабжение : монтаж водонагревателя 100 л, прокладка труб из сшитого полителена, теплоизоляция труб, прокладка канализационных труб
- Внешняя отделка : имитация бруса 190x20 мм с покраской в 2 слоя
Что еще входит в стоимость:
Отправьте свои контакты и мы расчитаем вам смету
Скорее всего вам подойдут следующие проекты домов:
Дом подходит для:
Дом подходит для:
Дом подходит для:














