Проект двухэтажного дома Машино D 214
Дом подходит для:
Площадь
147 м 2
Размер дома:
13х12
Этажей:
2
Спален:
4
Санузел:
2
Гараж:
Да
Баня:
Нет
Терраса:
Нет
Панорамные окна:
Нет
Мастер-спальня:
Нет
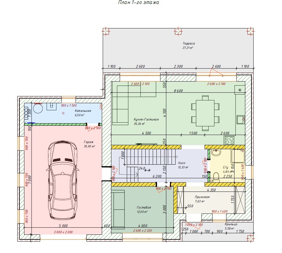
Планировка
Фасады
О проекте
Просторное жилье площадью 147 м² с 118 м² жилого пространства идеально для большой семьи. Газобетонные стены обеспечивают тепло и надежность, а четыре спальни создают комфорт. Гараж добавляет практичности, а светлые интерьеры дарят ощущение простора. Этот дом — воплощение уюта и стиля.Характеристики
- Общая площадь: 147 м2
- Жилая площадь: 118 м2
- Количество этажей: 2
- Гараж: 35
- Площадь кровли: 151 м2
- Отделка: Без отделки
- Фундамент: Дома с плитным фундаментом
Материалы и перечень работ
- Фундамент монолитная плита 300 мм
- Внешние стены из газоблока 400 мм
- Кровля мягкая Shinglas
- Межэтажное перекрытие монолитная плита 180 мм
- Чердачное перекрытие по деревянным лагам 45х190
- В стоимость не входит
- В стоимость не входит
- В стоимость не входит
- Фундамент монолитная плита 300 мм
- Внешние стены из газоблока 400 мм
- Кровля мягкая Shinglas
- Межэтажное перекрытие монолитная плита 180 мм
- Чердачное перекрытие по деревянным лагам 45х190
- В стоимость не входит
- В стоимость не входит
- В стоимость не входит
Что еще входит в стоимость:
Отправьте свои контакты и мы расчитаем вам смету
Скорее всего вам подойдут следующие проекты домов:
Проект двухэтажного дома Дом id-114662
Семья с двумя детьми
Дом подходит для:
Дом подходит для:
Проект двухэтажного дома Дом id-125898
Семья с двумя детьми
Дом подходит для:
Дом подходит для:
Проект двухэтажного дома Дом id-124856
Семья с двумя детьми
Дом подходит для:
Дом подходит для:


























