Проект одноэтажного дома Мельбурн
Площадь
138 м 2
Размер дома:
10x11
Этажей:
1
Спален:
4
Санузел:
0
Гараж:
Нет
Баня:
Нет
Терраса:
Нет
Панорамные окна:
Нет
Мастер-спальня:
Нет
О проекте
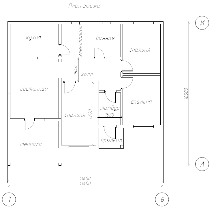
Дом из клееного бруса площадью 138 м² в стиле модерн с четырьмя спальнями — это дизайн и функциональность. Один этаж создает просторное жилое пространство, а металлочерепица подчеркивает современный облик.Характеристики
- Общая площадь: 138 м2
- Количество этажей: 1
- Стиль, разновидность: Дома в стиле Модерн
- Форма: Прямоугольные дома
- Тип кровли: Дома с многощипцовой крышей
- Отделка: Без отделки
- Размер: 10x11
Отправьте свои контакты и мы расчитаем вам смету
Скорее всего вам подойдут следующие проекты домов:
Дом подходит для:
Проект одноэтажного дома Одноэтажного дом из бруса 9.5х12 ДБ-7
Семья с одним ребенком
Дом подходит для:
Дом подходит для:
Дом подходит для:




