Проект двухэтажного дома Мэри
Дом подходит для:
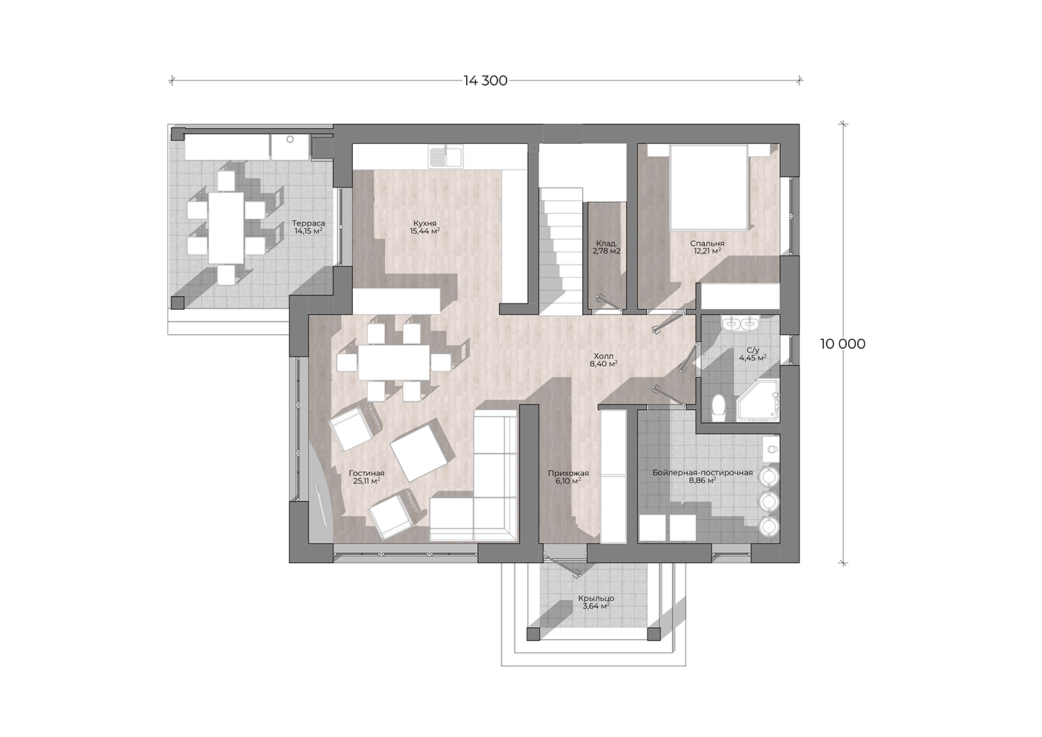
Площадь
160 м 2
Размер дома:
14.3 x 10
Этажей:
2
Спален:
4
Санузел:
3
Гараж:
Нет
Баня:
Нет
Терраса:
Нет
Панорамные окна:
Нет
Мастер-спальня:
Нет
Планировка
Фасады
О проекте
Красота и практичность переплетаются в этом доме, создавая гармоничное пространство. С площадью 160 м² и жилыми 141 м² он идеален для большой семьи. Керамоблок в основе стен обеспечивает прочность и уют. Светлые комнаты и продуманная планировка делают этот дом настоящим семейным гнездом.Характеристики
- Общая площадь: 160 м2
- Жилая площадь: 141 м2
- Количество этажей: 2
- Гараж: нет
- Площадь кровли: 164 м2
- Отделка: Без отделки
- Фундамент: Дома с железобетонным свайным фундаментом
Материалы и перечень работ
- Разработка котлована
- Геотекстиль (плотностью не менее 150 г/м²)
- Песчаная подушка (300 мм)
- Устройство арматурных каркасов (арматура А3 500С)
- Устройство монолитной плиты фундамента и фундаментных стен (сертифицированный бетон марки В22,5)
- Гидроизоляция под стенами
- Наружные стены из газобетона Bonolit / керамических блоков Porotherm
- Перегородки из газобетона Bonolit / керамических блоков Porotherm
- Металлочерепица / Цементно-песчаная черепица / Мягкая кровля
- Монолитный пояс для опирания кровли
- Стропильная система из доски 200х50 мм естественной влажности
- Утепление минеральной ватой (200 мм)
- Диффузионная мембрана
- В стоимость не входят
- Закладные для ввода воды, канализации и электричества
- Естественная вентиляция Schiedel
- Монолитные дверные и оконные перемычки
- Монолитное перекрытие (если 2 этажа)
- Монолитные колонны и балки
- Разработка котлована
- Геотекстиль (плотностью не менее 150 г/м²)
- Песчаная подушка (300 мм)
- Устройство арматурных каркасов (арматура А3 500С)
- Устройство монолитной плиты фундамента и фундаментных стен (сертифицированный бетон марки В22,5)
- Гидроизоляция под стенами
- Наружные стены из газобетона Bonolit / керамических блоков Porotherm
- Перегородки из газобетона Bonolit / керамических блоков Porotherm
- Металлочерепица / Цементно-песчаная черепица / Мягкая кровля
- Монолитный пояс для опирания кровли
- Стропильная система из доски 200х50 мм естественной влажности
- Утепление минеральной ватой (200 мм)
- Диффузионная мембрана
- В стоимость не входят
- Закладные для ввода воды, канализации и электричества
- Естественная вентиляция Schiedel
- Монолитные дверные и оконные перемычки
- Монолитное перекрытие (если 2 этажа)
- Монолитные колонны и балки
Что еще входит в стоимость:
Отправьте свои контакты и мы расчитаем вам смету
Скорее всего вам подойдут следующие проекты домов:
Дом подходит для:
Дом подходит для:
Дом подходит для:













