Проект одноэтажного дома Миасс - дом из керамических блоков для ПМЖ
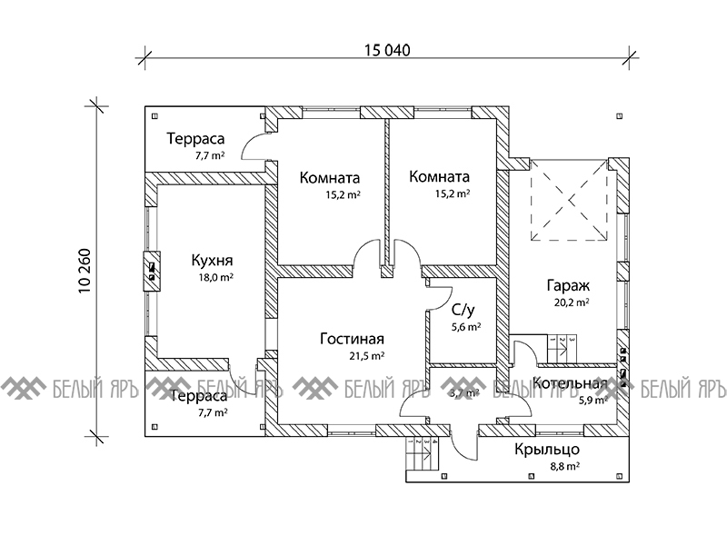
Площадь
129 м 2
Размер дома:
Этажей:
1
Спален:
2
Санузел:
0
Гараж:
Нет
Баня:
Нет
Терраса:
Нет
Панорамные окна:
Нет
Мастер-спальня:
Нет
О проекте
Дом из керамических блоков площадью 129 м² в стиле шале с двумя спальнями — это надежность и комфорт. Один этаж создает уютную атмосферу, а металлочерепица добавляет современности.Характеристики
- Общая площадь: 129 м2
- Количество этажей: 1
- Стиль, разновидность: Дома в стиле Шале
- Форма: Прямоугольные дома
- Тип кровли: Дома с двускатной крышей
- Отделка: Без отделки
Отправьте свои контакты и мы расчитаем вам смету
Скорее всего вам подойдут следующие проекты домов:
Дом подходит для:




