Проект одноэтажного дома Milan
Дом подходит для:
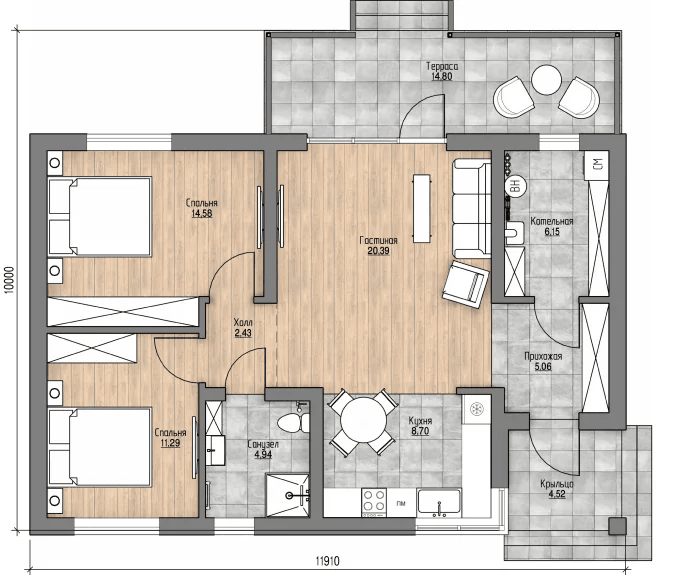
Площадь
93 м 2
Размер дома:
11.9х10
Этажей:
1
Спален:
3
Санузел:
1
Гараж:
Нет
Баня:
Нет
Терраса:
Нет
Панорамные окна:
Нет
Мастер-спальня:
Нет
Планировка
Фасады
О проекте
Дом площадью 93 м² — это место, где много воздуха и любви, наполненное светом. Жилая площадь 78 м² идеально подходит для семьи с двумя детьми, предлагая комфорт и функциональность. Газобетон в стенах придает дому тепло и надежность, делая его современным. Здесь каждый уголок продуман для жизни в гармонии.Характеристики
- Общая площадь: 93 м2
- Жилая площадь: 78 м2
- Количество этажей: 1
- Гараж: нет
- Площадь кровли: 96 м2
- Отделка: Без отделки
- Фундамент: Дома с плитным фундаментом
Материалы и перечень работ
- Железобетонная монолитная плита 250 мм с арматурой ᴓ12 мм
- Гидроизоляция основания: Под кладку стен и перегородок
- Наружные стены и несущие перегородки: Газобетонный блок 250 мм плотностью D500
- Внутренние перегородки: Газобетонный блок 150 мм плотностью D500
- Перемычки над оконными и дверными проемами: Железобетонные с арматурой ᴓ12 мм
- Армопояс: Железобетонный с арматурой ᴓ12 мм
- Кровельное покрытие: Металлочерепица толщиной 0,45 мм
- Стропильная система: Сухая доска 50х200 мм
- Контробрешётка: Вентилируемый зазор подкровельного пространства строганый брусок 25х50 мм
- Обрешётка крыши: Сухая доска 25х100 мм
- Огнебиозащита: Обработка деревянных конструкций
- Окна: Металлопластиковые, мультифункциональные, Rehau Original Delight (Фурнитура Roto Designo II), москитные сетки
- Входная дверь: Металлопластиковая, Rehau Original Doors 70 (Фурнитура дверная Roto)
- Разведение инженерных коммуникаций в базовую комплектацию не входит
- Утепление стен: Каменная вата 100 мм «Технониколь»
- Отделка стен и откосов: Декоративная штукатурка с армированием, покрытие краской "Weber" белого цвета
- Утепление цоколя: Экструдированный пенополистирол 80 мм
- Отделка цоколя: Декоративная штукатурка «Ceresit» с армированием, покрытие антивандальной краской серого цвета
- Декоративные элементы: Имитация дерева, декоративная штукатурка «Ceresit Visage»
- Железобетонная монолитная плита 250 мм с арматурой ᴓ12 мм
- Гидроизоляция основания: Под кладку стен и перегородок
- Наружные стены и несущие перегородки: Газобетонный блок 250 мм плотностью D500
- Внутренние перегородки: Газобетонный блок 150 мм плотностью D500
- Перемычки над оконными и дверными проемами: Железобетонные с арматурой ᴓ12 мм
- Армопояс: Железобетонный с арматурой ᴓ12 мм
- Кровельное покрытие: Металлочерепица толщиной 0,45 мм
- Стропильная система: Сухая доска 50х200 мм
- Контробрешётка: Вентилируемый зазор подкровельного пространства строганый брусок 25х50 мм
- Обрешётка крыши: Сухая доска 25х100 мм
- Огнебиозащита: Обработка деревянных конструкций
- Окна: Металлопластиковые, мультифункциональные, Rehau Original Delight (Фурнитура Roto Designo II), москитные сетки
- Входная дверь: Металлопластиковая, Rehau Original Doors 70 (Фурнитура дверная Roto)
- Разведение инженерных коммуникаций в базовую комплектацию не входит
- Утепление стен: Каменная вата 100 мм «Технониколь»
- Отделка стен и откосов: Декоративная штукатурка с армированием, покрытие краской "Weber" белого цвета
- Утепление цоколя: Экструдированный пенополистирол 80 мм
- Отделка цоколя: Декоративная штукатурка «Ceresit» с армированием, покрытие антивандальной краской серого цвета
- Декоративные элементы: Имитация дерева, декоративная штукатурка «Ceresit Visage»
Что еще входит в стоимость:
Отправьте свои контакты и мы расчитаем вам смету
Скорее всего вам подойдут следующие проекты домов:
Проект одноэтажного дома Прайм
Семья с одним ребенком
Дом подходит для:
Дом подходит для:
Проект одноэтажного дома Дом id-53749
Семья с двумя детьми
Дом подходит для:
Дом подходит для:
Проект одноэтажного дома Дом id-92374
Семья с двумя детьми
Дом подходит для:
Дом подходит для:



















