Проект одноэтажного дома MINIBarn
Дом подходит для:
Площадь
57 м 2
Размер дома:
10 х 5 х 5
Этажей:
1
Спален:
1
Санузел:
1
Гараж:
Нет
Баня:
Нет
Терраса:
Нет
Панорамные окна:
Нет
Мастер-спальня:
Нет
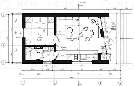
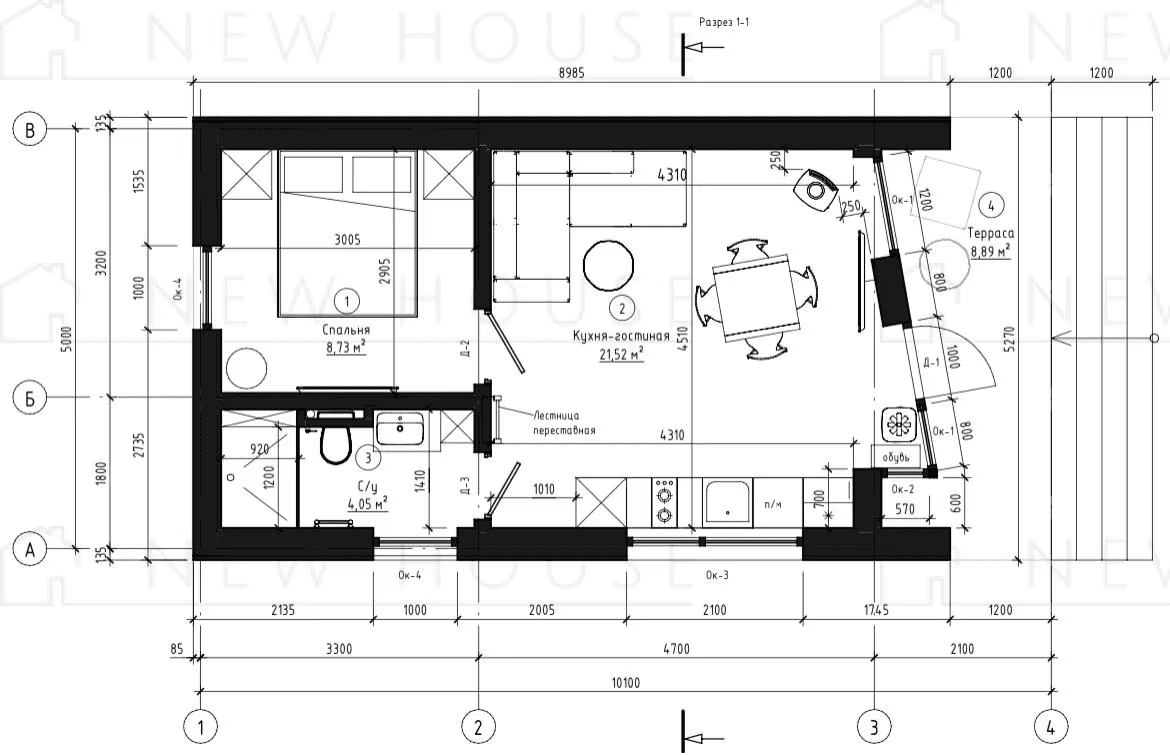
Планировка
Характеристики
- Общая площадь: 57 м2
- Жилая площадь: 48 м2
- Количество этажей: 1
- Гараж: нет
- Площадь кровли: 61 м2
- Отделка: Без отделки
Материалы и перечень работ
- В зависимости от почвы
- ЗАВОДСКОЙ КОМПЛЕКТ КАРКАСА PRECUT из усиленных двутавровых балок со стойками из бруса камерной сушки и ребром жёсткости из ОСП-3 12 мм, обшитый МДВП Белтермо ТОП 25 мм "шип-паз"
- ЦОКОЛЬНОЕ ПЕРЕКРЫТИЕ из БДКУ, подшив оцинкованной сеткой
- КРОВЛЯ клик-фальц Grand Line серии Pro с матовым покрытием Drap 0,45 мм с пленкой на замках RAL 7024
- ГИДРО-ВЕТРОЗАЩИТА на крыше ветро-влагозащитная супердиффузионная мембрана с проклейкой швов скотчем DELTA
- ОКНА И ДВЕРИ системы из 6-камерного бельгийского ПВХ профиля Deceuninck Favorit Space 76 мм с трехконтурным уплотнением, цветного с обеих сторон, фурнитурой и многофункциональными энергосберегающими 2-камерными стеклопакетами (3 стекла) с заполнением Ar (газ Аргон), фасадное остекление по плоскости фасада
- ЧЕРНОВОЙ ПОЛ ПЕРЕКРЫТИЙ цокольного и антресольного - ЦСП 16/20 мм
- УТЕПЛЕНИЕ цокольного перекрытия - 200 мм, внешних стен - 150 мм + МДВП Белтермо ТОП 25 мм "шип-паз", крыши - 250 мм; пароизоляция с проклейкой швов скотчем DELTA
- ЧИСТОВАЯ ОТДЕЛКА ВНЕШНИХ СТЕН - боковые и торцевые фасады из скандинавской тонкопиленной доски с заводской многослойной покраской, цвет на выбор Заказчика
- В зависимости от почвы
- ЗАВОДСКОЙ КОМПЛЕКТ КАРКАСА PRECUT из усиленных двутавровых балок со стойками из бруса камерной сушки и ребром жёсткости из ОСП-3 12 мм, обшитый МДВП Белтермо ТОП 25 мм "шип-паз"
- ЦОКОЛЬНОЕ ПЕРЕКРЫТИЕ из БДКУ, подшив оцинкованной сеткой
- КРОВЛЯ клик-фальц Grand Line серии Pro с матовым покрытием Drap 0,45 мм с пленкой на замках RAL 7024
- ГИДРО-ВЕТРОЗАЩИТА на крыше ветро-влагозащитная супердиффузионная мембрана с проклейкой швов скотчем DELTA
- ОКНА И ДВЕРИ системы из 6-камерного бельгийского ПВХ профиля Deceuninck Favorit Space 76 мм с трехконтурным уплотнением, цветного с обеих сторон, фурнитурой и многофункциональными энергосберегающими 2-камерными стеклопакетами (3 стекла) с заполнением Ar (газ Аргон), фасадное остекление по плоскости фасада
- ЧЕРНОВОЙ ПОЛ ПЕРЕКРЫТИЙ цокольного и антресольного - ЦСП 16/20 мм
- УТЕПЛЕНИЕ цокольного перекрытия - 200 мм, внешних стен - 150 мм + МДВП Белтермо ТОП 25 мм "шип-паз", крыши - 250 мм; пароизоляция с проклейкой швов скотчем DELTA
- ЧИСТОВАЯ ОТДЕЛКА ВНЕШНИХ СТЕН - боковые и торцевые фасады из скандинавской тонкопиленной доски с заводской многослойной покраской, цвет на выбор Заказчика
Что еще входит в стоимость:
Отправьте свои контакты и мы расчитаем вам смету
Скорее всего вам подойдут следующие проекты домов:
Проект одноэтажного дома Типовой дом 63
Семья с одним ребенком
Дом подходит для:
Дом подходит для:
Проект одноэтажного дома Майкл 68
Семья с двумя детьми
Дом подходит для:
Дом подходит для:
Проект одноэтажного дома Михидея
Семья с одним ребенком
Дом подходит для:
Дом подходит для:








