Проект одноэтажного дома Мирамар
Дом подходит для:
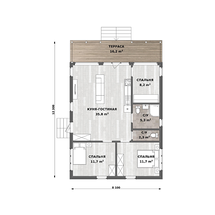
Площадь
91 м 2
Размер дома:
8x12
Этажей:
1
Спален:
4
Санузел:
2
Гараж:
Нет
Баня:
Нет
Терраса:
Нет
Панорамные окна:
Нет
Мастер-спальня:
Нет
Планировка
Характеристики
- Общая площадь: 91.2 м2
- Жилая площадь: 68 м2
- Количество этажей: 1
- Гараж: нет
- Площадь кровли: 95 м2
- Отделка: Без отделки
- Фундамент: Дома со свайным фундаментом
Материалы и перечень работ
- Монтаж ж/б свай
- Для равномерного распределения нагрузки на основание дома производится обвязка фундамента сухой калиброванной доской 40*190.
- Чердачное и цокольное перекрытие - усиленные балки 40x190, с шагом не более 620 мм
- Внутренние несущие стены - 40x145, с шагом не более 620 мм
- Внутренние перегородки - 40x95, с шагом не более 620 мм
- Для обустройства стропильной системы используется сухая калиброванная доска 40*190 мм, подготовленная на нашем производстве.
- Кровельное покрытие - металлочерепица Classic, покрытие полиэстер, с толщиной металла 0,5 мм.
- Контробрешетка из калиброванного бруса 40x45 по стропилам;
- Обрешетка из доски 25x100 с усилением по кровельным свесам.
- Для остекления оконных проемов используется современный профиль REHAU GRAZIO 70 мм с двумя контурами уплотнения.
- Установка технической металлической двери с двумя контурами уплотнения и цилиндрическим замком
- Ввод воды 1 шт: гильза с уклоном не менее 10 мм/м на песчаной подушке с засыпкой
- Ввод канализации 1 шт: выпускная канализационная труба с уклоном не менее 10 мм/м на песчаной подушке с засыпкой
- Ввод эл-ва: труба ПНД 63 мм под ввод электричества, 10 м.п. на глубине не менее 600 мм от поверхности грунта с сигнальной лентой
- Наружные стены (фасады) - 40x145, с шагом не более 620 мм
- Монтаж ж/б свай
- Для равномерного распределения нагрузки на основание дома производится обвязка фундамента сухой калиброванной доской 40*190.
- Чердачное и цокольное перекрытие - усиленные балки 40x190, с шагом не более 620 мм
- Внутренние несущие стены - 40x145, с шагом не более 620 мм
- Внутренние перегородки - 40x95, с шагом не более 620 мм
- Для обустройства стропильной системы используется сухая калиброванная доска 40*190 мм, подготовленная на нашем производстве.
- Кровельное покрытие - металлочерепица Classic, покрытие полиэстер, с толщиной металла 0,5 мм.
- Контробрешетка из калиброванного бруса 40x45 по стропилам;
- Обрешетка из доски 25x100 с усилением по кровельным свесам.
- Для остекления оконных проемов используется современный профиль REHAU GRAZIO 70 мм с двумя контурами уплотнения.
- Установка технической металлической двери с двумя контурами уплотнения и цилиндрическим замком
- Ввод воды 1 шт: гильза с уклоном не менее 10 мм/м на песчаной подушке с засыпкой
- Ввод канализации 1 шт: выпускная канализационная труба с уклоном не менее 10 мм/м на песчаной подушке с засыпкой
- Ввод эл-ва: труба ПНД 63 мм под ввод электричества, 10 м.п. на глубине не менее 600 мм от поверхности грунта с сигнальной лентой
- Наружные стены (фасады) - 40x145, с шагом не более 620 мм
Что еще входит в стоимость:
Отправьте свои контакты и мы расчитаем вам смету
Скорее всего вам подойдут следующие проекты домов:
Дом подходит для:
Дом подходит для:
Дом подходит для:










