Проект двухэтажного дома Мишино 300
Дом подходит для:
Площадь
300 м 2
Размер дома:
15,4х10,8
Этажей:
2
Спален:
4
Санузел:
3
Гараж:
Нет
Баня:
Нет
Терраса:
Нет
Панорамные окна:
Да
Мастер-спальня:
Да
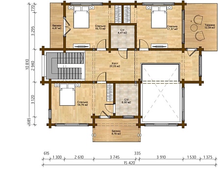
Планировка
Фасады
О проекте
Архитектура, которая говорит без слов: Ты дома. Даже при 300 м² пространство не теряет своей гармонии. 207 м² жилого пространства — разумное решение для повседневной жизни. Каждый член семьи оценит наличие 3 санузла. Материал кровли — битумная черепица, что добавляет зданию индивидуальность. Среди преимуществ — мастер-спальня. Фундамент обеспечивает надежность и долговечность конструкции.Материалы и перечень работ
- Монолитная железо-бетонная плита на ребрах жесткости, высота 400 мм
- Бетон марки М300 (B22,5), сертифицированный, выравнивание по СНиП, виброусадка
- Засыпка основания под ребра жесткости, песок 200-250 мм (H), гидроизоляция
- Армирование плиты в 2-слоя арматуры d12мм «рифлен», ростверков жесткости d12мм «рифлен», вязка по проекту КЖ на основании данных о грунтах и нагрузке дома
- Закладные под инженерные коммуникации (электрика, канализация, водоснабжение)
- Внешние стены: газобетонные теплые блоки YTONG 375 или POROTHERM 38 Thermo
- Внутренние несущие стены: газобетонные блоки YTONG 375 или POROTHERM
- Оригинальные оконные перемычки
- Армо-пояс, гидроизоляция
- МЯГКАЯ БИТУМНАЯ КРОВЛЯ TEGOL
- Стропильная система, сухая строганная доска: 40*180 мм.
- Огне-био защита
- Система обрешетки / Контробрешетки
- Утеплитель - минеральная вата 200 мм
- Окна REHAU с 2-х камерным стеклопакетом (3 стекла)
- 3-х камерный оконный профиль - 60 мм
- Разводка скрытой электрики в гофротрубе (пожаробезопасно)
- Разводка системы канализации (от 7 точек)
- 2-ух контурный котел
- Разводка системы отопления (2-ух трубная система, от 12 точек)
- Разводка системы холодного/горячего водоснабжения (тройниковая, от 12 точек)
- Установка внутренних не несущих перегородок, раскладка труб и кабеля
- Монолитная железо-бетонная плита на ребрах жесткости, высота 400 мм
- Бетон марки М300 (B22,5), сертифицированный, выравнивание по СНиП, виброусадка
- Засыпка основания под ребра жесткости, песок 200-250 мм (H), гидроизоляция
- Армирование плиты в 2-слоя арматуры d12мм «рифлен», ростверков жесткости d12мм «рифлен», вязка по проекту КЖ на основании данных о грунтах и нагрузке дома
- Закладные под инженерные коммуникации (электрика, канализация, водоснабжение)
- Внешние стены: газобетонные теплые блоки YTONG 375 или POROTHERM 38 Thermo
- Внутренние несущие стены: газобетонные блоки YTONG 375 или POROTHERM
- Оригинальные оконные перемычки
- Армо-пояс, гидроизоляция
- МЯГКАЯ БИТУМНАЯ КРОВЛЯ TEGOL
- Стропильная система, сухая строганная доска: 40*180 мм.
- Огне-био защита
- Система обрешетки / Контробрешетки
- Утеплитель - минеральная вата 200 мм
- Окна REHAU с 2-х камерным стеклопакетом (3 стекла)
- 3-х камерный оконный профиль - 60 мм
- Разводка скрытой электрики в гофротрубе (пожаробезопасно)
- Разводка системы канализации (от 7 точек)
- 2-ух контурный котел
- Разводка системы отопления (2-ух трубная система, от 12 точек)
- Разводка системы холодного/горячего водоснабжения (тройниковая, от 12 точек)
- Установка внутренних не несущих перегородок, раскладка труб и кабеля
Что еще входит в стоимость:
Отправьте свои контакты и мы расчитаем вам смету
Скорее всего вам подойдут следующие проекты домов:
Проект двухэтажного дома Дом id-92357
Для большой семьи
Дом подходит для:
Дом подходит для:
Проект двухэтажного дома Дом id-86140
Семья с двумя детьми
Дом подходит для:
Дом подходит для:
Проект двухэтажного дома Дом id-98359
Для большой семьи
Дом подходит для:
Дом подходит для:

























