Проект одноэтажного дома Modern-mini
Дом подходит для:
Площадь
80 м 2
Размер дома:
8.5х13.5
Этажей:
1
Спален:
3
Санузел:
1
Гараж:
Нет
Баня:
Нет
Терраса:
Да
Панорамные окна:
Нет
Мастер-спальня:
Нет
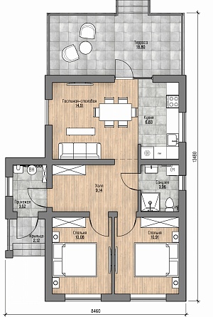
Планировка
Фасады
О проекте
Modern-mini — компактный дом площадью 80 м² с продуманной планировкой, где 49 м² отведено под жилые помещения. Пространство наполнено светом благодаря удачному расположению окон, создавая ощущение простора даже в небольших комнатах. Газобетонные стены обеспечивают тепло и тишину, а металлочерепичная кровля дополняет современный облик. Идеальный вариант для семьи с двумя детьми, где каждый найдет свой уголок для отдыха.Характеристики
- Общая площадь: 80 м2
- Жилая площадь: 49 м2
- Количество этажей: 1
- Гараж: нет
- Площадь кровли: 86 м2
- Стиль, разновидность: Дома в стиле Лофт
- Форма: Квадратные дома
- Тип кровли: Дома с двускатной крышей
- Пристрой: Дома с террасой
- Отделка: С черновой отделкой
- Отделка фасада: Дома с комбинированной отделкой
- Утеплитель: Дома с утеплением минватой
- Фундамент: Дома с плитным фундаментом
- Класс дома: Дома класса Стандарт
Материалы и перечень работ
- Железобетонная монолитная плита 250 мм с арматурой ᴓ12 мм
- Гидроизоляция основания: Под кладку стен и перегородок
- Наружные стены и несущие перегородки: Газобетонный блок 250 мм плотностью D500
- Внутренние перегородки: Газобетонный блок 150 мм плотностью D500
- Перемычки над оконными и дверными проемами: Железобетонные с арматурой ᴓ12 мм
- Межэтажное перекрытие: Деревянное балочное, утепление минеральная вата 200 мм
- Стропильная система: Сухая доска 50х200 мм
- Контробрешётка: Вентилируемый зазор подкровельного пространства строганый брусок 25х50 мм
- Обрешётка крыши: Сухая доска 25х100 мм
- Огнебиозащита: Обработка деревянных конструкций
- Кровельное покрытие: Металлочерепица толщиной 0,45 мм
- Окна: Металлопластиковые, мультифункциональные, Rehau Original Delight (Фурнитура Roto Designo II), москитные сетки
- Входная дверь: Металлопластиковая, Rehau Original Doors 70 (Фурнитура дверная Roto)
- В стоимость не входит
- Отделка стен и откосов: Декоративная штукатурка с армированием, покрытие краской "Weber" белого цвета
- Декоративные элементы: Имитация дерева, декоративная штукатурка «Ceresit Visage»
- Железобетонная монолитная плита 250 мм с арматурой ᴓ12 мм
- Гидроизоляция основания: Под кладку стен и перегородок
- Наружные стены и несущие перегородки: Газобетонный блок 250 мм плотностью D500
- Внутренние перегородки: Газобетонный блок 150 мм плотностью D500
- Перемычки над оконными и дверными проемами: Железобетонные с арматурой ᴓ12 мм
- Межэтажное перекрытие: Деревянное балочное, утепление минеральная вата 200 мм
- Стропильная система: Сухая доска 50х200 мм
- Контробрешётка: Вентилируемый зазор подкровельного пространства строганый брусок 25х50 мм
- Обрешётка крыши: Сухая доска 25х100 мм
- Огнебиозащита: Обработка деревянных конструкций
- Кровельное покрытие: Металлочерепица толщиной 0,45 мм
- Окна: Металлопластиковые, мультифункциональные, Rehau Original Delight (Фурнитура Roto Designo II), москитные сетки
- Входная дверь: Металлопластиковая, Rehau Original Doors 70 (Фурнитура дверная Roto)
- В стоимость не входит
- Отделка стен и откосов: Декоративная штукатурка с армированием, покрытие краской "Weber" белого цвета
- Декоративные элементы: Имитация дерева, декоративная штукатурка «Ceresit Visage»
Что еще входит в стоимость:
Отправьте свои контакты и мы расчитаем вам смету
Скорее всего вам подойдут следующие проекты домов:
Проект одноэтажного дома КД-355
Семья с одним ребенком
Дом подходит для:
Дом подходит для:
Проект одноэтажного дома ПР24-23/03
Для большой семьи
Дом подходит для:
Дом подходит для:
Проект одноэтажного дома Оптима 76-1
Семья с одним ребенком
Дом подходит для:
Дом подходит для:










