Проект одноэтажного дома Модерн
Дом подходит для:
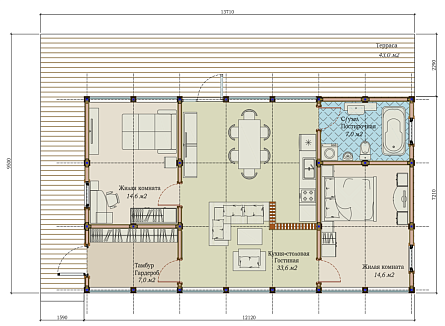
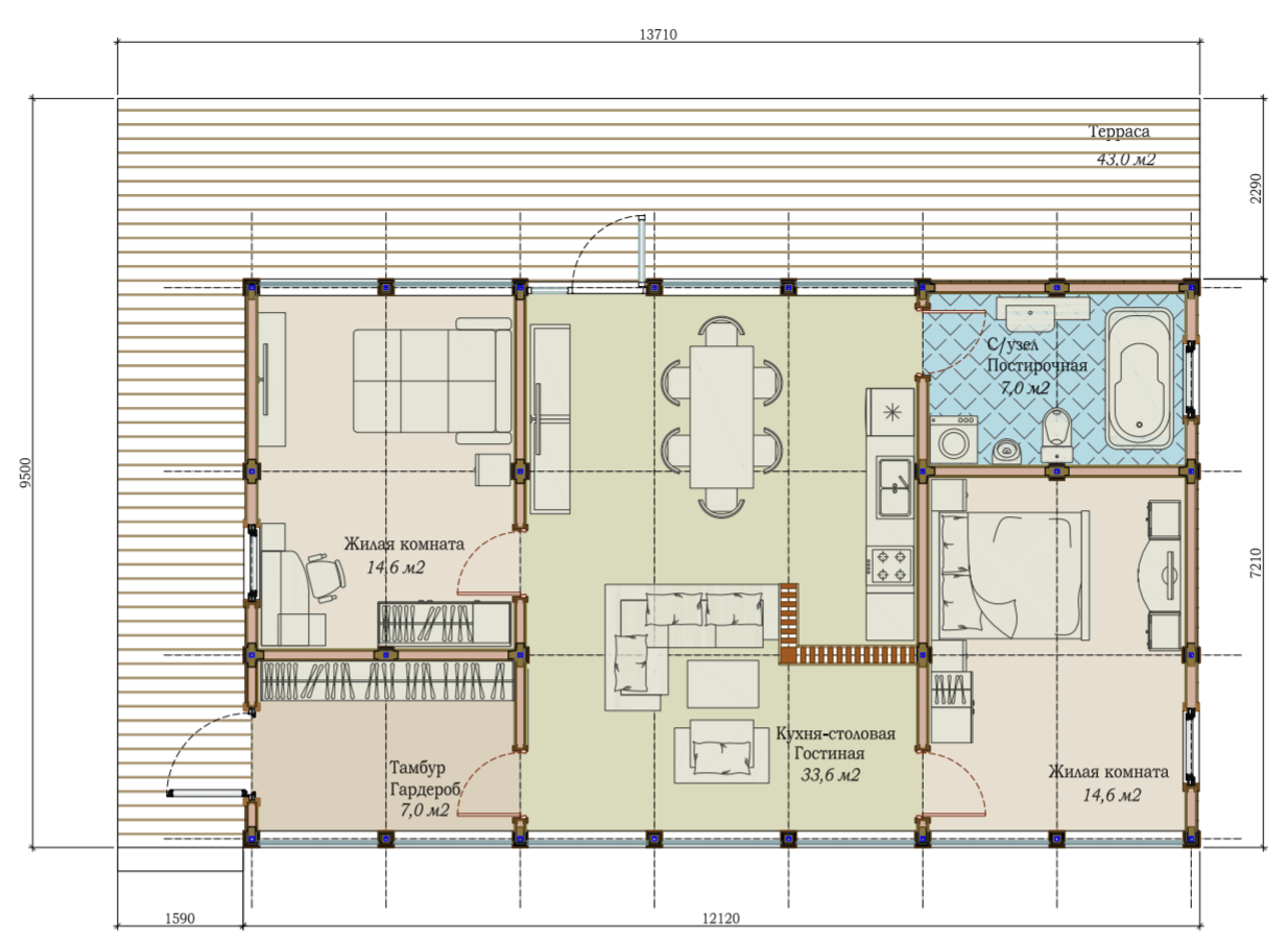
Площадь
87 м 2
Размер дома:
13,7х9,5
Этажей:
1
Спален:
2
Санузел:
1
Гараж:
Нет
Баня:
Нет
Терраса:
Нет
Панорамные окна:
Нет
Мастер-спальня:
Нет
Планировка
Характеристики
- Общая площадь: 87 м2
- Жилая площадь: 70 м2
- Количество этажей: 1
- Гараж: нет
- Площадь кровли: 95 м2
- Отделка: Без отделки
Материалы и перечень работ
- Силовой каркас и теплый контур – поэтажная, стоечно- балочная технология строительства.
- Утепленные клеёные крашенные конструкции в основе сосна, усиленные металлическими закладными трубами. Труба используется для прокладки коммуникаций.
- Cтены снаружи и внутри выполнены в виде самонесущих трехслойных монолитных блоков. В качестве конструкционного материала применяются клееные плиты из ламелей цельной древесины преимущественно березы или хвойных пород дерева. В качестве заполнения используется экологически чистый и стойкий к открытому пламени утеплитель "ЭкоПирКарбон» .
- Перекрытия кровельные и межэтажные: высокопрочные клеёные крашеные П - образные несущие конструкции из LVL - бруса.
- Наружные слои крыши – влагостойкая фанера ФСФ - 12мм, покрыта специальным гидроизоляционным материалом. В качестве заполнения используется утеплитель - ЭкоПирКарбон.
- В стоимость не входит
- Скрытые закладные элементы для установки и обеспечения: отопления, вентиляции и кондиционирования, холодного и горячего водоснабжения, разводки хозяйственно-бытовой канализации и ливневой системы, установки электрического щита и электроустановочных изделий.
- В стоимость не входит
- Силовой каркас и теплый контур – поэтажная, стоечно- балочная технология строительства.
- Утепленные клеёные крашенные конструкции в основе сосна, усиленные металлическими закладными трубами. Труба используется для прокладки коммуникаций.
- Cтены снаружи и внутри выполнены в виде самонесущих трехслойных монолитных блоков. В качестве конструкционного материала применяются клееные плиты из ламелей цельной древесины преимущественно березы или хвойных пород дерева. В качестве заполнения используется экологически чистый и стойкий к открытому пламени утеплитель "ЭкоПирКарбон» .
- Перекрытия кровельные и межэтажные: высокопрочные клеёные крашеные П - образные несущие конструкции из LVL - бруса.
- Наружные слои крыши – влагостойкая фанера ФСФ - 12мм, покрыта специальным гидроизоляционным материалом. В качестве заполнения используется утеплитель - ЭкоПирКарбон.
- В стоимость не входит
- Скрытые закладные элементы для установки и обеспечения: отопления, вентиляции и кондиционирования, холодного и горячего водоснабжения, разводки хозяйственно-бытовой канализации и ливневой системы, установки электрического щита и электроустановочных изделий.
- В стоимость не входит
Что еще входит в стоимость:
Отправьте свои контакты и мы расчитаем вам смету
Скорее всего вам подойдут следующие проекты домов:
Проект одноэтажного дома FL Next 103
Семья с двумя детьми
Дом подходит для:
Дом подходит для:


