Ваш город:

Проект двухэтажного дома Монкала-1

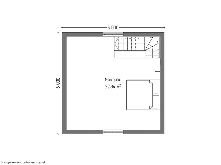
Площадь: 63 м2
Размер: 6x6
Дом подходит для:
Семья с одним ребенком
Этажей:
2
Стены:
Кровля:
Металлочерепица
Цена:
Оставить заявку
Площадь
63 м 2
Размер дома:
6x6
Этажей:
2
Спален:
1
Санузел:
0
Гараж:
Нет
Баня:
Нет
Терраса:
Нет
Панорамные окна:
Нет
Мастер-спальня:
Нет
О проекте
Современный двухэтажный каркасный дом площадью 63 м² с мансардной крышей из металлочерепицы. Одна уютная спальня и открытая планировка первого этажа идеально подходят для молодой пары. Панорамные окна в гостиной создают ощущение единения с природой и наполняют пространство естественным светом.

Характеристики
  • Общая площадь: 63 м2
  • Количество этажей: 2
  • Стиль, разновидность: Дома в ином стиле
  • Форма: Квадратные дома
  • Тип кровли: Дома с мансардной крышей
  • Отделка: Без отделки
  • Размер: 6x6
Отправьте свои контакты и мы расчитаем вам смету
Прикрепить документ
Скорее всего вам подойдут следующие проекты домов:
Добавить к сравнению
Добавить в избранное
Изображение
Изображение
Изображение
Изображение
Изображение
Дом подходит для:
Семья с двумя детьми
Добавить к сравнению
Добавить в избранное
Изображение
Изображение
Изображение
Изображение
Изображение
Проект двухэтажного дома Дубки
Площадь: 60 м2
Размер: 6x6
Дом подходит для:
Семья с одним ребенком
Дом подходит для:
Семья с одним ребенком
Добавить к сравнению
Добавить в избранное
Изображение
Изображение
Изображение
Изображение
Изображение
Проект двухэтажного дома Камикава
Площадь: 72 м2
Размер: 6x6
Дом подходит для:
Семья с одним ребенком
Дом подходит для:
Семья с одним ребенком