Проект двухэтажного дома Н 31
Дом подходит для:
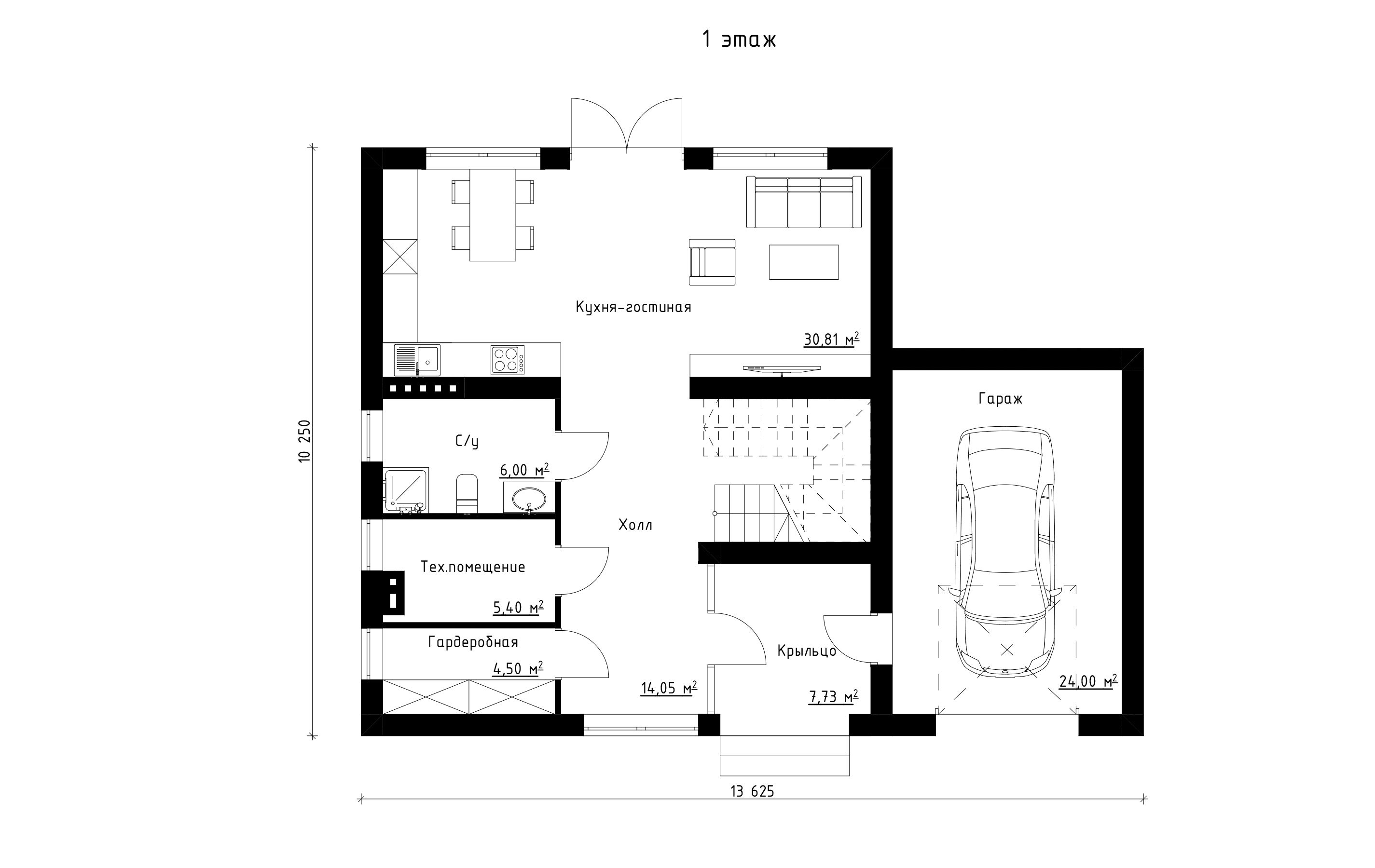
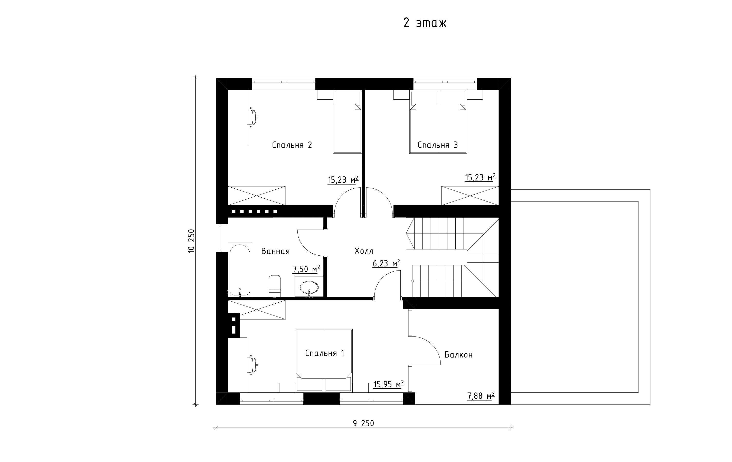
Площадь
161 м 2
Размер дома:
13,6х10,2
Этажей:
2
Спален:
3
Санузел:
2
Гараж:
Да
Баня:
Нет
Терраса:
Нет
Панорамные окна:
Нет
Мастер-спальня:
Нет
Планировка
Материалы и перечень работ
- Монолитная ж/б плита 300 мм. Арматура диаметром 12мм.
- Керамический блок Porotherm 38 Thermo.
- Керамический блок Porotherm 12.
- Кровля - ПВХ мембрана.
- Плиты , серии ПК, высотой 220 мм.
- VEKA 70 профиль белый.
- Вентиляция кухни и сан. узлов естественная, с подготовкой под установку котла отопления,выводится на кровлю при помощи вент. шахт.
- Керамический блок Porotherm 38 Thermo.
- Монолитная ж/б плита 300 мм. Арматура диаметром 12мм.
- Керамический блок Porotherm 38 Thermo.
- Керамический блок Porotherm 12.
- Кровля - ПВХ мембрана.
- Плиты , серии ПК, высотой 220 мм.
- VEKA 70 профиль белый.
- Вентиляция кухни и сан. узлов естественная, с подготовкой под установку котла отопления,выводится на кровлю при помощи вент. шахт.
- Керамический блок Porotherm 38 Thermo.
Что еще входит в стоимость:
Отправьте свои контакты и мы расчитаем вам смету
Скорее всего вам подойдут следующие проекты домов:
Дом подходит для:
Дом подходит для:
Дом подходит для:













