Проект двухэтажного дома НЕО
Дом подходит для:
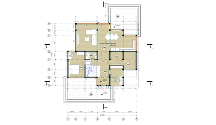
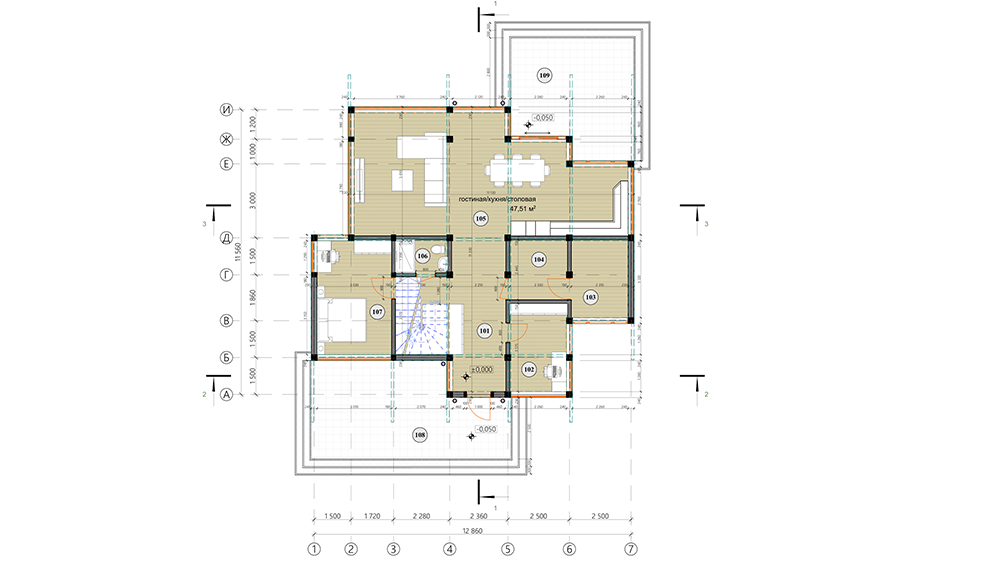
Площадь
223 м 2
Размер дома:
12,8х11,5
Этажей:
2
Спален:
3
Санузел:
2
Гараж:
Нет
Баня:
Нет
Терраса:
Нет
Панорамные окна:
Нет
Мастер-спальня:
Нет
Планировка
Фасады
О проекте
Дом НЕО площадью 223 м² с жилыми 187 м² — воплощение стиля и функциональности. Брус в стенах создает теплую атмосферу, а металлочерепица на крыше гарантирует защиту. Три спальни и два санузла делают его идеальным для семьи. Вариативный фундамент завершает образ этого современного жилья.Характеристики
- Общая площадь: 223 м2
- Жилая площадь: 187 м2
- Количество этажей: 2
- Гараж: нет
- Высота дома: 6 м
- Площадь кровли: 230 м2
- Отделка: Без отделки
Материалы и перечень работ
- ЖБ монолитная плита 250мм на песчаной подушке с гидроизоляцией и утеплением. Либо ЖБ сваи 200х200х3000 с ростверком + устройство цокольного перекрытия из сухой строганной антисептированной доски с сеткой против грызунов, утеплением 250мм и листовым материалом в качестве чернового пола. Закладные под инженерные коммуникации.
- Каркас Фахверк - опорно-балочная конструкция из клееных конструкционных балок, стойки угловые 240х240, рядовые 180х240, обвязки 240х240, прогоны 360х80, «лобовая доска» - клееная конструкционная балка.
- Обработка элементов транспортным антисептиком и торцов средством от растрескивания на заводе.
- Сборка на подкладочный брус из лиственницы и гидроизоляцию
- Стропильная система из сухой строганной доски, утепление 200мм базальтовой или минеральной ватой + 40мм ПИР-плита, гидро-ветрозащитная мембрана с внешней стороны, обрешетка и контробрешетка для кровельного покрытия.
- Отделка кровли - металлочерепица 0,5мм со всеми доборными элементами или специальный пирог для плоской кровли,, металлическая водосточная система, подшив свесов имитацией бруса, окрашенным в заводских условиях, или металлическими софитами на выбор.
- Безрамные энергоэффективные 2-камерные стеклопакеты с защитой от солнечной жары (мультифункциональное и низкоэмиссионное напыление). Камеры с теплой дистанционной рамкой и заполнением аргоном.
- Установка в пазы, герметизация швов.
- Окна и двери балконного типа - ПВХ профиль 70мм с ламинацией в цвет конструктива, фурнитура Roto или аналог.
- Противомоскитные сетки.
- Дверь входная - теплая с терморазрывом российского производства.
- Ограждение балконов с использованием закаленного стекла - при наличии балконов.
- Устройство террас при их наличии в проекте из террасной доски из лиственницы, окрашенной в заводских условиях.
- Крепеж и все расходные материалы.
- Отделка фасада - фиброцементные панели kmew или фиброцементный сайдинг cedral.
- Монтаж отливов и капельников на всех стенах и окнах.
- ЖБ монолитная плита 250мм на песчаной подушке с гидроизоляцией и утеплением. Либо ЖБ сваи 200х200х3000 с ростверком + устройство цокольного перекрытия из сухой строганной антисептированной доски с сеткой против грызунов, утеплением 250мм и листовым материалом в качестве чернового пола. Закладные под инженерные коммуникации.
- Каркас Фахверк - опорно-балочная конструкция из клееных конструкционных балок, стойки угловые 240х240, рядовые 180х240, обвязки 240х240, прогоны 360х80, «лобовая доска» - клееная конструкционная балка.
- Обработка элементов транспортным антисептиком и торцов средством от растрескивания на заводе.
- Сборка на подкладочный брус из лиственницы и гидроизоляцию
- Стропильная система из сухой строганной доски, утепление 200мм базальтовой или минеральной ватой + 40мм ПИР-плита, гидро-ветрозащитная мембрана с внешней стороны, обрешетка и контробрешетка для кровельного покрытия.
- Отделка кровли - металлочерепица 0,5мм со всеми доборными элементами или специальный пирог для плоской кровли,, металлическая водосточная система, подшив свесов имитацией бруса, окрашенным в заводских условиях, или металлическими софитами на выбор.
- Безрамные энергоэффективные 2-камерные стеклопакеты с защитой от солнечной жары (мультифункциональное и низкоэмиссионное напыление). Камеры с теплой дистанционной рамкой и заполнением аргоном.
- Установка в пазы, герметизация швов.
- Окна и двери балконного типа - ПВХ профиль 70мм с ламинацией в цвет конструктива, фурнитура Roto или аналог.
- Противомоскитные сетки.
- Дверь входная - теплая с терморазрывом российского производства.
- Ограждение балконов с использованием закаленного стекла - при наличии балконов.
- Устройство террас при их наличии в проекте из террасной доски из лиственницы, окрашенной в заводских условиях.
- Крепеж и все расходные материалы.
- Отделка фасада - фиброцементные панели kmew или фиброцементный сайдинг cedral.
- Монтаж отливов и капельников на всех стенах и окнах.
Что еще входит в стоимость:
Отправьте свои контакты и мы расчитаем вам смету
Скорее всего вам подойдут следующие проекты домов:
Дом подходит для:
Проект двухэтажного дома Concept SQUARE
Семья с одним ребенком
Дом подходит для:
Дом подходит для:







