Проект двухэтажного дома NOEX BASE 240/2
Дом подходит для:
Площадь
240 м 2
Размер дома:
11,7х10,6
Этажей:
2
Спален:
5
Санузел:
3
Гараж:
Нет
Баня:
Нет
Терраса:
Нет
Панорамные окна:
Да
Мастер-спальня:
Нет
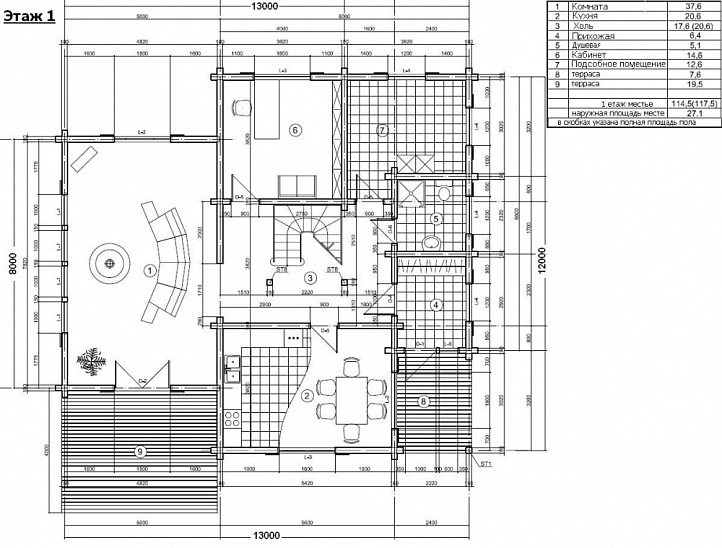
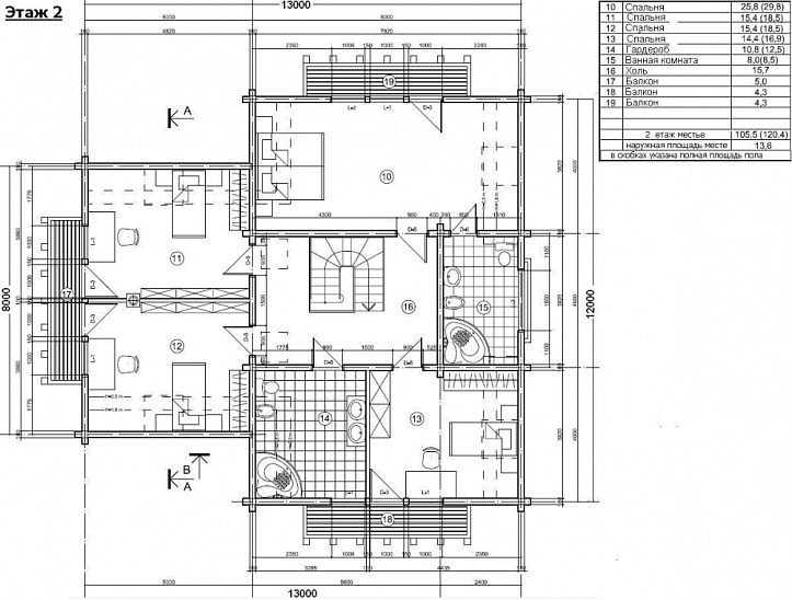
Планировка
Характеристики
- Общая площадь: 240 м2
- Жилая площадь: 168 м2
- Количество этажей: 2
- Гараж: нет
- Высота дома: 6 м
- Площадь кровли: 247 м2
- Отделка: Без отделки
Материалы и перечень работ
- Выбор фундамента и системы отопления предоставляется заказчику исходя из особенностей рельефа и технических условий на земельном участке.
- Силовой каркас из клееных конструкционных балок, собранных по технологии NOEX.
- стойки от 160*160 до 240*240(угловые).
- обработка антисептиком
- стропильная система из клееных балок
- пазы под все стены, окна, двери и стеклопакеты
- Кровельные панели с утеплителем ПИР 120мм, цвет 7024 или 8017 на выбор, не требующие дополнительного кровельного покрытия
- Монтаж на специальную стропильную систему из клееных балок
- Все необходимые доборные элементы
- 2-х камерные стеклопакеты
- внешнее стекло с мультифункциональным напылением — защищает от излишнего ультрафиолета, перегрева помещений и не выпускает тепло наружу
- внутреннее стекло с низкоэмиссионным напылением сохраняет тепло внутри помещений
- теплая дистанционная рамка из композитных материалов не является мостом холода
- монтаж в пазы — исключено любое продувание и выпадение стеклопакетов
- Подключение дома к водоснабжению, электроснабжению и интернету производится по согласованию с Заказчиком и рассчитывается индивидуально.
- Панели стеновые с утепление ПИР 80мм белого цвета
- Монтаж в пазы
- Герметизация примыканий
- Перекрестное утепление
- Выбор фундамента и системы отопления предоставляется заказчику исходя из особенностей рельефа и технических условий на земельном участке.
- Силовой каркас из клееных конструкционных балок, собранных по технологии NOEX.
- стойки от 160*160 до 240*240(угловые).
- обработка антисептиком
- стропильная система из клееных балок
- пазы под все стены, окна, двери и стеклопакеты
- Кровельные панели с утеплителем ПИР 120мм, цвет 7024 или 8017 на выбор, не требующие дополнительного кровельного покрытия
- Монтаж на специальную стропильную систему из клееных балок
- Все необходимые доборные элементы
- 2-х камерные стеклопакеты
- внешнее стекло с мультифункциональным напылением — защищает от излишнего ультрафиолета, перегрева помещений и не выпускает тепло наружу
- внутреннее стекло с низкоэмиссионным напылением сохраняет тепло внутри помещений
- теплая дистанционная рамка из композитных материалов не является мостом холода
- монтаж в пазы — исключено любое продувание и выпадение стеклопакетов
- Подключение дома к водоснабжению, электроснабжению и интернету производится по согласованию с Заказчиком и рассчитывается индивидуально.
- Панели стеновые с утепление ПИР 80мм белого цвета
- Монтаж в пазы
- Герметизация примыканий
- Перекрестное утепление
Что еще входит в стоимость:
Отправьте свои контакты и мы расчитаем вам смету
Скорее всего вам подойдут следующие проекты домов:
Дом подходит для:
Дом подходит для:
Дом подходит для:








