Проект одноэтажного дома Новый Город 62A
Дом подходит для:
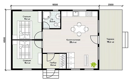
Площадь
78 м 2
Размер дома:
6,5x12
Этажей:
1
Спален:
2
Санузел:
1
Гараж:
Нет
Баня:
Нет
Терраса:
Нет
Панорамные окна:
Нет
Мастер-спальня:
Нет
Планировка
Фасады
О проекте
Компактные 78 м² с жилыми 61 м² создают уютное пространство для небольшой семьи. Каркасная конструкция обеспечивает тепло и надежность, а продуманная планировка делает жизнь удобной. Светлые интерьеры и натуральные материалы дарят ощущение спокойствия и уюта. Это идеальное решение для тех, кто ценит практичность и комфорт.Характеристики
- Общая площадь: 78 м2
- Жилая площадь: 61 м2
- Количество этажей: 1
- Гараж: нет
- Площадь кровли: 82 м2
- Отделка: Под ключ
- Фундамент: Дома со свайно-винтовым фундаментом
Материалы и перечень работ
- Фундамент свайно-винтовой
- Обвязка основания: Наборный брус из доски 50х150 мм в три ряда. Обвязка крепится к оголовкам свай на шурупы (глухари).
- Нижнее перекрытие пола: Лаги пола сечением 45х140 мм из древесины хвойных пород камерной сушки, шаг лаг 600мм. Снизу пола укладывается ветровлагозащитная пленка Изоспан АM и монтируется сетка от грызунов.
- Стены: Стойки сечением 45х190 мм из древесины хвойных пород камерной сушки. По стойкам снаружи каркаса монтируется контробрешетка из бруска 30х50 мм по ветровлагозащитной пленке Изоспан АM. В стены запиливаются диагональные усиления из доски 40х100 мм и разгрузочные ригеля из доски 45х145 мм.
- Вентилируемый наружный фасад: Брусок сечением 30х50/40х40 из древесины хвойных пород камерной сушки.
- Внутренние стены и перегородки: Из доски 40х100 мм с шагом 600 мм.
- Кровельная система: Стропила сечением 45х190 мм, контрбрус сечением 45х45 мм (для вентиляции подкровельного пространства), обрешетка сечением 25х100 мм (для монтажа кровельного покрытия из профнастила или металлочерепицы).
- Кровля: Усиленный кровельный профнастил С-20 0,45мм , RAL на выбор. Сетка от птиц.
- Дверь входная: В соответствии с выбранным проектом. Дверь ПВХ , профиль 60 Melke.
- Окна: ПВХ, профиль 60 Melke. Стеклопакет двухкамерный, цвет белый. Одна створка поворотно-откидная. Размеры окон в соответствии с паспортом Объекта.
- В стоимость не входит
- Наружная отделка фасада: Стены с наружной стороны обшиваются имитацией бруса 16мм класс АВ и профнастил С-20 0,45мм , RAL на выбор.
- Гидроизоляционная ветрозащитная паропроницаемая мембрана Изоспан АM, плотность 110. Температурная стабильность -60 до + 80. Применяется для защиты утеплителя и внутренних элементов стен от ветра, атмосферной влаги, пороши, а также обеспечивает выведение водяных паров из утеплителя. Материал укладывается с внешней стороны утеплителя под наружной облицовкой стены. Применение паропроницаемой мембраны позволяет сохранить теплозащитные характеристики утеплителя и продлить срок службы всей конструкции.
- Фундамент свайно-винтовой
- Обвязка основания: Наборный брус из доски 50х150 мм в три ряда. Обвязка крепится к оголовкам свай на шурупы (глухари).
- Нижнее перекрытие пола: Лаги пола сечением 45х140 мм из древесины хвойных пород камерной сушки, шаг лаг 600мм. Снизу пола укладывается ветровлагозащитная пленка Изоспан АM и монтируется сетка от грызунов.
- Стены: Стойки сечением 45х190 мм из древесины хвойных пород камерной сушки. По стойкам снаружи каркаса монтируется контробрешетка из бруска 30х50 мм по ветровлагозащитной пленке Изоспан АM. В стены запиливаются диагональные усиления из доски 40х100 мм и разгрузочные ригеля из доски 45х145 мм.
- Вентилируемый наружный фасад: Брусок сечением 30х50/40х40 из древесины хвойных пород камерной сушки.
- Внутренние стены и перегородки: Из доски 40х100 мм с шагом 600 мм.
- Кровельная система: Стропила сечением 45х190 мм, контрбрус сечением 45х45 мм (для вентиляции подкровельного пространства), обрешетка сечением 25х100 мм (для монтажа кровельного покрытия из профнастила или металлочерепицы).
- Кровля: Усиленный кровельный профнастил С-20 0,45мм , RAL на выбор. Сетка от птиц.
- Дверь входная: В соответствии с выбранным проектом. Дверь ПВХ , профиль 60 Melke.
- Окна: ПВХ, профиль 60 Melke. Стеклопакет двухкамерный, цвет белый. Одна створка поворотно-откидная. Размеры окон в соответствии с паспортом Объекта.
- В стоимость не входит
- Наружная отделка фасада: Стены с наружной стороны обшиваются имитацией бруса 16мм класс АВ и профнастил С-20 0,45мм , RAL на выбор.
- Гидроизоляционная ветрозащитная паропроницаемая мембрана Изоспан АM, плотность 110. Температурная стабильность -60 до + 80. Применяется для защиты утеплителя и внутренних элементов стен от ветра, атмосферной влаги, пороши, а также обеспечивает выведение водяных паров из утеплителя. Материал укладывается с внешней стороны утеплителя под наружной облицовкой стены. Применение паропроницаемой мембраны позволяет сохранить теплозащитные характеристики утеплителя и продлить срок службы всей конструкции.
Что еще входит в стоимость:
Отправьте свои контакты и мы расчитаем вам смету
Скорее всего вам подойдут следующие проекты домов:
Дом подходит для:
Проект одноэтажного дома Проект 7028 - Одноэтажный каркасный барнхаус с двумя спальнями
Семья с одним ребенком
Дом подходит для:
Дом подходит для:
Дом подходит для:














