Проект двухэтажного дома Нойс
Площадь
245 м 2
Размер дома:
10x11
Этажей:
2
Спален:
3
Санузел:
0
Гараж:
Нет
Баня:
Нет
Терраса:
Нет
Панорамные окна:
Нет
Мастер-спальня:
Нет
О проекте
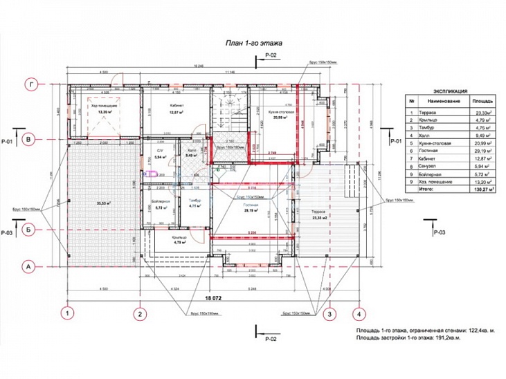
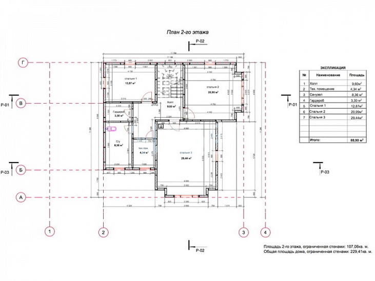
Каркасный дом площадью 245 кв.м. с тремя спальнями — это простор и комфорт для всей семьи. Легкие стены и прочная конструкция делают его практичным. Проект выполнен в оригинальном стиле, который подчеркивает индивидуальность. Идеальный выбор для тех, кто любит принимать гостей. Здесь каждый найдет место для отдыха.Характеристики
- Общая площадь: 245 м2
- Количество этажей: 2
- Стиль, разновидность: Дома в ином стиле
- Форма: Широкие дома
- Тип кровли: Дома с иной крышей
- Отделка: Без отделки
- Размер: 10x11
Отправьте свои контакты и мы расчитаем вам смету
Скорее всего вам подойдут следующие проекты домов:
Дом подходит для:
Дом подходит для:
Дом подходит для:










