Ваш город:

Проект одноэтажного дома Очаг

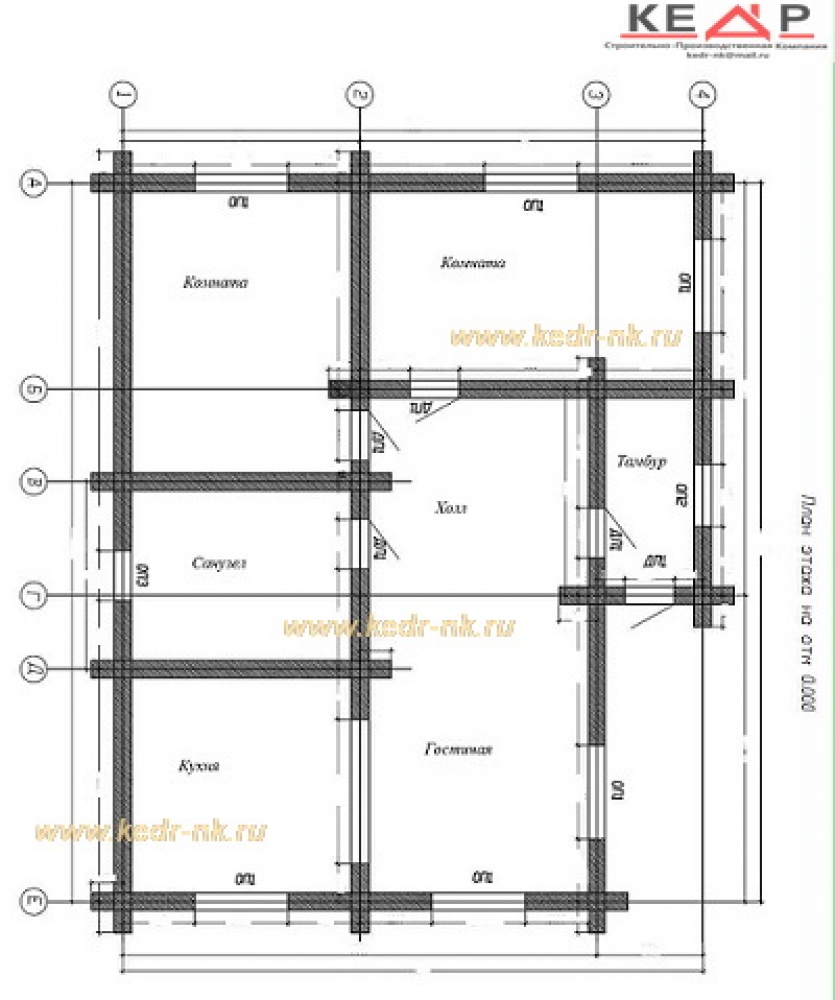
Площадь: 92 м2
Размер: 10x10
Дом подходит для:
Семья с одним ребенком
Этажей:
1
Стены:
Кровля:
Металлочерепица
Цена:
Оставить заявку
Площадь
92 м 2
Размер дома:
10x10
Этажей:
1
Спален:
2
Санузел:
0
Гараж:
Нет
Баня:
Нет
Терраса:
Нет
Панорамные окна:
Нет
Мастер-спальня:
Нет
О проекте
Минимализм фасада сочетается с продуманной эргономикой.Свободная планировка в 92 м² вдохновляет на перемены. Архитектура выполнена в стиле дома в классическом стиле. Конструкция из бревна обеспечивает прочность и долговечность. В качестве кровли использована металлочерепица — материал, проверенный временем.

Характеристики
  • Общая площадь: 92 м2
  • Количество этажей: 1
  • Стиль, разновидность: Дома в ином стиле
  • Форма: Прямоугольные дома
  • Тип кровли: Дома с иной крышей
  • Отделка: Без отделки
  • Размер: 10x10
Отправьте свои контакты и мы расчитаем вам смету
Прикрепить документ
Скорее всего вам подойдут следующие проекты домов: