Проект одноэтажного дома ОД-103.01
Дом подходит для:
Площадь
103 м 2
Размер дома:
7,5х13,75
Этажей:
1
Спален:
3
Санузел:
2
Гараж:
Нет
Баня:
Нет
Терраса:
Нет
Панорамные окна:
Нет
Мастер-спальня:
Нет
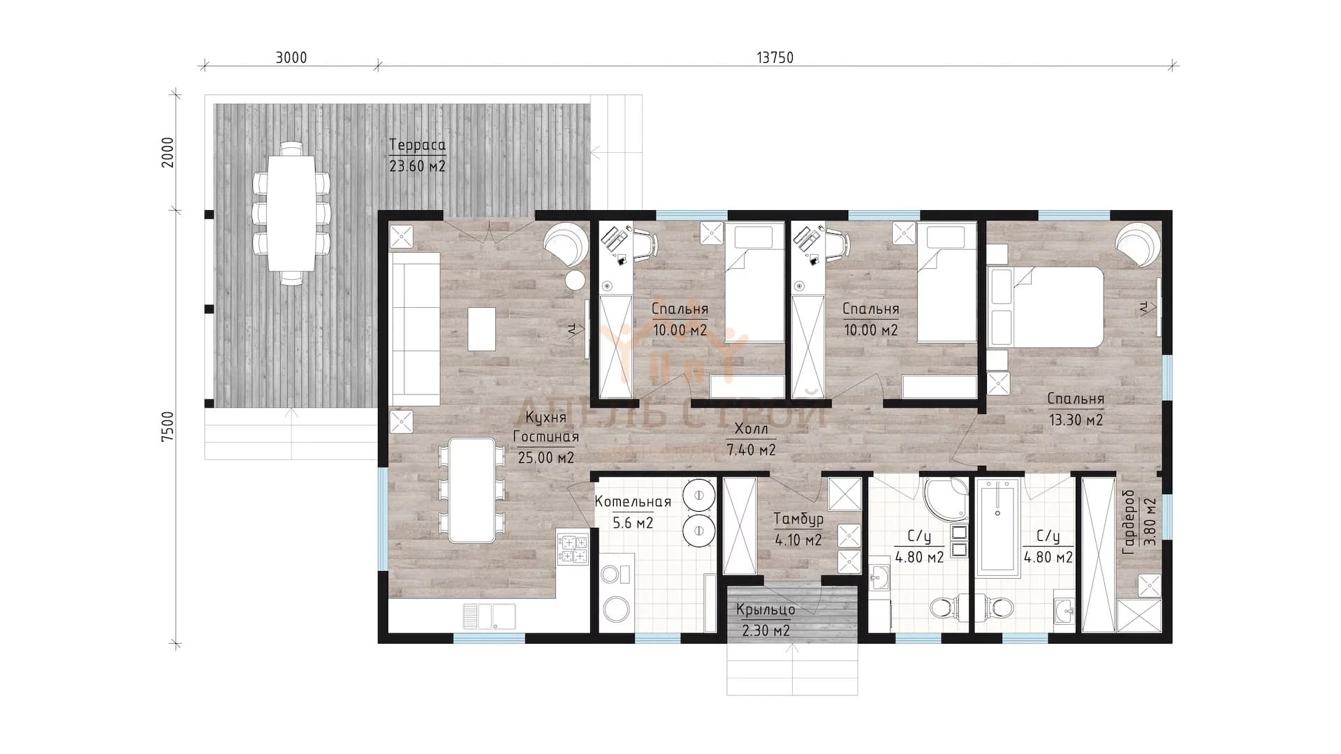
Планировка
Фасады
О проекте
Уютное жилье площадью 103 м² с 82 м² жилого пространства создано для семейного благополучия. Каркасные стены дарят тепло, а два санузла добавляют удобства для всех членов семьи. Просторные комнаты наполнены светом, создавая атмосферу спокойствия. Здесь каждая деталь продумана для комфортной жизни.Характеристики
- Общая площадь: 103 м2
- Жилая площадь: 82 м2
- Количество этажей: 1
- Гараж: нет
- Площадь кровли: 106 м2
- Отделка: Без отделки
- Фундамент: Дома со свайным фундаментом
Материалы и перечень работ
- Тип фундамента — Металлические сваи
- Длина сваи — 2500 мм
- Диаметр сваи — 108 мм, лопасть — 300 мм
- Металлический оголовок 200х200
- Полы СИП 174 мм
- Стыковочный брус для панелей пола СИП 174 мм 75х145 мм
- Высота стены 2,5 метра СИП 174 мм
- Стыковочный сухой строганный брус для внешних СИП стен 75х145 мм
- Внутренние несущие стены из сухой строганной доски 45х145 мм Внутренние перегородки из сухой строганной доски 45х95 мм
- Стропильная система из обрезной доски 50х150 мм, обработанная биозащитным составом
- Гидроизоляционная мембрана (отвод конденсата из подкровельного пространства)
- Контробрешетка 50х50 мм, обработанная биозащитным составом
- Карнизная планка и капельник в цвет крыши
- Металлочерепица Grandline, цвет на выбор
- В стоимость не входит
- В стоимость не входит
- В стоимость не входит
- Тип фундамента — Металлические сваи
- Длина сваи — 2500 мм
- Диаметр сваи — 108 мм, лопасть — 300 мм
- Металлический оголовок 200х200
- Полы СИП 174 мм
- Стыковочный брус для панелей пола СИП 174 мм 75х145 мм
- Высота стены 2,5 метра СИП 174 мм
- Стыковочный сухой строганный брус для внешних СИП стен 75х145 мм
- Внутренние несущие стены из сухой строганной доски 45х145 мм Внутренние перегородки из сухой строганной доски 45х95 мм
- Стропильная система из обрезной доски 50х150 мм, обработанная биозащитным составом
- Гидроизоляционная мембрана (отвод конденсата из подкровельного пространства)
- Контробрешетка 50х50 мм, обработанная биозащитным составом
- Карнизная планка и капельник в цвет крыши
- Металлочерепица Grandline, цвет на выбор
- В стоимость не входит
- В стоимость не входит
- В стоимость не входит
Что еще входит в стоимость:
Отправьте свои контакты и мы расчитаем вам смету
Скорее всего вам подойдут следующие проекты домов:
Дом подходит для:
Дом подходит для:
Проект одноэтажного дома Каркасный дом серии Сакура Тай базовая комплектация ПМЖ
Для большой семьи
Дом подходит для:
Дом подходит для:










