Проект одноэтажного дома одноэтажный 89,9 м2
Дом подходит для:
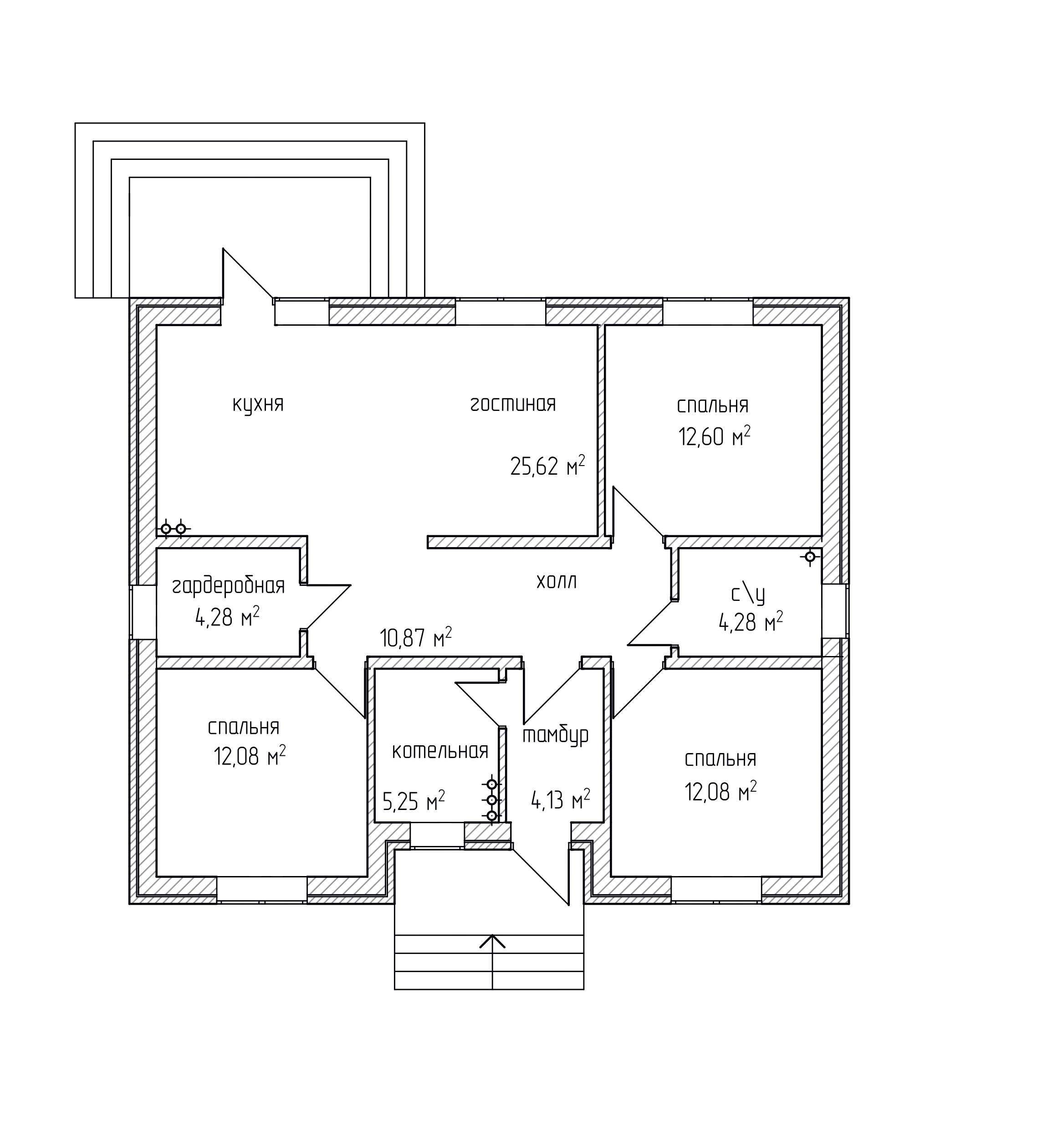
Площадь
89 м 2
Размер дома:
9x10
Этажей:
1
Спален:
3
Санузел:
1
Гараж:
Нет
Баня:
Нет
Терраса:
Да
Панорамные окна:
Нет
Мастер-спальня:
Нет
Планировка
Характеристики
- Общая площадь: 89 м2
- Жилая площадь: 60 м2
- Количество этажей: 1
- Гараж: нет
- Высота дома: 5 м
- Площадь кровли: 163,06 м2
- Стиль, разновидность: Дом с панорамными окнами во французском стиле
- Форма: Квадратные дома
- Тип кровли: Дома с четырехскатной крышей (вальмовой)
- Пристрой: Дома с террасой
- Отделка: White box
- Отделка фасада: Дома с кирпичной отделкой
- Фундамент: Дома со свайно-ростверковым фундаментом
- Класс дома: Дома класса Эконом
Материалы и перечень работ
- Cвайно-ростверковый, технические особенности: глубина свай 2,5м диаметр свай 250-300мм, бетон М300, арматура диаметром 12,10,8 мм, сетка кладочная базальтовая
- Гидроизоляция: Рубероид 2 слоя
- Наличие разных комплектаций: жб плита
- Материал, из которого изготовлены несущие и неосновные стены: газосиликатный блок, кирпич
- Перекрытия: брус
- Деревянная стропильная система кровли
- Гидропароизоляция, металлочерепица, утеплитель 200 мм, софиты
- Окна ПВХ 70 профиль
- Металлическая дверь с терморазрывом
- Скважина 56 м, насос
- Теплый пол с терморегулятором
- Радиаторы отопления, котел
- Электроразводка
- Канализация
- Внешняя отделка: облицовочный кирпич
- Внутренняя: механизированная штукатурка
- Cтяжка пола
- Cвайно-ростверковый, технические особенности: глубина свай 2,5м диаметр свай 250-300мм, бетон М300, арматура диаметром 12,10,8 мм, сетка кладочная базальтовая
- Гидроизоляция: Рубероид 2 слоя
- Наличие разных комплектаций: жб плита
- Материал, из которого изготовлены несущие и неосновные стены: газосиликатный блок, кирпич
- Перекрытия: брус
- Деревянная стропильная система кровли
- Гидропароизоляция, металлочерепица, утеплитель 200 мм, софиты
- Окна ПВХ 70 профиль
- Металлическая дверь с терморазрывом
- Скважина 56 м, насос
- Теплый пол с терморегулятором
- Радиаторы отопления, котел
- Электроразводка
- Канализация
- Внешняя отделка: облицовочный кирпич
- Внутренняя: механизированная штукатурка
- Cтяжка пола
Что еще входит в стоимость:
Отправьте свои контакты и мы расчитаем вам смету
Скорее всего вам подойдут следующие проекты домов:
Проект одноэтажного дома одноэтажный 90 м2
Семья с двумя детьми
Дом подходит для:
Дом подходит для:
Проект одноэтажного дома 80 м2
Семья с двумя детьми
Дом подходит для:
Дом подходит для:
Проект одноэтажного дома 11-100
Семья с одним ребенком
Дом подходит для:
Дом подходит для:






