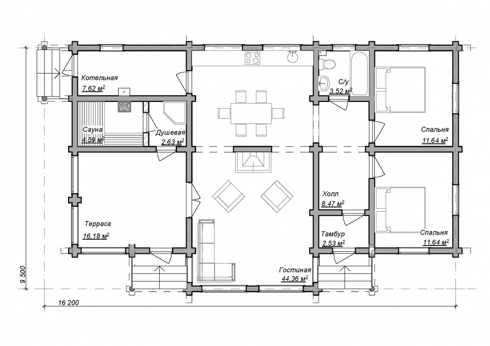
Проект одноэтажного дома Одноэтажный деревянный дом Гостиный двор-113
Площадь
113 м 2
Размер дома:
Этажей:
1
Спален:
2
Санузел:
0
Гараж:
Нет
Баня:
Нет
Терраса:
Нет
Панорамные окна:
Нет
Мастер-спальня:
Нет
О проекте
Уютный бревенчатый дом площадью 113 м² в стиле лофт. Один этаж с двумя спальнями предлагает нестандартное решение. Сочетание грубоватой фактуры бревен и современных элементов создает уникальный образ. Для любителей смелых интерьерных решений.Характеристики
- Общая площадь: 113 м2
- Количество этажей: 1
- Стиль, разновидность: Дома в стиле Лофт
- Форма: Квадратные дома
- Тип кровли: Дома с двускатной крышей
- Отделка: Без отделки
Отправьте свои контакты и мы расчитаем вам смету
Скорее всего вам подойдут следующие проекты домов:
Дом подходит для:
Дом подходит для:
Дом подходит для:




