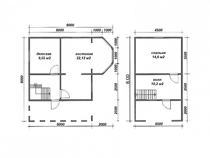
Проект одноэтажного дома Одноэтажный дом 8х9 под усадку из бруса 150х150
Площадь
72 м 2
Размер дома:
8x9
Этажей:
1
Спален:
2
Санузел:
0
Гараж:
Нет
Баня:
Нет
Терраса:
Нет
Панорамные окна:
Нет
Мастер-спальня:
Нет
О проекте
Дом, в котором каждая деталь создана с любовью к вашему комфорту.С площадью 100 м² легко реализовать уникальный интерьер. Дом спроектирован в духе дома в классическом стиле. В качестве кровли использована ондулин — материал, проверенный временем. Количество спален — 3, делая планировку гибкой.Характеристики
- Общая площадь: 72 м2
- Количество этажей: 1
- Стиль, разновидность: Дома в стиле Шале
- Форма: Квадратные дома
- Тип кровли: Дома с двускатной крышей
- Отделка: Без отделки
- Размер: 8x9








