Проект двухэтажного дома Охлебинино-126
Площадь
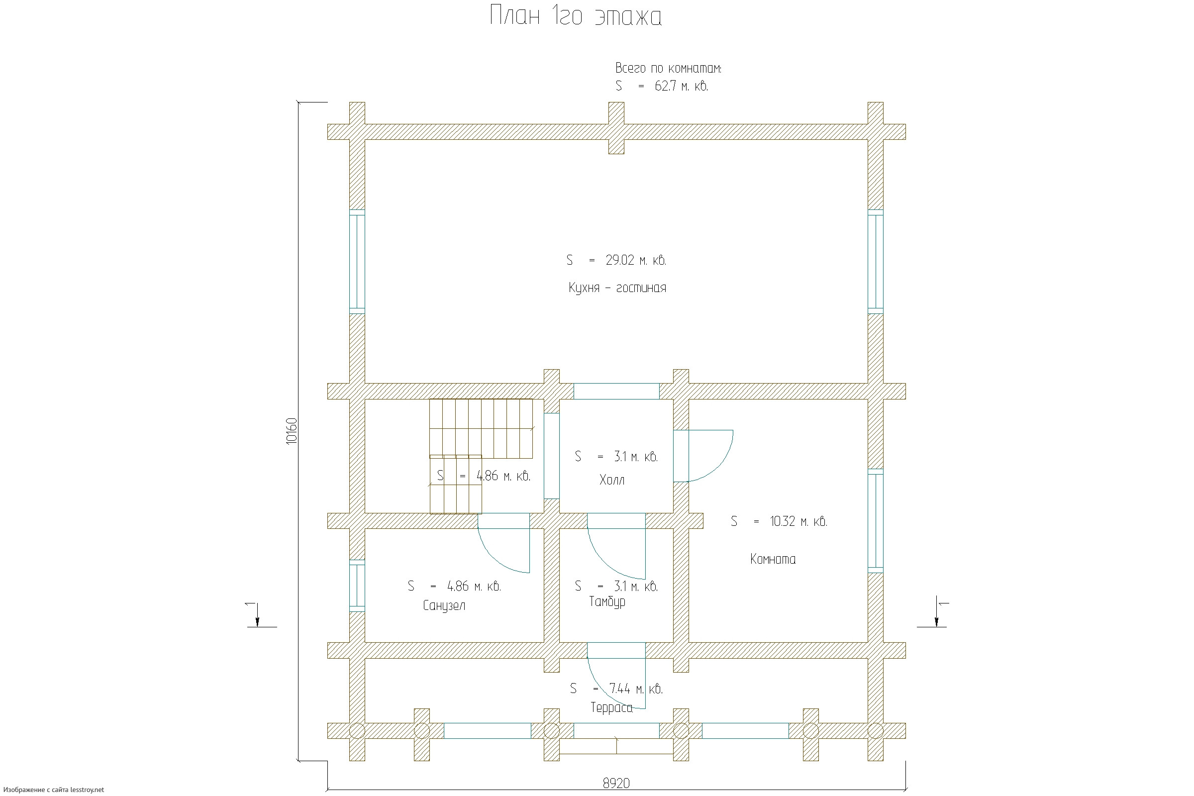
126 м 2
Размер дома:
Этажей:
2
Спален:
4
Санузел:
0
Гараж:
Нет
Баня:
Нет
Терраса:
Нет
Панорамные окна:
Нет
Мастер-спальня:
Нет
О проекте
Проект создал идеальный баланс между архитектурной графикой и живописью семейного быта. Рационально распределённые 105 м² делают жильё удобным. Проект включает 4 спальни — удобно для семьи. Крыша из рубероид подчёркивает современный облик дома. Архитектура выполнена в стиле дома в классическом стиле.Характеристики
- Общая площадь: 126 м2
- Количество этажей: 2
- Стиль, разновидность: Дома в стиле Русский
- Форма: Прямоугольные дома
- Тип кровли: Дома с мансардной крышей
- Отделка: Без отделки
Отправьте свои контакты и мы расчитаем вам смету
Скорее всего вам подойдут следующие проекты домов:
Дом подходит для:
Дом подходит для:
Дом подходит для:














