Проект двухэтажного дома Олимпийский
Площадь
159 м 2
Размер дома:
Этажей:
2
Спален:
3
Санузел:
0
Гараж:
Нет
Баня:
Нет
Терраса:
Нет
Панорамные окна:
Нет
Мастер-спальня:
Нет
О проекте
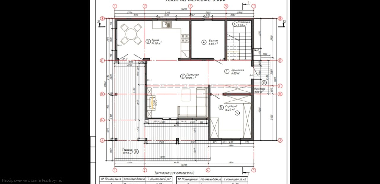
Двухэтажный дом площадью 159 м² из бревна — это воплощение традиций и современного комфорта. Натуральные материалы создают здоровый микроклимат и уют. Просторные комнаты и высокие потолки добавляют ощущение простора. Отличный выбор для большой семьи.Характеристики
- Общая площадь: 159 м2
- Количество этажей: 2
- Стиль, разновидность: Дома в стиле Шале
- Форма: Квадратные дома
- Тип кровли: Дома с мансардной крышей
- Отделка: Без отделки
Отправьте свои контакты и мы расчитаем вам смету
Скорее всего вам подойдут следующие проекты домов:
Дом подходит для:
Дом подходит для:
Дом подходит для:














