Проект двухэтажного дома ОНЕГА 1
Площадь
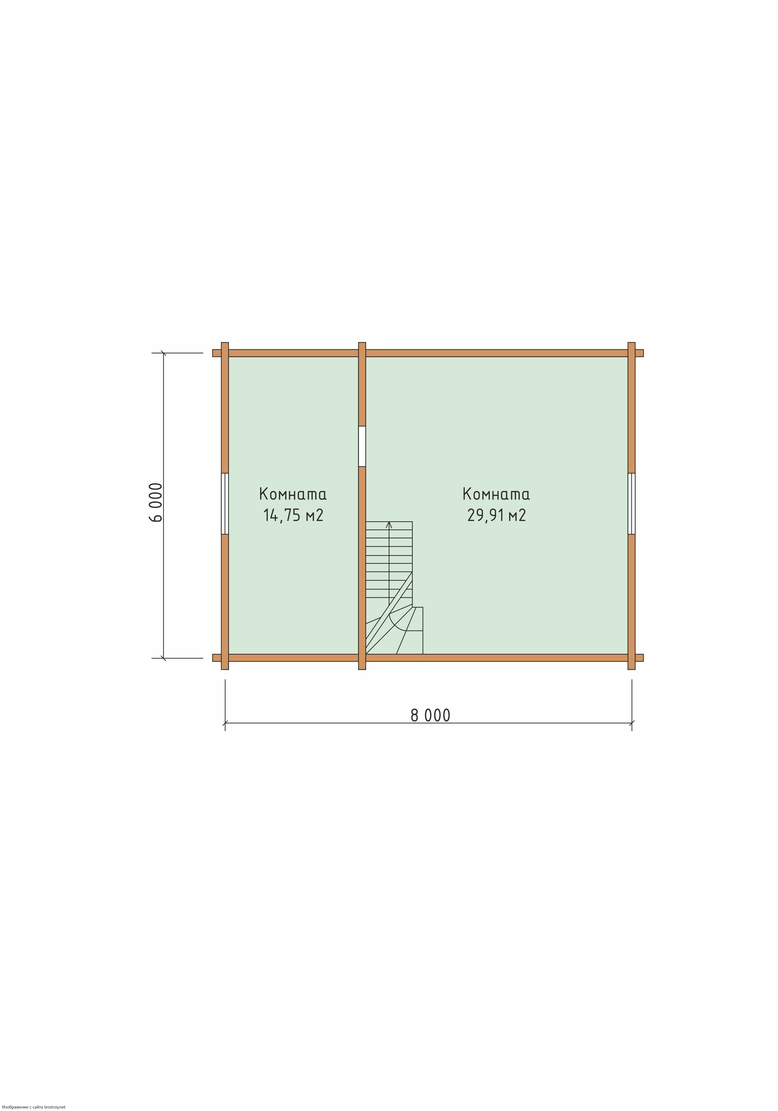
104 м 2
Размер дома:
6x8
Этажей:
2
Спален:
3
Санузел:
0
Гараж:
Нет
Баня:
Нет
Терраса:
Нет
Панорамные окна:
Нет
Мастер-спальня:
Нет
О проекте
Здесь дизайн стремится к минимализму, а жизнь - к максимуму эмоций.160 м² — универсальный формат для современного образа жизни. Конструкция из газобетон обеспечивает прочность и долговечность. Количество спален — 4, делая планировку гибкой. Материал кровли — металлочерепица, что добавляет зданию индивидуальность.Характеристики
- Общая площадь: 104 м2
- Количество этажей: 2
- Стиль, разновидность: Дома в стиле Модерн
- Форма: Прямоугольные дома
- Тип кровли: Дома с двускатной крышей
- Отделка: Без отделки
- Размер: 6x8
Отправьте свои контакты и мы расчитаем вам смету
Скорее всего вам подойдут следующие проекты домов:
Дом подходит для:
Дом подходит для:
Дом подходит для:












