Проект двухэтажного дома Опен Вилладж 200
Дом подходит для:
Площадь
200 м 2
Размер дома:
11x11
Этажей:
2
Спален:
3
Санузел:
2
Гараж:
Нет
Баня:
Нет
Терраса:
Нет
Панорамные окна:
Да
Мастер-спальня:
Нет
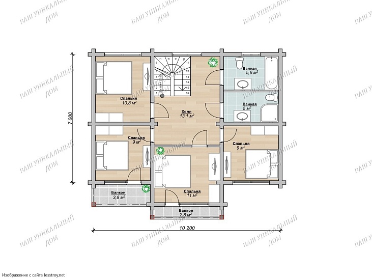
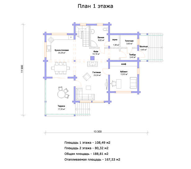
Планировка
Фасады
О проекте
Дом, который вдохновляет на новые свершения. С общей площадью 200 м² этот дом предлагает пространство для вдохновения. 143 м² — и ни один метр не пропадает зря. 2 санузла — признак современного и функционального дома. Выбор Бруса обусловлен его теплоизоляционными свойствами. Фундамент обеспечивает надежность и долговечность конструкции. Проект включает 3 спальни — удобно для семьи.Материалы и перечень работ
- Забивные сваи ж/б 200*200мм * 3м с металлическими оголовками
- Монолитная железо - бетонная плита с утеплением, высота 400 мм
- Вязка по проекту КЖ на основании данных о грунтах и нагрузке дома
- Утепление SUPER NORD 100 мм плиты и боковых стен фундамента, комплект крепежа
- Закладные под инженерные коммуникации (электрика, канализация, водоснабжение)
- Комплект из клееного бруса 180*200мм (толщина), опц. 260*200 /245 толщина
- Ветровой замок, уплотнение Shelter, крепеж из оцинкованной стали
- Межэтажные балки перекрытия 80*180 мм усиленные клееные
- Скрытая электрика в негорючей гофротрубе, разводка по проекту
- Обсадная коробка по СНиП, П – образная, гидроизоляция
- МЕТАЛЛОЧЕРЕПИЦА GRAND LINE
- Стропильная система: доска обрезная 50*200мм (сосна,ель)
- Антисептирование огне-био защита
- Система обрешетки / Контробрешетки
- Установка пленки паро-гидроизоляции
- Установка окон REHAU с 2-х камерным стеклопакетом (3 стекла)
- Разводка скрытой электрики в гофротрубе (пожаробезопасно)
- Разводка системы канализации (от 7 точек)
- 2-ух контурный котел
- Разводка системы отопления (2-ух трубная система, от 12 точек)
- Разводка системы холодного/горячего водоснабжения (тройниковая, от 12 точек)
- Установка внутренних не несущих перегородок, раскладка труб и кабеля
- Забивные сваи ж/б 200*200мм * 3м с металлическими оголовками
- Монолитная железо - бетонная плита с утеплением, высота 400 мм
- Вязка по проекту КЖ на основании данных о грунтах и нагрузке дома
- Утепление SUPER NORD 100 мм плиты и боковых стен фундамента, комплект крепежа
- Закладные под инженерные коммуникации (электрика, канализация, водоснабжение)
- Комплект из клееного бруса 180*200мм (толщина), опц. 260*200 /245 толщина
- Ветровой замок, уплотнение Shelter, крепеж из оцинкованной стали
- Межэтажные балки перекрытия 80*180 мм усиленные клееные
- Скрытая электрика в негорючей гофротрубе, разводка по проекту
- Обсадная коробка по СНиП, П – образная, гидроизоляция
- МЕТАЛЛОЧЕРЕПИЦА GRAND LINE
- Стропильная система: доска обрезная 50*200мм (сосна,ель)
- Антисептирование огне-био защита
- Система обрешетки / Контробрешетки
- Установка пленки паро-гидроизоляции
- Установка окон REHAU с 2-х камерным стеклопакетом (3 стекла)
- Разводка скрытой электрики в гофротрубе (пожаробезопасно)
- Разводка системы канализации (от 7 точек)
- 2-ух контурный котел
- Разводка системы отопления (2-ух трубная система, от 12 точек)
- Разводка системы холодного/горячего водоснабжения (тройниковая, от 12 точек)
- Установка внутренних не несущих перегородок, раскладка труб и кабеля
Что еще входит в стоимость:
Отправьте свои контакты и мы расчитаем вам смету
Скорее всего вам подойдут следующие проекты домов:
Дом подходит для:
Дом подходит для:
Дом подходит для:











