Проект двухэтажного дома П 6
Дом подходит для:
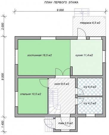
Площадь
127 м 2
Размер дома:
8x9
Этажей:
2
Спален:
4
Санузел:
2
Гараж:
Нет
Баня:
Нет
Терраса:
Нет
Панорамные окна:
Нет
Мастер-спальня:
Нет
Планировка
Фасады
О проекте
Двухэтажный дом площадью 127 м² с жилыми 99 м² — это простор и комфорт для большой семьи. Четыре спальни и два санузла обеспечивают удобство, а газобетонные стены дарят надежность. Светлые интерьеры и рациональная планировка создают ощущение гармонии. Здесь каждый метр наполнен заботой о жильцах.Характеристики
- Общая площадь: 127 м2
- Жилая площадь: 99 м2
- Количество этажей: 2
- Гараж: нет
- Площадь кровли: 134 м2
- Отделка: Без отделки
- Размер: 8x9
- Фундамент: Дома со свайным фундаментом
Материалы и перечень работ
- Сваи монолитные сильно армированные заглублением 1800, высота ростверка 600, толщина ленты (ростверка) 350 мм. Песчаная подушка 300 мм. Усиленное армирование арматурой 12.
- Гидроизоляция фундамента - гидроизоляция по битумной мастике. Сечение балок 100х150 мм, черепной брус 50х50 мм, черновой пол доска 25х150 мм. (возможна замена на монолитные плиты перекрытия).
- Высота кладки стен первого этажа 3000, из газобетонных блоков автоклавного твердения. Плотность D500, марка по прочности В3.5.- 250х400х600 (толщина стены 400), на клею для тонкошовной кладки с армированием в рядах.
- Перегородка одна капитальная, из блоков 250х300х600 (толщина 300). на клею для тонкошовной кладки с армированием в рядах.
- Формирование оконных и дверных проемов в соответствие с рекомендациями завода изготовителя блоков.
- Монолитный пояс армированный по периметру наружных стен и перегородке.
- Лаги 50х150х6000 – строенная, общее сечение балки 150х150, шаг 600, кроме лестничного проема, ширина лестничного проема 1000, (возможна замена на монолитные плиты перекрытия).
- Мауэрлат 100х200, стропильная система брус сечением 50х200 мм, шаг 600 мм. Обрешетка шаговая под металлочерепицу. Потолок мансарды не подшивается. Свесы и выпуски 500 мм подшиты обрезной доской рязряженной.
- Металлочерепица
- Входная металлическая (производство Россия).
- Установка гильзы, трубы без подключения к внешним сетям.
- В стоимость не входит
- Сваи монолитные сильно армированные заглублением 1800, высота ростверка 600, толщина ленты (ростверка) 350 мм. Песчаная подушка 300 мм. Усиленное армирование арматурой 12.
- Гидроизоляция фундамента - гидроизоляция по битумной мастике. Сечение балок 100х150 мм, черепной брус 50х50 мм, черновой пол доска 25х150 мм. (возможна замена на монолитные плиты перекрытия).
- Высота кладки стен первого этажа 3000, из газобетонных блоков автоклавного твердения. Плотность D500, марка по прочности В3.5.- 250х400х600 (толщина стены 400), на клею для тонкошовной кладки с армированием в рядах.
- Перегородка одна капитальная, из блоков 250х300х600 (толщина 300). на клею для тонкошовной кладки с армированием в рядах.
- Формирование оконных и дверных проемов в соответствие с рекомендациями завода изготовителя блоков.
- Монолитный пояс армированный по периметру наружных стен и перегородке.
- Лаги 50х150х6000 – строенная, общее сечение балки 150х150, шаг 600, кроме лестничного проема, ширина лестничного проема 1000, (возможна замена на монолитные плиты перекрытия).
- Мауэрлат 100х200, стропильная система брус сечением 50х200 мм, шаг 600 мм. Обрешетка шаговая под металлочерепицу. Потолок мансарды не подшивается. Свесы и выпуски 500 мм подшиты обрезной доской рязряженной.
- Металлочерепица
- Входная металлическая (производство Россия).
- Установка гильзы, трубы без подключения к внешним сетям.
- В стоимость не входит
Что еще входит в стоимость:
Отправьте свои контакты и мы расчитаем вам смету
Скорее всего вам подойдут следующие проекты домов:
Проект двухэтажного дома Дом id-122591
Семья с двумя детьми
Дом подходит для:
Дом подходит для:
Проект двухэтажного дома Дом id-124063
Для большой семьи
Дом подходит для:
Дом подходит для:
Проект двухэтажного дома Дом id-123968
Семья с двумя детьми
Дом подходит для:
Дом подходит для:





















