Проект двухэтажного дома Перловское
Площадь
116 м 2
Размер дома:
Этажей:
2
Спален:
3
Санузел:
0
Гараж:
Нет
Баня:
Нет
Терраса:
Нет
Панорамные окна:
Нет
Мастер-спальня:
Нет
О проекте
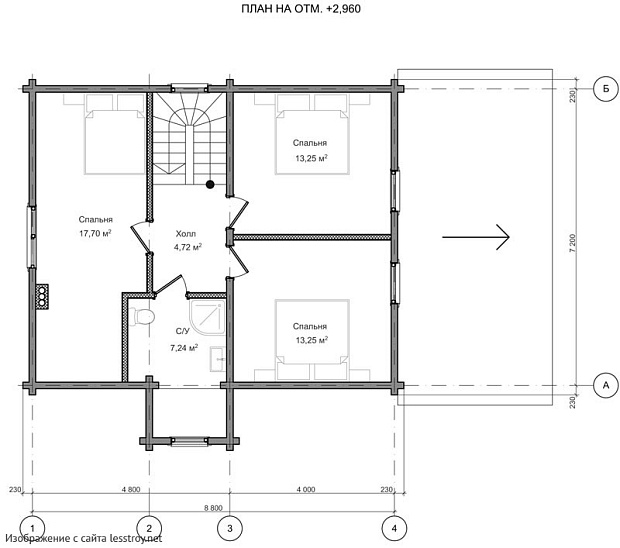
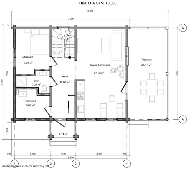
Дом площадью 116 м² из профилированного бруса с металлочерепичной кровлей в стиле модерн отличается современным дизайном. Три спальни и двухэтажная конструкция создают удобные зоны. Натуральные материалы обеспечивают экологичность. Проект идеален для тех, кто ценит стиль и функциональность.Характеристики
- Общая площадь: 116 м2
- Количество этажей: 2
- Стиль, разновидность: Дома в стиле Модерн
- Форма: Г-образные дома
- Тип кровли: Дома с двускатной крышей
- Отделка: Без отделки
Отправьте свои контакты и мы расчитаем вам смету
Скорее всего вам подойдут следующие проекты домов:
Дом подходит для:
Дом подходит для:
Проект двухэтажного дома Загородный дом из клееного бруса 138 кв.м.
Для большой семьи
Дом подходит для:
Дом подходит для:












