Проект одноэтажного дома Пирей
Дом подходит для:
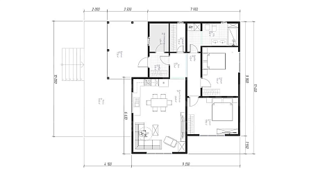
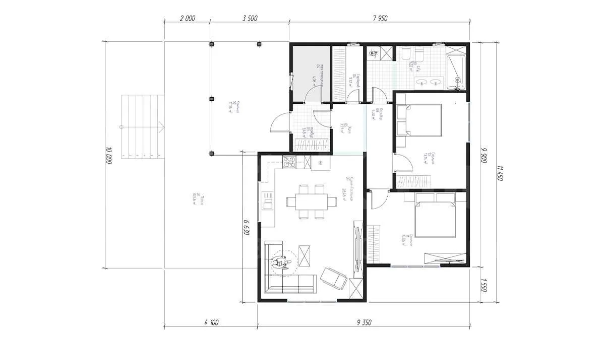
Площадь
93 м 2
Размер дома:
11,45х9,35
Этажей:
1
Спален:
2
Санузел:
1
Гараж:
Нет
Баня:
Нет
Терраса:
Нет
Панорамные окна:
Нет
Мастер-спальня:
Нет
Планировка
Фасады
О проекте
В этом проекте площадью 93 м² гармонично сочетаются простор и уют, создавая идеальное пространство для семьи с одним ребенком. Дом из керамоблока дарит тепло и надежность, а продуманная планировка делает каждый метр функциональным. Светлые комнаты наполнены воздухом, а жилая площадь в 74 м² обеспечивает комфорт для всех жильцов. Это место, где традиции встречаются с современным подходом к жилью.Характеристики
- Общая площадь: 93 м2
- Жилая площадь: 74 м2
- Количество этажей: 1
- Гараж: нет
- Площадь кровли: 99 м2
- Отделка: Без отделки
- Фундамент: Дома с ленточным фундаментом
Материалы и перечень работ
- Высота ростверка 600мм, ширина под наружные стены 400мм, под внутренние 300мм
- Бетон сертифицированный марки М300 (заводской)
- Каркас из арматуры: продольная - Ø12мм с загибом по углам; поперечная - Ø8мм
- Песчаная подушка 400мм с трамбовкой
- Устройство геотекстиля
- Внешние стены - керамический поризованый блок 250x375x219мм
- Внутренние несущие стены - керамический поризованый блок 250x375x219мм
- Межкомнатные перегородки - керамический поризованый блок 120х500х219мм
- Армирование кладки через каждые три ряда
- Укладка между блоками стекловолоконной ткани каждый ряд
- Деревянные лаги из доски камерной сушки 50х200мм, с шагом 590мм
- Стропила из доски 50х150/200мм (камерной сушки) с шагом не более 590мм
- Контр обрешётка из бруска 50х50мм (камерной сушки)
- Обрешетка из доски 25х150мм (камерной сушки) с шагом 350мм
- Металлочерепица -"InterProfil"
- В стоимость не входит
- В стоимость не входит
- В стоимость не входит
- Высота ростверка 600мм, ширина под наружные стены 400мм, под внутренние 300мм
- Бетон сертифицированный марки М300 (заводской)
- Каркас из арматуры: продольная - Ø12мм с загибом по углам; поперечная - Ø8мм
- Песчаная подушка 400мм с трамбовкой
- Устройство геотекстиля
- Внешние стены - керамический поризованый блок 250x375x219мм
- Внутренние несущие стены - керамический поризованый блок 250x375x219мм
- Межкомнатные перегородки - керамический поризованый блок 120х500х219мм
- Армирование кладки через каждые три ряда
- Укладка между блоками стекловолоконной ткани каждый ряд
- Деревянные лаги из доски камерной сушки 50х200мм, с шагом 590мм
- Стропила из доски 50х150/200мм (камерной сушки) с шагом не более 590мм
- Контр обрешётка из бруска 50х50мм (камерной сушки)
- Обрешетка из доски 25х150мм (камерной сушки) с шагом 350мм
- Металлочерепица -"InterProfil"
- В стоимость не входит
- В стоимость не входит
- В стоимость не входит
Что еще входит в стоимость:
Отправьте свои контакты и мы расчитаем вам смету
Скорее всего вам подойдут следующие проекты домов:
Проект одноэтажного дома 95 м² Арт. 1.23
Семья с двумя детьми
Дом подходит для:
Дом подходит для:


