Ваш город:

Проект двухэтажного дома Пхеньян

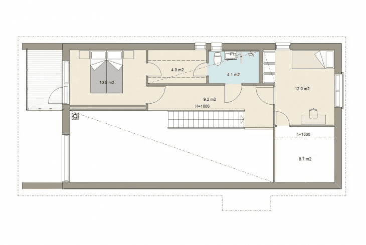
Площадь: 150 м2
Размер: 15,8х7,2
Дом подходит для:
Семья с двумя детьми
Этажей:
1.5
Стены:
Кровля:
Профнастил
Цена:
Оставить заявку
Площадь
150 м 2
Размер дома:
15,8х7,2
Этажей:
1.5
Спален:
3
Санузел:
2
Гараж:
Нет
Баня:
Нет
Терраса:
Нет
Панорамные окна:
Нет
Мастер-спальня:
Нет
Фасады
О проекте
Принцип красоты и удобства воплощен в этом продуманном доме. Площадь 150 м² с жилыми 122 м² подходит для семьи с детьми. Каркасная конструкция обеспечивает надежность и комфорт. Просторные комнаты и светлый интерьер делают жизнь здесь радостной.

Характеристики
  • Общая площадь: 150 м2
  • Жилая площадь: 122 м2
  • Количество этажей: 1.5
  • Гараж: нет
  • Площадь кровли: 155 м2
  • Отделка: Без отделки
  • Фундамент: Дома со свайно-винтовым фундаментом
Материалы и перечень работ
  • ВС-108/300/2500мм, ТУ 5260-001-84045723-2011. Сваи закручиваются с использованием спецтехники. Толщина стенки сваи 4 мм, толщина лопасти 5 мм. Внутреннее пространство сваи заполняется бетонной смесью М300. Вверху сваи приваривается металлический оголовок, 200*200 мм. Покрытие сваи - 2-х компонентный заводской защитный состав. Двойная гидроизоляция фундамента – гидростеклоизол
  • Стойки: строганная доска камерной сушки 45х145 мм;
  • промежуточные раскосы: строганная доска камерной сушки 20х145 мм
  • Внутренние несущие стены: стойки, промежуточные раскосы: строганная доска камерной сушки 45х145 мм
  • Перегородки: стойки, промежуточные раскосы: строганная доска камерной сушки 45х95 мм
  • Профлист
  • Пластиковая водосточная система
  • Стропила: доска 50х200 с расстоянием между балок не более 580 мм
  • Обрешётка: доска 25х100 с расстоянием между досками 350 мм
  • Оконные конструкции ПВХ Rehau, KBE стандартных размеров. Толщина профиля 60-70 мм. Цвет - белый. 2-х камерный стеклопакет (3 стекла). Противомоскитные сетки. Фурнитура ROTO. Подоконник ПВХ (цвет белый)
  • Отливы на окна: водоотлив металлический оцинкованный крашенный.
  • Ламинация окон (доп. опция)
  • Одностворчатые межкомнатные двери с покрытием ПВХ пленкой; с установкой петель, замков и ручек Входная металлическая (1 шт.): Металлическая дверь Российская утеплённая: Термо (2 замка, 1 задвижка)
  • В стоимость не входит
  • Комбинация профлист + планкен хвоя строганая.
  • Евровагонка 12,5 мм
  • Наружные углы: уголок наружный деревянный 50 мм
  • Оконные и дверные проемы: уголок наружный деревянный 50 мм
  • Санузлы и техническое помещение (котельная): евровагонка 12,5 мм
  • ВС-108/300/2500мм, ТУ 5260-001-84045723-2011. Сваи закручиваются с использованием спецтехники. Толщина стенки сваи 4 мм, толщина лопасти 5 мм. Внутреннее пространство сваи заполняется бетонной смесью М300. Вверху сваи приваривается металлический оголовок, 200*200 мм. Покрытие сваи - 2-х компонентный заводской защитный состав. Двойная гидроизоляция фундамента – гидростеклоизол
  • Стойки: строганная доска камерной сушки 45х145 мм;
  • промежуточные раскосы: строганная доска камерной сушки 20х145 мм
  • Внутренние несущие стены: стойки, промежуточные раскосы: строганная доска камерной сушки 45х145 мм
  • Перегородки: стойки, промежуточные раскосы: строганная доска камерной сушки 45х95 мм
  • Профлист
  • Пластиковая водосточная система
  • Стропила: доска 50х200 с расстоянием между балок не более 580 мм
  • Обрешётка: доска 25х100 с расстоянием между досками 350 мм
  • Оконные конструкции ПВХ Rehau, KBE стандартных размеров. Толщина профиля 60-70 мм. Цвет - белый. 2-х камерный стеклопакет (3 стекла). Противомоскитные сетки. Фурнитура ROTO. Подоконник ПВХ (цвет белый)
  • Отливы на окна: водоотлив металлический оцинкованный крашенный.
  • Ламинация окон (доп. опция)
  • Одностворчатые межкомнатные двери с покрытием ПВХ пленкой; с установкой петель, замков и ручек Входная металлическая (1 шт.): Металлическая дверь Российская утеплённая: Термо (2 замка, 1 задвижка)
  • В стоимость не входит
  • Комбинация профлист + планкен хвоя строганая.
  • Евровагонка 12,5 мм
  • Наружные углы: уголок наружный деревянный 50 мм
  • Оконные и дверные проемы: уголок наружный деревянный 50 мм
  • Санузлы и техническое помещение (котельная): евровагонка 12,5 мм
Что еще входит в стоимость:
Фото и видеоотчет
Отправьте свои контакты и мы расчитаем вам смету
Прикрепить документ
Скорее всего вам подойдут следующие проекты домов: