Проект двухэтажного дома ПР30-22/12
Дом подходит для:
Площадь
117 м 2
Размер дома:
10x10
Этажей:
2
Спален:
5
Санузел:
2
Гараж:
Нет
Баня:
Нет
Терраса:
Нет
Панорамные окна:
Нет
Мастер-спальня:
Нет
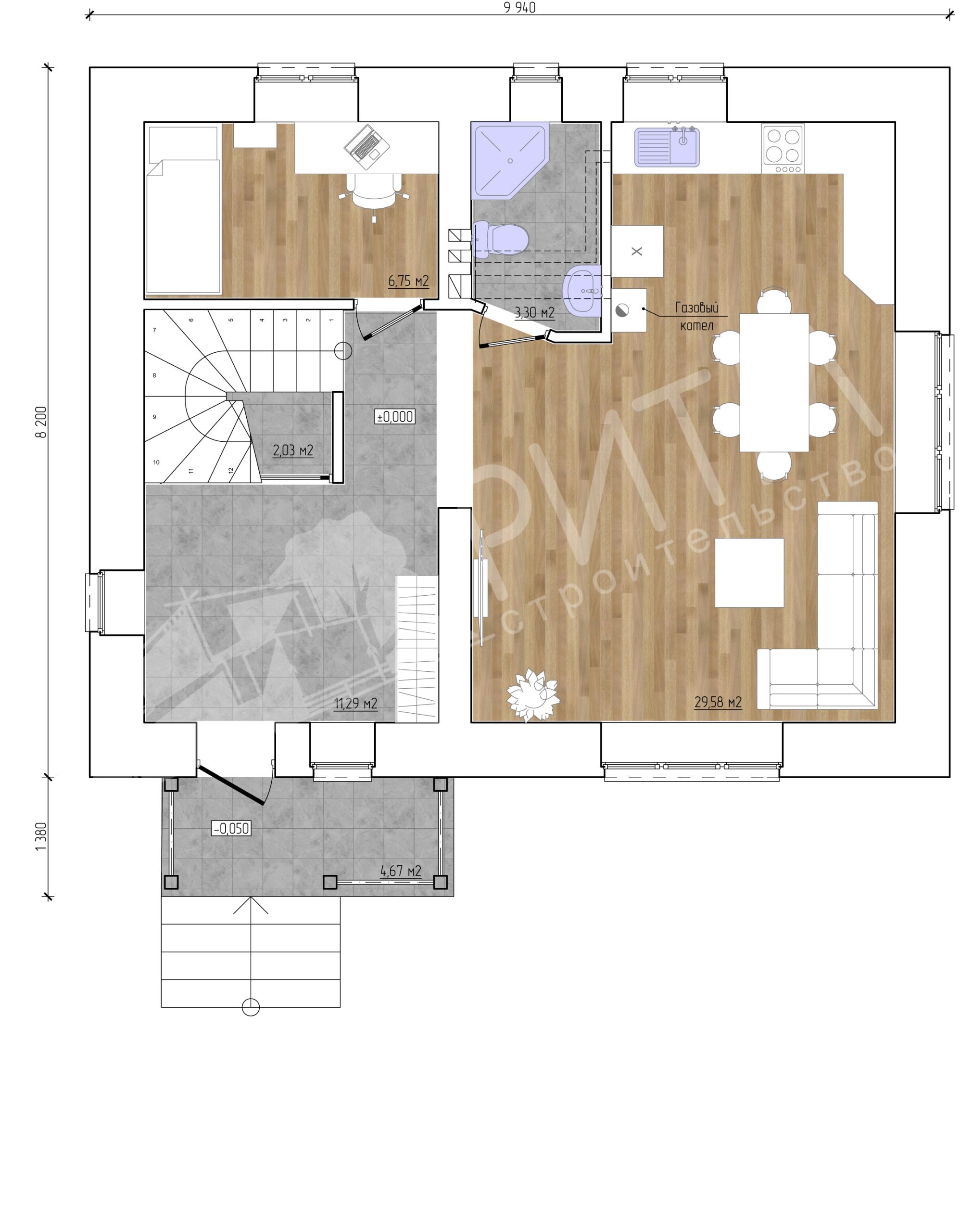
Планировка
Характеристики
- Общая площадь: 117.34 м2
- Жилая площадь: 94 м2
- Количество этажей: 2
- Гараж: нет
- Площадь кровли: 123 м2
- Отделка: Без отделки
- Размер: 10x10
- Фундамент: Дома с плитным фундаментом
Материалы и перечень работ
- Фундамент – монолитная плита.
- Наружные и внутренние несущие стены – газосиликатный блок.
- Перегородки — кирпич силикатный.
- Пол первого этажа – монолитная плита.
- Кровля – мягкая кровля.
- Окна – пластиковые Rehau (или аналог).
- В стоимость не входит
- Отделка силикатный кирпич
- Фундамент – монолитная плита.
- Наружные и внутренние несущие стены – газосиликатный блок.
- Перегородки — кирпич силикатный.
- Пол первого этажа – монолитная плита.
- Кровля – мягкая кровля.
- Окна – пластиковые Rehau (или аналог).
- В стоимость не входит
- Отделка силикатный кирпич
Что еще входит в стоимость:
Отправьте свои контакты и мы расчитаем вам смету
Скорее всего вам подойдут следующие проекты домов:
Проект двухэтажного дома Дом id-114662
Семья с двумя детьми
Дом подходит для:
Дом подходит для:
Проект двухэтажного дома Дом id-124856
Семья с двумя детьми
Дом подходит для:
Дом подходит для:
Проект двухэтажного дома Дом id-120143
Семья с двумя детьми
Дом подходит для:
Дом подходит для:






















