Проект двухэтажного дома Премьер
Дом подходит для:
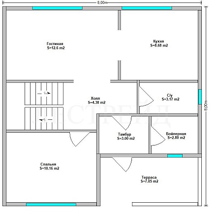
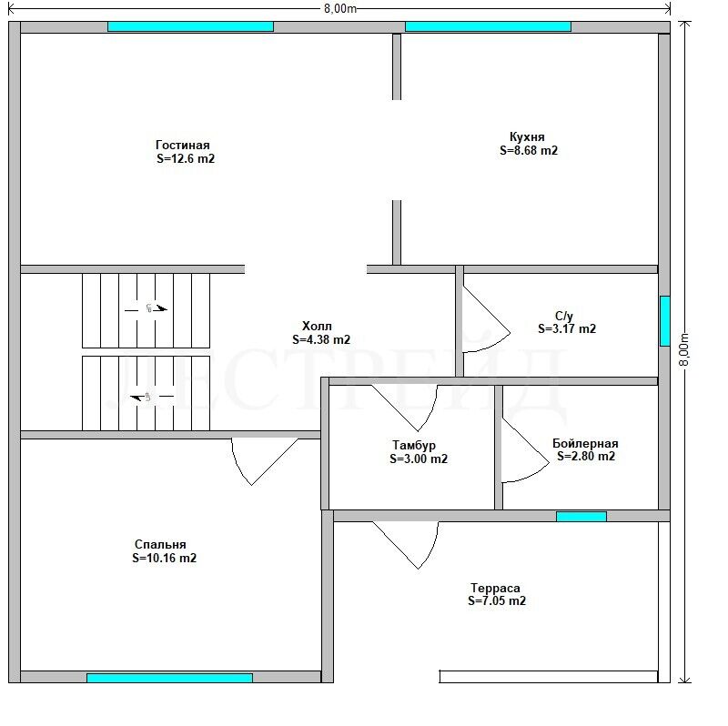
Площадь
105 м 2
Размер дома:
8x8
Этажей:
2
Спален:
5
Санузел:
2
Гараж:
Нет
Баня:
Нет
Терраса:
Да
Панорамные окна:
Нет
Мастер-спальня:
Нет
Планировка
Характеристики
- Общая площадь: 105 м2
- Жилая площадь: 78 м2
- Количество этажей: 2
- Гараж: нет
- Площадь кровли: 112 м2
- Форма: Квадратные дома
- Тип кровли: Дома с двускатной крышей
- Пристрой: Дома с террасой
- Отделка: С черновой отделкой
- Отделка фасада: Дома с отделкой имитацией бруса
- Размер: 8x8
Материалы и перечень работ
- В стоимость не входит
- Каркас Доска 50х150 мм
- Утепление 150 мм базальтовой минватой (пол, потолок, стены) Hotrock, в перегородках 50 мм, в межэтажном перекрытии 100 мм
- Пароизоляция Мембранная пленка (снаружи класс "А", внутри класс "В")
- Внутренняя обшивка Евровагонка "АВ"
- Кровля Металлочерепица, двухскатная (обрешетка-доска 22х100 мм, стропила-доска 40х150 мм)
- Дверь входная Металлическая, Россия
- Двери межкомнатные Ламинированные (МДФ)
- Окна ПВХ двухкамерные, размеры согласно проекту
- В стоимость не входит
- Внешняя обшивка Имитация бруса шириной 140 мм
- В стоимость не входит
- Каркас Доска 50х150 мм
- Утепление 150 мм базальтовой минватой (пол, потолок, стены) Hotrock, в перегородках 50 мм, в межэтажном перекрытии 100 мм
- Пароизоляция Мембранная пленка (снаружи класс "А", внутри класс "В")
- Внутренняя обшивка Евровагонка "АВ"
- Кровля Металлочерепица, двухскатная (обрешетка-доска 22х100 мм, стропила-доска 40х150 мм)
- Дверь входная Металлическая, Россия
- Двери межкомнатные Ламинированные (МДФ)
- Окна ПВХ двухкамерные, размеры согласно проекту
- В стоимость не входит
- Внешняя обшивка Имитация бруса шириной 140 мм
Что еще входит в стоимость:
Отправьте свои контакты и мы расчитаем вам смету
Скорее всего вам подойдут следующие проекты домов:
Дом подходит для:
Дом подходит для:
Дом подходит для:













