Проект двухэтажного дома Проект 2/4
Площадь
91 м 2
Размер дома:
Этажей:
2
Спален:
3
Санузел:
0
Гараж:
Нет
Баня:
Нет
Терраса:
Нет
Панорамные окна:
Нет
Мастер-спальня:
Нет
О проекте
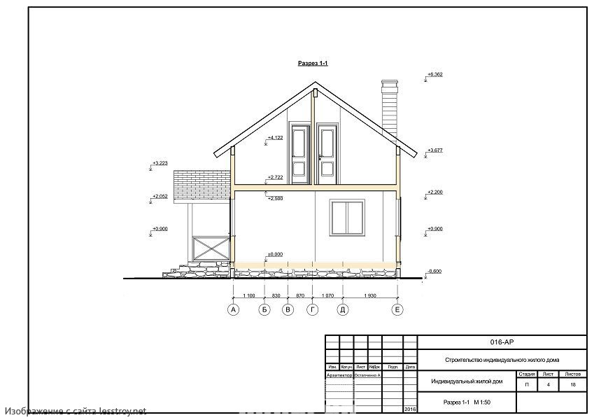
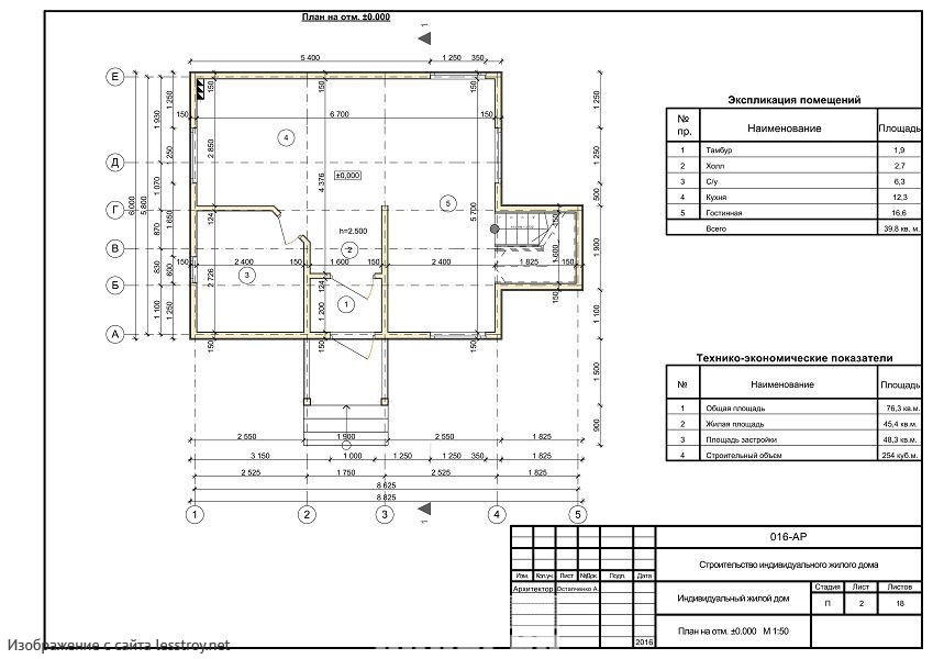
Двухэтажный дом из SIP-панелей площадью 91 м² с тремя спальнями и мансардной крышей. Металлочерепица и лаконичный стиль делают его функциональным и стильным. Компактный и удобный для современной семьи.Характеристики
- Общая площадь: 91 м2
- Количество этажей: 2
- Стиль, разновидность: Дома в ином стиле
- Форма: Прямоугольные дома
- Тип кровли: Дома с мансардной крышей
- Отделка: Без отделки
Отправьте свои контакты и мы расчитаем вам смету
Скорее всего вам подойдут следующие проекты домов:
Проект двухэтажного дома Проект каркасного дома 10х9 - СВЯТОСЛАВ
Семья с двумя детьми
Дом подходит для:
Дом подходит для:
Дом подходит для:











