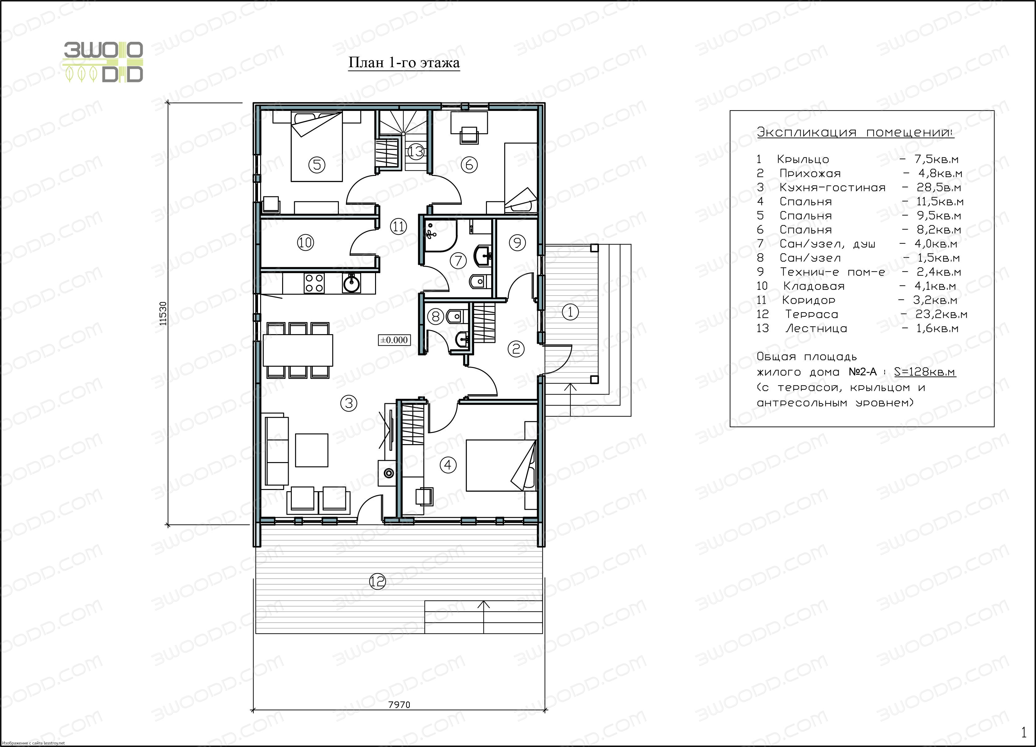
Проект одноэтажного дома Проект 3076 - модульный классический дом с тремя спальнями и лофтом
Площадь
124 м 2
Размер дома:
Этажей:
1
Спален:
3
Санузел:
0
Гараж:
Нет
Баня:
Нет
Терраса:
Нет
Панорамные окна:
Нет
Мастер-спальня:
Нет
О проекте
Современный каркасный дом площадью 124 м² с тремя спальнями и лофтом идеален для семьи. Металлочерепица делает его стильным.Характеристики
- Общая площадь: 124 м2
- Количество этажей: 1
- Стиль, разновидность: Дома в ином стиле
- Форма: Прямоугольные дома
- Тип кровли: Дома с двускатной крышей
- Отделка: Без отделки
Отправьте свои контакты и мы расчитаем вам смету
Скорее всего вам подойдут следующие проекты домов:
Дом подходит для:
Дом подходит для:
Дом подходит для:













