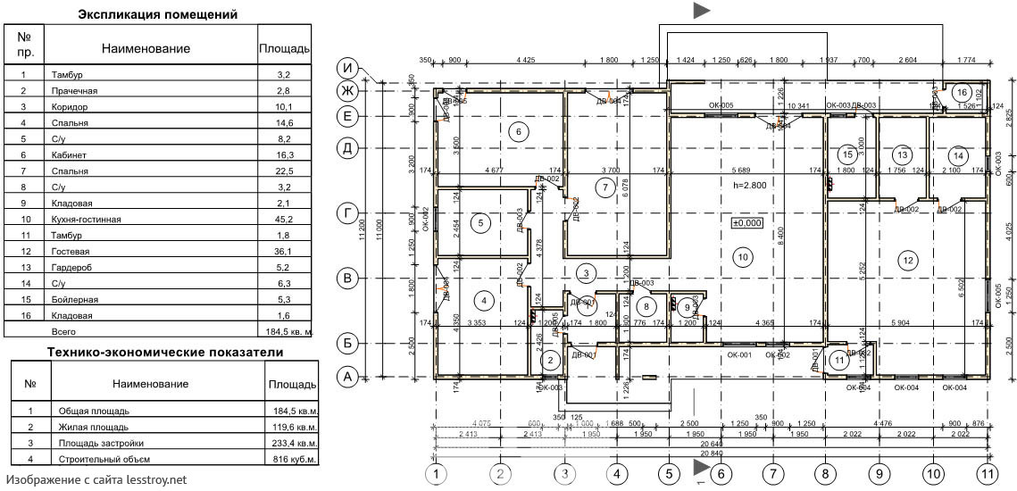
Проект одноэтажного дома Проект №66
Площадь
233 м 2
Размер дома:
11x20
Этажей:
1
Спален:
2
Санузел:
0
Гараж:
Нет
Баня:
Нет
Терраса:
Нет
Панорамные окна:
Нет
Мастер-спальня:
Нет
О проекте
Одноэтажный дом из SIP-панелей площадью 233 м² с двумя спальнями и нестандартной крышей. Металлочерепица и лаконичный стиль подчеркивают его функциональность. Удобный и стильный вариант для загородной жизни.Характеристики
- Общая площадь: 233 м2
- Количество этажей: 1
- Стиль, разновидность: Дома в ином стиле
- Форма: Прямоугольные дома
- Тип кровли: Дома с иной крышей
- Отделка: Без отделки
- Размер: 11x20
Отправьте свои контакты и мы расчитаем вам смету
Скорее всего вам подойдут следующие проекты домов:
Дом подходит для:


